Baba Novac 4 camere 110 mp P 2012

SVN Romania va ofera spre vanzare un apartament spatios de 4 camere din cadrul complexului New Town Residence, faza 2, situat in zona Baba Novac - Dristor.
Apartamentul este situat la parterul unui imobil construit in anul 2012.

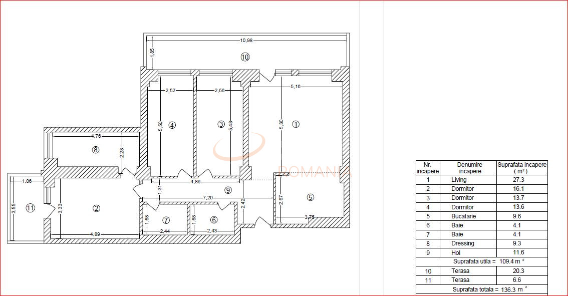
Apartamentul dispune de o compartimentare decomandata, suprafata utila fiind de 110 mp la care se adauga cele 2 terase (20,3 mp si 6,6 mp), astfel suprafata totala este de 136 mp.

Apartamentul se vinde partial mobilat, cu bucataria si electrocasnicele incorporate (hota, aragaz, masina de spalat vase) + dressing-ul, fiind facut pe comanda.

In pretul afisat, apartamentul se vinde cu un loc de parcare subteran.

Apartamentul este situat intr-unul din blocurile din centrul complexului, astfel fiind retras fata de toate strazile adiacente.

Proiectul New Town Residence are construite zece blocuri inaltate cu 5 si 12 etaje; imobilele au o rezistenta seismica de pana la 8 grade pe scara Richter.
Imobilul este dotat cu 2 ascensoare, apartamentul are usa metalica la intrare, ferestrele instalate sunt mari si sunt cu profil PVC si geamuri termopane, pardoselile sunt placate cu parchet laminat triplu stratificat, iar sistemul de incalzire se face prin centrala termica proprie.

Accesul in complex este securizat, prin cartele de acces, este paza 24/24 si functioneaza sistemul de supraveghere video cu monitorizare.

In vecinatate regasim la doar 4 minute statia de metrou Dristor precum si alte mijloace de transport in comun, Parcul Alexandru Ioan Cuza, gradinite (chiar in interiorul complexului regasim gradinita Smart Steps), scoli, precum si alte puncte de interes in apropiere: magazine, restaurante, farmacii.

Pentru mai multe detalii sau vizionari va stau la dispozitie.

An constructie 2012

Suprafata construita 150 mp

Suprafata utila 110 mp

Regim Inaltime P / 12

Etaj P

Nr. camere 4 camere

Nr. bai 2

Nr. balcoane 0 balcoane

Confort 1

Compartimentare Decomandat

Tip constructie In bloc

Status constructie Finalizat

Disponibila incepand cu 2025-05-20

Judet Bucuresti

Oras/ Sector Sector 3

Zona Baba Novac

Gps lat 44.423575

Gps lng 26.140264

Nr. terase 2

Supraveghere video

Supraveghere 24/7

Cablu TV

Curent electric

Internet Wireless

Interfon

Detector de gaze

Geamuri termopan

Parchet

Gresie

Loc parcare subteran

Faianta

Gaz

Incalzire proprie

Calorifere

WC serviciu

Mobilat

Aer conditionat

Bucatarie mobilata

Lift

Apartament 4 camere cu loc de parcare New Town Residence

Proprietate vanduta

Ai o proprietate similara? Vinde-o cu noi.
Vinde apartament

Cod: REA1023778

Proprietati similare

Bucuresti, Mihai Bravu, Mihai Bravu (s3)

Apartament, 4 camere

111 mp 17 2024

350.000 EUR

Detalii

Bucuresti, Mihai Bravu, Mihai Bravu (s3)

Apartament, 4 camere

127 mp 13 2024

375.000 EUR

Detalii

Bucuresti, Unirii, Piata Unirii (s3)

Apartament, 4 camere

112 mp 8 2022

395.000 EUR

Detalii

Bucuresti, Iancului

Apartament, 4 camere

118 mp 4 2024

390.000 EUR

Detalii

Bucuresti, Tineretului

Apartament, 4 camere

106 mp 13 2009

365.000 EUR

Detalii

Bucuresti, Ferdinand

Apartament, 4 camere

97.8 mp 4 2026

349.000 EUR

Detalii

Bucuresti, Unirii, Unirii (s3)

Apartament, 4 camere

98.13 mp 1 1990

331.900 EUR

Detalii

Bucuresti, Unirii, Piata Unirii (s3)

Apartament, 4 camere

96 mp 1 1980

370.000 EUR

Detalii
Apartamente 4 camere vandute in Titan, Bucuresti Apartamente 4 camere de vanzare in Titan, Bucuresti

Afla primul de cele mai bune oferte
inainte sa ajunga pe piata

Aboneaza-te la newsletter

Aboneaza-te la notificari