Baba Novac 5 camere 124 mp 3 2012

SVN Romania va propune spre vanzare un apartament cu 5 camere situat in complexul residential NewTown Residence.

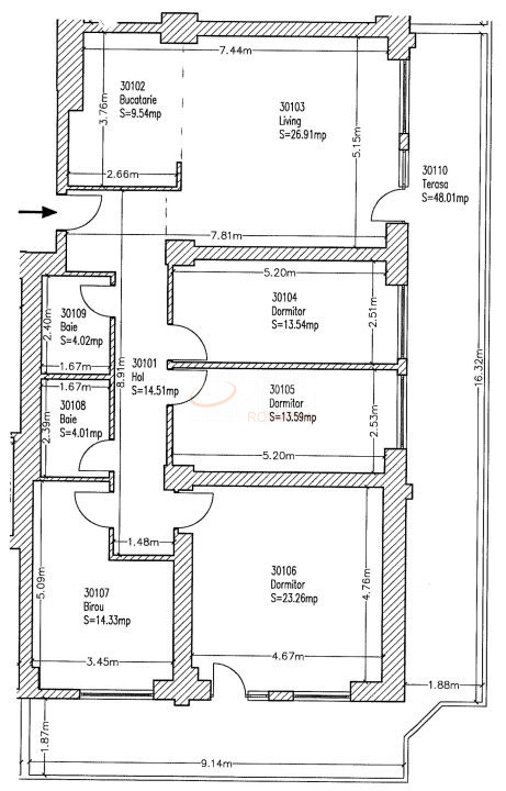
Apartamentul se afla la etajul 3/12, este decomandat si are o suprafata totala de 172 mp, din care 124 mp utili si 48 mp de terasa.

Proprietatea se vinde cu bucataria mobilata si utilata complet: plita, cuptor, hota, masina de spalat vase, masina de spalat rufe si partial mobilata: dressing-uri hol, dulapuri balcon.

Apartamentul este dotat cu aer conditionat in fiecare camera, centrala termica proprie, videointerfon.

Optional, se pot achizitiona unul, doua sau trei locuri de parcare amplasate la subsolul blocului in care este situat apartamentul, la pretul de 15.000 euro/loc.

Complexul NewTown Residence dispune de sistem de control al accesului, sistem de supraveghere video si paza 24h/24h, subsoluri dotate cu sistem de prevenire si stingere a incendiilor, adapost de protectie civila, gradinita Smart Steps, supermarket Carrefour.

In vecinatetea complexului este localizat Spitalul Clinic Dr. Victor Babes, scoli gimnaziale (Cezar Bolliac, 80, 86, etc.), gradinite si mall-uri (Park Lake, Mall Vitan, Mega Mall), parcul Titan (IOR / Alexandru Ioan Cuza), magazin cafenele, supermarket, metrou, STB.

An constructie 2012

Suprafata construita 200 mp

Suprafata utila 124 mp

Suprafata terasa 48

Regim Inaltime 3 / 12

Etaj 3

Nr. camere 5 camere

Nr. bai 2

Nr. balcoane 0 balcoane

Confort Lux

Tip constructie In bloc

Status constructie Finalizat

Disponibila incepand cu 2022-09-02

Judet Bucuresti

Oras/ Sector Sector 3

Zona Baba Novac

Gps lat 44.423949

Gps lng 26.141270

Nr. terase 1

Supraveghere video

Internet Wireless

Internet prin cablu

Cablu TV

Supraveghere 24/7

Detector de gaze

Interfon

Internet prin fibra optica

Curent electric

Geamuri termopan

Repartitoare

Parchet

Apometre

Gresie

Telefon

Faianta

Gaz

Incalzire proprie

WC serviciu

Mobilat

Aer conditionat

Bucatarie mobilata

Bloc reabiliat termic

Lift

NewTown Residence - apartament cu 5 camere

Proprietate vanduta

Ai o proprietate similara? Vinde-o cu noi.
Vinde apartament

Cod: REA1011510

Proprietati similare

Bucuresti, Unirii, Piata Unirii (s3)

Apartament, 5 camere

110 mp 5 1988

380.000 EUR

Detalii

Bucuresti, Ultracentral, Calea Victoriei

Apartament, 5 camere

133 mp 1 1940

360.000 EUR

Detalii

Bucuresti, Pipera

Apartament, 5 camere

161 mp 2 2026

337.680 EUR

Detalii

Bucuresti, Baneasa, Sisesti

Apartament, 5 camere

179 mp 5 2020

389.900 EUR

Detalii
Apartamente 5 camere vandute in Titan, Bucuresti Apartamente 5 camere de vanzare in Titan, Bucuresti

Afla primul de cele mai bune oferte
inainte sa ajunga pe piata

Aboneaza-te la newsletter

Aboneaza-te la notificari