Calea Calarasilor 1 camera 40.37 mp 2 2021

SVN Romania va propune spre vanzare o garsoniera nemobilata situata la etajul 2 al unui imobil nou, construit in 2021, in zona Calea Calarasilor.

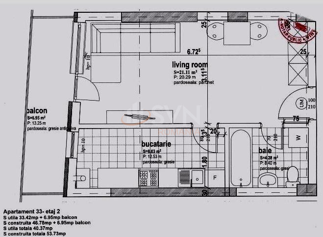
Garsoniera beneficiaza de o compartimentare echilibrata, bucataria fiind inchisa. Incalzirea se face prin centrala proprie si incalzirea in pardoseala. Suprafata utila este de 33.4 mp + 6.95 mp balcon (cu acces din camera si din bucatarie), suprafata utila totala fiind de 40.37 mp. Centrala proprie marca Ariston cu senzor ambiental pentru setarea temperaturii, WC cu bazin incorporat Grohe si echipmamente de baie de calitate, suprafete vitrate generoase cu tamplarie PVC cu 7 camere de izolare si 3 foi de sticla tratate interior/exterior marca Salamander, usi Porta Doors.

Imobilul este localizat intr-o zona linistita de case si vile linistite specifice Bucurestiului vechi, avand un acces facil catre centrul orasului, mijloacele de transport (tramvai, STB) fiind usor de accesat.

Certificatul energetic va fi disponibil la vanzare.

Pentru mai multe detalii sau vizionari nu ezitati sa ne contactati.

An constructie 2021

Suprafata construita 47 mp

Suprafata utila 40.37 mp

Suprafata terasa 6.95 mp

Regim Inaltime 2 / 5

Etaj 2

Nr. camere 1 camera

Nr. bai 1

Nr. balcoane 1 balcon

Confort 1

Compartimentare Decomandat

Tip constructie In bloc

Status constructie Finalizat

Disponibila incepand cu 2023-04-24

Judet Bucuresti

Oras/ Sector Sector 3

Zona Calea Calarasilor

Gps lat 44.434088

Gps lng 26.125708

Interfon

Curent electric

Supraveghere video

Geamuri termopan

Repartitoare

Parchet

Apometre

Gresie

Faianta

Gaz

Incalzire prin pardoseala

Incalzire proprie

Lift

Garsoniera nemobilata Popa Tatu

Proprietate vanduta

Ai o proprietate similara? Vinde-o cu noi.
Vinde apartament

Cod: REA1014026

Proprietati similare

Bucuresti, Mosilor

Garsoniera

20.54 mp 3 2026

78.461 EUR

Detalii

Bucuresti, Colentina, Bucur Obor

Garsoniera

47 mp 7 2025

93.200 EUR

Detalii

Bucuresti, Colentina, Bucur Obor

Garsoniera

36.3 mp P 2025

93.200 EUR

Detalii

Bucuresti, Colentina, Bucur Obor

Garsoniera

36 mp 1 2025

87.140 EUR

Detalii

Bucuresti, Sector 1, P-ta Universitatii

Garsoniera

26 mp 4 1936

85.000 EUR

Detalii

Bucuresti, Sector 3, P-ta Unirii

Garsoniera

18.2 mp 2 1960

79.000 EUR

Detalii

Bucuresti, Ultracentral, Cismigiu

Garsoniera

29 mp 3 1945

93.000 EUR

Detalii

Bucuresti, Tei, Lacul Tei

Garsoniera

42 mp 8 1986

87.000 EUR

Detalii
Apartamente 1 camera vandute in Calea Calarasilor, Bucuresti Apartamente 1 camera de vanzare in Calea Calarasilor, Bucuresti

Afla primul de cele mai bune oferte
inainte sa ajunga pe piata

Aboneaza-te la newsletter

Aboneaza-te la notificari