Campia Libertatii 2 camere 55 mp 5 1979

SVN Residentialist Floreasca va propune spre vanzare un apartament deosebit cu 2 camere, renovat integral in 2025, situat intr-una dintre cele mai cautate si apreciate zone ale Bucurestiului – Campia Libertatii, la doar 8 minute de mers pe jos pana la metrou Piata Muncii si Parcul IOR.

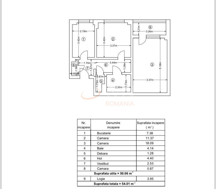
Suprafata utila: 55 mp
Compartimentare: decomandat
An constructie: 1979 (bloc fara risc seismic)
Bloc reabilitat termic

Proprietatea impresioneaza printr-un design contemporan si finisaje de inalta calitate, gandite pentru confort si functionalitate. Apartamentul este complet mobilat si utilat, totul fiind nou si neutilizat.

Dotari si amenajare:

Bucatarie separata complet echipata: plita gaz, cuptor electric, cuptor microunde incorporabil, frigider incorporabil, masina de spalat vase

Baie moderna cu walk-in shower

Dormitor si living cu dressing-uri incapatoare

2 Smart TV + soundbar, aer conditionat

Masina de spalat rufe + uscator

Avantaje suplimentare:
- Complet mobilat si utilat – gata pentru locuire imediata
- Pozitionare excelenta – aproape de metrou, parc, scoli, centre comerciale
- Ideal atat pentru locuit, cat si pentru investitie – inchiriere imediata

O locuinta moderna, intr-o zona verde si bine conectata, ideala pentru cei care isi doresc un apartament de calitate, fara compromisuri.

Pentru mai multe detalii sau pentru a stabili o vizionare, nu ezitati sa ma contactati!

Vizionarea acestui imobil se face doar în baza semnarii unui acord de vizionare conform codului civil, art 2.096-2.102.

An constructie 1979

Suprafata construita 57 mp

Suprafata utila 55 mp

Regim Inaltime 5 / 10

Etaj 5

Nr. camere 2 camere

Nr. bai 1

Nr. balcoane 0 balcoane

Confort 1

Compartimentare Decomandat

Tip constructie In bloc

Status constructie Finalizat

Disponibila incepand cu 2025-06-03

Judet Bucuresti

Oras/ Sector Sector 3

Zona Campia Libertatii

Gps lat 44.431368

Gps lng 26.146581

Cablu TV

Curent electric

Internet prin cablu

Interfon

Geamuri termopan

Parchet

Gresie

Telefon

Faianta

Gaz

Calorifere

Mobilat

Aer conditionat

Bucatarie mobilata

Lift

Apartament 2 camere I Mobilat si Utilat I Muncii

Proprietate vanduta

Ai o proprietate similara? Vinde-o cu noi.
Vinde apartament

Cod: REA1023965

Proprietati similare

Bucuresti, Sector 2, P-ta Muncii

Apartament, 2 camere

52.32 mp 10 1978

135.000 EUR

Detalii

Bucuresti, Sector 2, P-ta Muncii

Apartament, 2 camere

52 mp P 1936

138.000 EUR

Detalii

Bucuresti, Dacia, Armeneasca

Apartament, 2 camere

43.6 mp 1 2008

135.000 EUR

Detalii

Bucuresti, Ferdinand

Apartament, 2 camere

46 mp 1 1964

139.500 EUR

Detalii

Bucuresti, Colentina, Bucur Obor

Apartament, 2 camere

47 mp 6 1969

139.000 EUR

Detalii
Exclusiv Discount

Bucuresti, Colentina, Bucur Obor

Apartament, 2 camere

55.9 mp 1 2026

131.600 EUR

Detalii

Bucuresti, Colentina, Bucur Obor

Apartament, 2 camere

66.6 mp 2 2025

138.785 EUR

Detalii

Bucuresti, Colentina, Bucur Obor

Apartament, 2 camere

52.7 mp 3 2025

132.350 EUR

Detalii
Apartamente 2 camere vandute in Titan, Bucuresti Apartamente 2 camere de vanzare in Titan, Bucuresti

Afla primul de cele mai bune oferte
inainte sa ajunga pe piata

Aboneaza-te la newsletter

Aboneaza-te la notificari