Dristor 2 camere 55 mp 3 1982

SVN Romania va propune spre vanzare un apartament cu totul deosebit de 2 camere amplasat intr-o zona semicentrala a Bucurestiului, zona Dristor.

Imobilul este situat la etajul 3 din 7 al unui imobil finalizat in anul 1982.

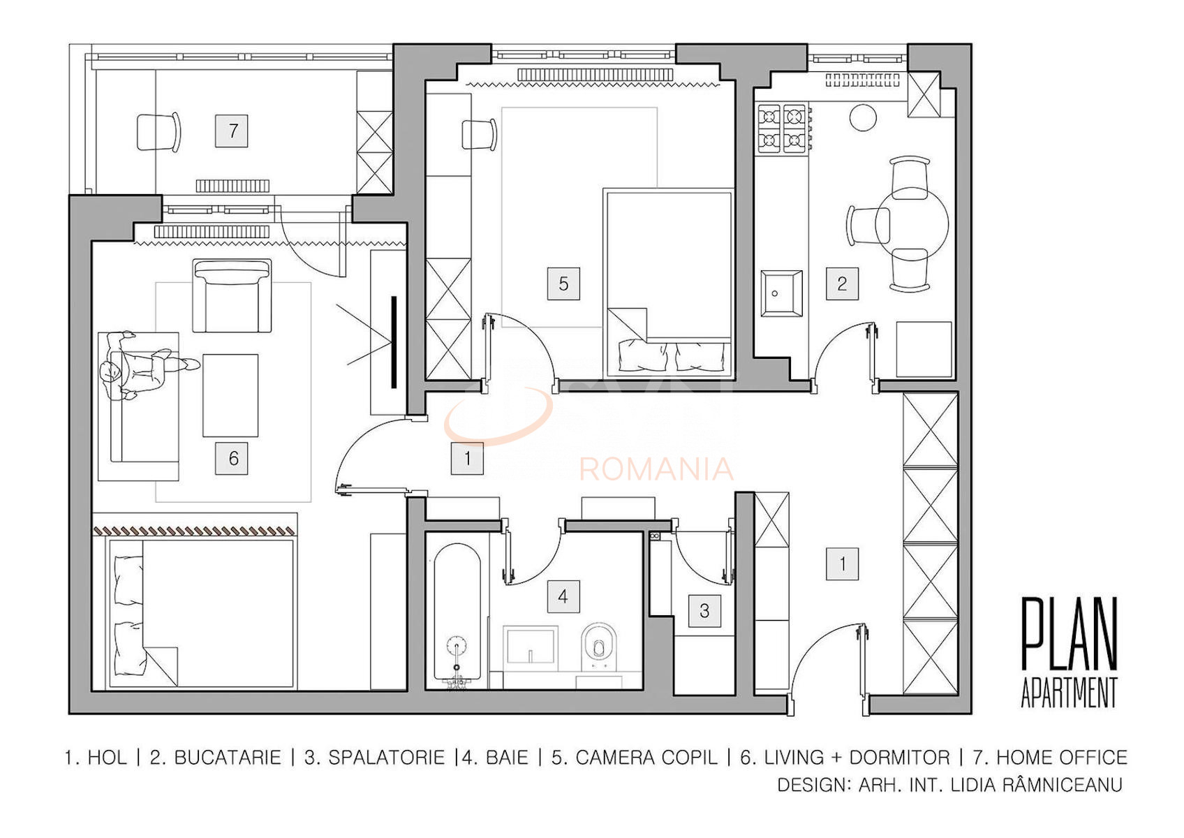
Apartamentul dispune de o compartimentare decomandata, fiind compus din: hol, living cu iesire in balconul de 5 mp inchis ce a fost transformat in Home office, bucatarie inchisa, 2 dormitoare, si multiple spatii de depozitare, toate acestea avand suprafata utila de 60 mp.

Apartamentul se vinde complet mobilat/utilat cu designer de interior deosebit.

In vecinatate regasim la doar 5 minute de mers pe jos statia de metrou Dristor si alte mijloace de transport in comun. Puncte de interes in apropiere: magazine, restaurante, farmacii, gradinite, scoli, complexul comerical Park Lake, parcul IOR.

Certificatul energetic va fi disponibil la momentul vanzarii.

Pentru mai multe detalii si vizionari va stau la dispozitie.

An constructie 1982

Suprafata construita 65 mp

Suprafata utila 55 mp

Suprafata terasa 5 mp

Regim Inaltime 3 / 7

Etaj 3

Nr. camere 2 camere

Nr. bai 1

Nr. balcoane 1 balcon

Confort 1

Tip constructie In bloc

Status constructie Finalizat

Disponibila incepand cu 2022-10-28

Judet Bucuresti

Oras/ Sector Sector 3

Zona Dristor

Gps lat 44.415222

Gps lng 26.144357

Internet Wireless

Curent electric

Detector de gaze

Interfon

Internet prin cablu

Cablu TV

Geamuri termopan

Repartitoare

Balcon inchis

Parchet

Apometre

Gresie

Faianta

Gaz

Mobilat

Bucatarie mobilata

Bloc reabiliat termic

Lift

Superb apartament Dristor Complet Mobilat

Proprietate vanduta

Ai o proprietate similara? Vinde-o cu noi.
Vinde apartament

Cod: REA1012881

Proprietati similare

Bucuresti, Sector 1, P-ta Romana

Apartament, 2 camere

38 mp 3 1962

104.000 EUR

Detalii

Bucuresti, Titan, Theodor Pallady

Apartament, 2 camere

71 mp P 2026

93.000 EUR

Detalii

Bucuresti, Stefan Cel Mare

Apartament, 2 camere

43.43 mp 2 1964

87.000 EUR

Detalii

Bucuresti, Stefan Cel Mare

Apartament, 2 camere

43.17 mp 3 1964

92.000 EUR

Detalii

Bucuresti, Ultracentral, Sala Palatului

Apartament, 2 camere

33 mp 9 1959

89.000 EUR

Detalii

Bucuresti, Stefan Cel Mare

Apartament, 2 camere

40 mp 4 1960

90.000 EUR

Detalii

Bucuresti, Sector 1, P-ta Romana

Apartament, 2 camere

37.49 mp 2 1959

96.000 EUR

Detalii

Bucuresti, Tei, Lacul Tei

2 camere cu loc parcare exterior inclus

37 mp P 1974

95.000 EUR

Detalii
Apartamente 2 camere vandute in Dristor, Bucuresti Apartamente 2 camere de vanzare in Dristor, Bucuresti

Afla primul de cele mai bune oferte
inainte sa ajunga pe piata

Aboneaza-te la newsletter

Aboneaza-te la notificari