Dristor 4 camere 80 mp P 1984

SVN Residentialist Pipera va ofera spre vanzare un apartament spatios cu 4 camere, situat la parterul unui bloc solid construit in anul 1984, imobil reabilitat termic, amplasat intr-o zona linistita si bine conectata din apropierea statiei de metrou Nicolae Grigorescu.

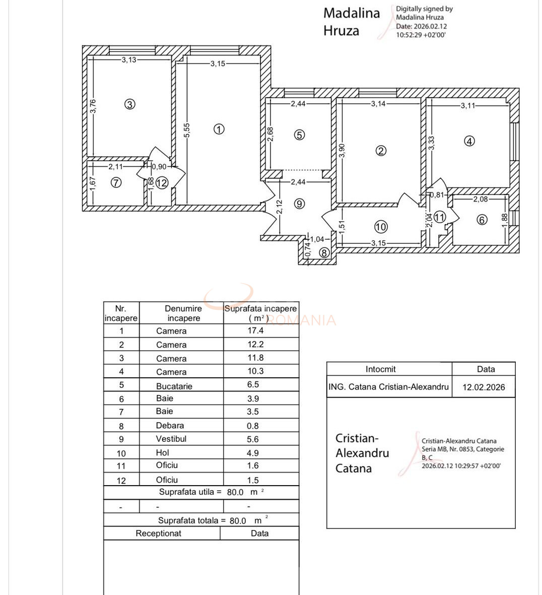
Locuinta este compusa din living generos, trei dormitoare, doua bai dintre care baia principala beneficiaza de geam pentru ventilatie naturala, bucatarie separata si un hol amplu unde regasim un dressing incapator, compartimentat practic, ideal pentru organizare eficienta. Apartamentul a fost renovat recent si dispune de centrala termica proprie, oferind confort termic si costuri optimizate de intretinere.

Proprietatea se vinde semimobilata, incluzand mobilierul din bucatarie, living si un dormitor, precum si electrocasnicele existente, respectiv doua televizoare, masina de spalat rufe, frigider, cuptor cu microunde si centrala termica.

Zona se remarca prin accesibilitate excelenta si multiple facilitati in imediata apropiere. Statia de autobuz 102 se afla la doar 2 minute de mers pe jos, iar statia de metrou Nicolae Grigorescu este la aproximativ 12 minute. In zona se regasesc scoli, gradinite, supermarketuri si centre comerciale, iar ParkLake Mall poate fi accesat in aproximativ 20 de minute. Cartierul este apreciat pentru spatiile verzi, atmosfera aerisita si echilibrul dintre liniste si acces rapid catre principalele puncte de interes ale orasului.

Proprietatea este eligibila pentru achizitie prin credit bancar.

Va invitam cu drag sa programati o vizionare si sa descoperiti personal aceasta proprietate exceptionala! Pentru detalii suplimentare sau pentru stabilirea unei intalniri, va stam la dispozitie telefonic.

An constructie 1984

Suprafata construita 96 mp

Suprafata utila 80 mp

Regim Inaltime P / 10

Etaj P

Nr. camere 4 camere

Nr. bai 2

Nr. balcoane 0 balcoane

Confort 1

Compartimentare Decomandat

Tip constructie In bloc

Status constructie Finalizat

Disponibila incepand cu 2026-02-19

Judet Bucuresti

Oras/ Sector Sector 3

Zona Dristor

Gps lat 44.411524

Gps lng 26.147465

Interfon

Internet Wireless

Internet prin cablu

Cablu TV

Curent electric

Geamuri termopan

Parchet

Gresie

Faianta

Gaz

Incalzire proprie

Calorifere

WC serviciu

Mobilat

Aer conditionat

Bucatarie mobilata

Lift

Valoare proprietate (€)

Perioada (ani)

Procent avans (26.250 €)


Suma creditata 148.750

Dobanda 4.9%

Rata lunara 3.678 lei

Broker Imobiliar

Cristina Iordache , Consultant imobiliar Vezi toate proprietatile

0317100200

Apartament 4 camere I Fizicienilor I Vanzare

Pret vanzare
175.000 €

Telefon Consultant imobiliar
0317100200

Cod: REA1027867

Proprietati similare

Bucuresti, Titan

Apartament, 4 camere

80 mp 1 1975

159.000 EUR

Detalii

Bucuresti, Titan

Apartament, 4 camere

101 mp 1 2025

160.100 EUR

Detalii

Bucuresti, Titan

Apartament, 4 camere

101 mp 4 2025

160.100 EUR

Detalii

Bucuresti, Sector 3, Unirii

Apartament, 4 camere

89 mp 1 1936

175.000 EUR

Detalii

Bucuresti, Pantelimon

Apartament, 4 camere

86 mp 7 1976

179.000 EUR

Detalii

Bucuresti, Sector 4, P-ta Unirii

Apartament, 4 camere

92 mp 2 1930

179.000 EUR

Detalii

Bucuresti, Ferdinand

Apartament, 4 camere

79 mp 1 1984

186.900 EUR

Detalii

Bucuresti, Mosilor

Apartament, 4 camere

81 mp 4 1986

185.000 EUR

Detalii
Apartamente 4 camere vandute in Dristor, Bucuresti Apartamente 4 camere de vanzare in Dristor, Bucuresti

Afla primul de cele mai bune oferte
inainte sa ajunga pe piata

Aboneaza-te la newsletter

Aboneaza-te la notificari