Liviu Rebreanu 2 camere 45 mp 8 1965

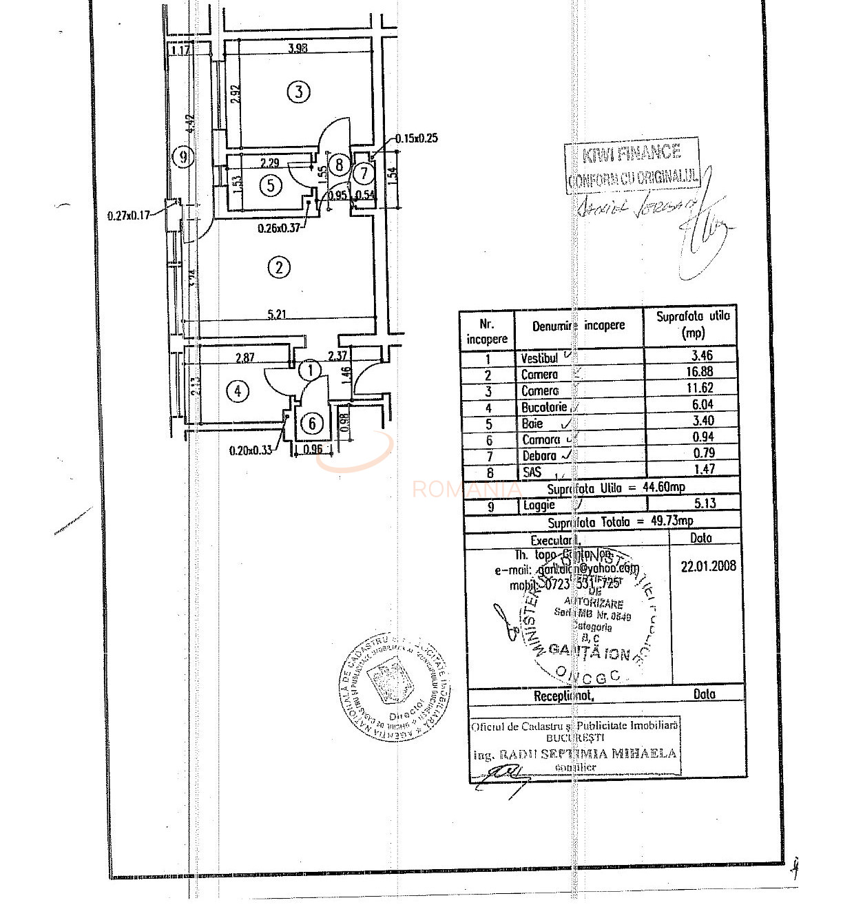
SVN Romania propune spre vanzare un apartament semidecomandat, compus din 2 camere de locuit, bucatarie, baie cu geam si balcon, situat in Titan, str.Liviu Rebreanu nr. 29,,Sector 3, cu o suprafata utila de 45 mp si totala 50 mp, la etajul 8, intr-un bloc reabilitat termic tip P+10E.

Apartamentul are instalatia electrica cu fir de cupru, instalatia termica cu teava de cupru si calorifere de fonta, apometre si repartitoare de caldura.

In apropriere se regaseste o retea dezvoltata de transport in comun (15 min de metroul Titan), unitati comerciale 10 min de Auchan), de invatamant (5 min de gradinita), bancare, de cult si de agrement (10 min de World Class)

Conform certificatului de performanta energetica nr. 1940/13.01.2022, imobilul se incadreaza in Clasa energetica A, Consumul total specific de energie primara este de 126.4, Indicele de emisii echivalent CO2 este 28.4 iar Consum total specific de energie din surse regenerabile este 0.

Pentru mai multe detalii, va rugam sa ne contactati.

An constructie 1965

Suprafata construita 50 mp

Suprafata utila 45 mp

Suprafata terasa 5 mp

Regim Inaltime 8 / 10

Etaj 8

Nr. camere 2 camere

Nr. bai 1

Nr. balcoane 1 balcon

Confort 1

Compartimentare Semidecomandat

Tip constructie In bloc

Status constructie Finalizat

Disponibila incepand cu 2025-02-27

Judet Bucuresti

Oras/ Sector Sector 3

Zona Liviu Rebreanu

Gps lat 44.424843

Gps lng 26.172900

Clasa energetica 1

Consum energie primara 126.40

Indice consum co2 28.40

Curent electric

Internet Wireless

Internet prin cablu

Internet prin Dial-Up

Detector de gaze

Cablu TV

Internet prin fibra optica

Interfon

Geamuri termopan

Balcon inchis

Parchet

Apometre

Gresie

Faianta

Gaz

Calorifere

Lift

Apartament 2 Camere de Vanzare Titan Liviu Rebreanu Sector 3

Proprietate vanduta

Ai o proprietate similara? Vinde-o cu noi.
Vinde apartament

Cod: REA1018269

Proprietati similare

Bucuresti, Titan, 1 Decembrie 1918

Apartament, 2 camere

45 mp D 2012

66.000 EUR

Detalii

Bucuresti, Mosilor

Apartament, 2 camere

43 mp 5 1939

70.000 EUR

Detalii

Bucuresti, Berceni, Brancoveanu

Apartament, 2 camere

38 mp 8 1976

70.000 EUR

Detalii

Bucuresti, Drumul Taberei

Apartament, 2 camere

41.2 mp 5 1973

72.000 EUR

Detalii

Bucuresti, Militari

Apartament, 2 camere

37.07 mp 2 2010

68.900 EUR

Detalii
Apartamente 2 camere vandute in Titan, Bucuresti Apartamente 2 camere de vanzare in Titan, Bucuresti

Afla primul de cele mai bune oferte
inainte sa ajunga pe piata

Aboneaza-te la newsletter

Aboneaza-te la notificari