Piata Unirii (s3) 4 camere 154.09 mp 3 2020

SVN Romania va prezinta un ansamblu rezidential cu adevarat special, care a schimbat in bine peisajul urban dintr-o zona din Bucurestiului foarte importanta din punct de vedere al istoriei.

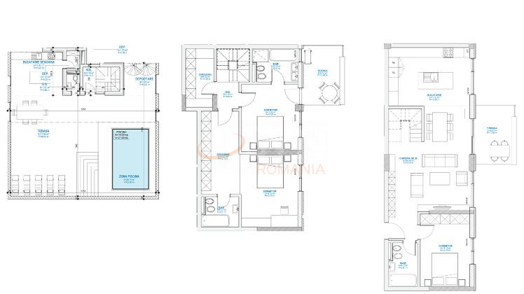
Penthouse de 4 camere dispune de o compartimentare decomandata, fiind compus din:
-etaj 2: living, bucatarie open-space, 1 dormitor, 1 baie, 1 terasa de 8mp;
-etaj 3: 1 hol, 2 dormitoare, 2 dressing-uri, 2 bai, 1 terasa de 8mp ;
-acocperis : 1 bucatarie deschisa, 1 grup sanitar, 1 debara, 1 terasa de 71.54mp , 1 piscina de 29.76mp;
, toate acestea avand suprafata totala de 154mp + 1 terasa de 71.54mp + 1 piscina de 29.76mp.

O alternativa de succes pentru cei ce doresc sa locuiasca intr-o zona linistita, verde, departe de aglomeratia urbana, cu acces facil la mijloacele de transport.

Dotari :
-Fatada exterioara a constructiei respecta si pastreaza pe deplin istoria si eleganta cladirii anterioare;
-Fatada interioara este ventilata, placata cu fibrociment EQUITONE;
-Constructia este o structura de tip cadre, stalpi de beton armat, iar planseele sunt de tip placa dala, cu pereti exteriori si interiori intre apartamente, din caramida poroterm;
-Izolatia exterioara a constructiei in curtile interioare, este termosistem cu polistiren grafitat si vata minerala bazaltica pe corpul central, la fatada ventilata;
-Constructia are un acoperis din tabla dublu faltuita RAL 7024 – productie arcelor mittal Germania;
-Termoizolatia acoperisului este realizata din 2 straturi de vata minerala bazaltica de 15 cm si un strat de 5 cm spuma poliuretanica de 5 cm cu celula inchisa;
-Centrala termica de apartament este VIESSMANN in condensatie cu tiraj fortat, (unele racordate la un cos multiplu, cu evacuare prin acoperis);
-Incalzirea in apartamente este realizata in pardoseala (CALEFFI – RDZ), iar in bai – calorifere port-prosop;
-Parchet triplu stratificat – BARLINEK de 14 mm, special pentru incalzirea in pardoseala;
AC in fiecare camera (dormitor, living) sistem Multisplit – MITSUBITSHI HEAVY INDUSTRIES;
-Tamplarie exterioara din aluminiu REYNAERS;
-Concept modern de design pentru gresie si faianta, in bai – PORCELANOSA, iar pe spatiile comune – MARAZZI;
-Obiecte sanitare – LAUFEN, baterii – HANSGROHE;
-Usa exterioara blindata PINUM – Nusco 8 Silver, usi interioare gama premium cu balamale ascunse si inchidere magnetica PINUM – SUITE PLUS;
-Intrerupatoare si prize – BITICINO gama premium;
-3 Lifturi – „mp” de 5-8 persoane;
-Videointerfon – HIKVISION;
-Zugraveli interioare – CAPAROL.

Pozele pot avea caracter informativ.

Momentan nu detinem informatii in legatura cu certificatul energetic.

PRETURILE SUNT PLUS TVA.

Pentru mai multe informatii si vizionari, contactati-ne.

An constructie 2020

Suprafata construita 240.55 mp

Suprafata utila 154.09 mp

Suprafata terasa 71.54

Regim Inaltime 3 / 3

Etaj 3

Nr. camere 4 camere

Nr. bai 4

Nr. balcoane 0 balcoane

Confort Lux

Tip constructie In bloc

Status constructie Finalizat

Disponibila incepand cu 2022-05-24

Judet Bucuresti

Oras/ Sector Sector 3

Zona Piata Unirii (s3)

Gps lat 44.428933

Gps lng 26.113229

Complex rezidential Royal Apartments

Detector de gaze

Interfon

Curent electric

Supraveghere video

Internet Wireless

Cablu TV

Geamuri termopan

Parchet

Apometre

Gresie

Faianta

Gaz

Incalzire proprie

Lift

Penthouse cu terasa si piscina Unirii

Proprietate vanduta

Ai o proprietate similara? Vinde-o cu noi.
Vinde apartament

Cod: REA1009999

Proprietati similare

Exclusiv Discount

Bucuresti, Ultracentral, Piata Sfintii Voievozi

4 camere cu loc parcare subteran inclus

171.2 mp P 2016

990.000 EUR

Detalii

Bucuresti, Dorobanti

Apartament, 4 camere

136 mp 2 2014

850.000 EUR

Detalii

Bucuresti, Floreasca

Apartament, 4 camere

205.11 mp 10 2020

984.528 EUR

Detalii

Bucuresti, Floreasca

Apartament, 4 camere

125 mp 2 2023

835.000 EUR

Detalii

Bucuresti, Floreasca

Apartament, 4 camere

150 mp 2 2025

850.000 EUR

Detalii

Bucuresti, Floreasca

Apartament, 4 camere

163.92 mp 10 2025

917.305 EUR

Detalii

Bucuresti, Herastrau

Apartament, 4 camere

148 mp 5 2013

990.000 EUR

Detalii

Bucuresti, Berceni

4 camere cu loc parcare exterior inclus

362 mp 9 2023

850.000 EUR

Detalii
Apartamente 4 camere vandute in Unirii, Bucuresti Apartamente 4 camere de vanzare in Unirii, Bucuresti

Afla primul de cele mai bune oferte
inainte sa ajunga pe piata

Aboneaza-te la newsletter

Aboneaza-te la notificari