Piata Unirii (s3) 4 camere 131.56 mp 11 2021

Cu bucurie SVN Residentialist va prezinta un Penthouse nou, cu 4 camere, oferind o priveliste panoramica unica, situat in inima capitalei, la doar 5 minute de statia de metrou Timpuri Noi.

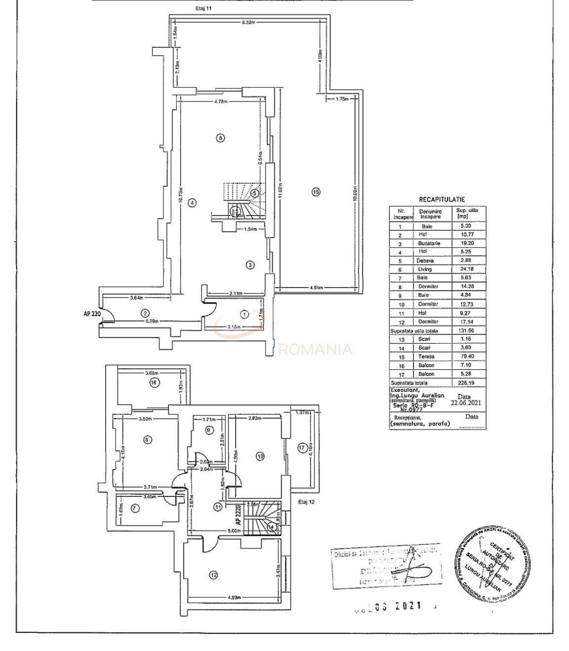
Acest apartament de exceptie dispune de o terasa impresionanta de 80 mp, in forma de L, a carei vedere panoramica va va captiva atentia.

Situat pe partea de sud-vest, acest penthouse beneficiaza de lumina naturala pe tot parcursul zilei, oferindu-va deasemenea un cadru unic pentru a va bucura de un apus exceptional.

Aceasta proprietate se intinde pe 2 etaje, cu o scara de acces interioara din marmura, un hol generos, living spatios cu bucatarie open space si baie la primul nivel.

Nivelul doi cuprinde un dormitor matrimonial de 18 mp cu baie proprie si balcon, un hol de 10 mp, alte doua dormitoare de 15 mp si, respectiv, 13 mp, ambele cu balcoane, si o baie mare de 6 mp.

Caracteristici Cheie:

Penthouse Nou: Acest apartament va ofera sansa de a fi primul locatar intr-un spatiu modern si elegant.

4 Camere: Cu 4 camere, acest penthouse ofera suficient spatiu pentru a va crea un camin perfect pentru familia dvs.

Priveliste Panoramica: Cu o priveliste panoramica asupra orasului, veti admira zilnic peisajul urban.

Terasa Impresionanta: Terasa spatioasa de 80 mp in forma de L este locul perfect pentru a va relaxa, petrece timp cu familia si prietenii sau chiar pentru a organiza evenimente.

Lumina Naturala: Datorita amplasarii pe partea de sud-vest, veti avea parte de lumina naturala pe toata durata zilei.

Finisaje de Inalta Calitate: Proprietatea este complet echipata cu tamplarie, parchet, gresie, faianta si centrala proprie, oferindu-va posibilitatea de a va personaliza locuinta dupa bunul gust.

Securitate: Complexul dispune de paza umana si supraveghere video 24/7, oferindu-va un mediu sigur si linistit.

Aceasta proprietate este vanduta exact asa cum se vede in pozele atasate, astfel incat aveti oportunitatea de a va crea locuinta visata dupa propriul gust.

Pentru mai multe informatii sau pentru a programa o vizionare, va rugam sa ne contactati. Nu pierdeti ocazia de a deveni proprietarul acestui penthouse cu adevarat deosebit.

An constructie 2021

Suprafata construita 226.19 mp

Suprafata utila 131.56 mp

Suprafata terasa 93

Regim Inaltime 11 / 12

Etaj 11

Nr. camere 4 camere

Nr. bai 1

Nr. balcoane 3 balcoane

Confort Lux

Compartimentare Decomandat

Tip constructie In bloc

Status constructie Finalizat

Disponibila incepand cu 2024-02-06

Judet Bucuresti

Oras/ Sector Sector 3

Zona Piata Unirii (s3)

Gps lat 44.419879

Gps lng 26.115822

Nr. terase 1

Curent electric

Supraveghere video

Internet Wireless

Sistem de alarma

Supraveghere 24/7

Cablu TV

Interfon

Detector de gaze

Geamuri termopan

Repartitoare

Parchet

Apometre

Gresie

Faianta

Gaz

Loc parcare exterior

Calorifere

Incalzire proprie

WC serviciu

Lift

Penthouse Nou 4 Camere Vedere Panoramica

Proprietate vanduta

Ai o proprietate similara? Vinde-o cu noi.
Vinde apartament

Cod: REA1017003

Proprietati similare

Bucuresti, Tineretului, Timpuri Noi

Apartament, 4 camere

118 mp 9 2023

399.900 EUR

Detalii

Bucuresti, Unirii, Piata Unirii (s3)

Apartament, 4 camere

112 mp 8 2022

395.000 EUR

Detalii

Bucuresti, Mihai Bravu, Mihai Bravu (s3)

Apartament, 4 camere

127 mp 13 2024

375.000 EUR

Detalii

Bucuresti, Mihai Bravu, Mihai Bravu (s3)

Apartament, 4 camere

111 mp 17 2024

350.000 EUR

Detalii

Bucuresti, Unirii, Piata Unirii (s3)

Apartament, 4 camere

96 mp 1 1980

360.000 EUR

Detalii

Bucuresti, Unirii, Piata Unirii (s3)

Apartament, 4 camere

96 mp 1 1992

389.000 EUR

Detalii

Bucuresti, Ferdinand

Apartament, 4 camere

97.8 mp 4 2026

349.000 EUR

Detalii

Bucuresti, Ultracentral, Piata Romana

Apartament, 4 camere

100 mp 2 1983

375.000 EUR

Detalii
Apartamente 4 camere vandute in Unirii, Bucuresti Apartamente 4 camere de vanzare in Unirii, Bucuresti

Afla primul de cele mai bune oferte
inainte sa ajunga pe piata

Aboneaza-te la newsletter

Aboneaza-te la notificari