Titan 2 camere 50 mp 7 2013

SVN Romania va propune spre vanzare un apartament cu totul deosebit de 2 camere amplasat intr-o zona semicentrala a Bucurestiului, zona Titan.

Apartamentul face parte din complexul Edenia Residence in apropriere de parcul titanii, IOR, Policlinica Titan, centrul comercial Auchan-Iris.

Imobilul este situat la etajul 7 din 10 al unui imobil finalizat in anul 2013.

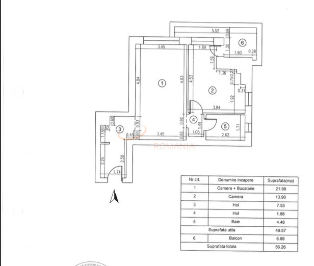
Apartamentul dispune de o compartimentare semidecomandata, fiind compus din: living + bucatarie deschisa, un dormitor, 1 baie si un balcon generos avand suprafata utila de 50m2.

Apartamentul se vinde complet mobilat/utilat.

Apartamentul are centrala proprie.

In vecinatate regasim la doar 8 minute de mers pe jos statia de metrou Titan si alte mijloace de transport in comun. Puncte de interes in apropiere: magazine, restaurante, farmacii, gradinite, scoli, parcuri inclusiv centrul comerical ParkLake.

- Centrala termica comuna pentru intregul bloc
- Programator functionare caldura zi/noapte pe zile si ore
- Aviz si inspectie de gaze obligatorie la zi
- Guri de ventilatie pentru a asigura o ventila?ie natural? eficient?
- Spatii de depozitare generoase, proiectate cu aten?ie la detalii
- Izolat fonic, in apartament nu se aud zgomote de la alte apartamente si din exterior
- Ferestre luminoase orientate catre nord (living) si catre nord si est (dormitor)
- Balcon generos, vedere bilaterala catre intrarea in bloc si catre parcul Titanii, vederea nu este blocata de alte blocuri.

Certificat energetic clasa A.

Pentru mai multe detalii si vizionari va stau la dispozitie.

An constructie 2013

Suprafata construita 56.26 mp

Suprafata utila 50 mp

Suprafata terasa 6.69 mp

Regim Inaltime 7 / 10

Etaj 7

Nr. camere 2 camere

Nr. bai 1

Nr. balcoane 1 balcon

Confort 1

Compartimentare Semidecomandat

Tip constructie In bloc

Status constructie Finalizat

Disponibila incepand cu 2023-10-18

Judet Bucuresti

Oras/ Sector Sector 3

Zona Titan

Gps lat 44.421186

Gps lng 26.172367

Internet prin fibra optica

Supraveghere video

Cablu TV

Internet Wireless

Sistem de alarma

Supraveghere 24/7

Curent electric

Interfon

Detector de gaze

Geamuri termopan

Repartitoare

Balcon inchis

Parchet

Apometre

Gresie

Telefon

Faianta

Gaz

Incalzire proprie

Calorifere

Mobilat

Aer conditionat

Bucatarie mobilata

Lift

Apartament 2 Camere Edenia Titan

Proprietate vanduta

Ai o proprietate similara? Vinde-o cu noi.
Vinde apartament

Cod: REA1014961

Proprietati similare

Bucuresti, Titan

Apartament, 2 camere

50.77 mp 2 2025

105.700 EUR

Detalii

Bucuresti, Vitan

Apartament, 2 camere

61 mp 10 2008

105.000 EUR

Detalii
Exclusiv Discount

Bucuresti, Iancului

Apartament, 2 camere

49.77 mp 5 1962

110.000 EUR

Detalii
Exclusiv Discount

Bucuresti, Colentina, Obor

Apartament, 2 camere

46.08 mp 5 1962

110.000 EUR

Detalii

Bucuresti, Colentina, Bucur Obor

Apartament, 2 camere

60.8 mp 4 1975

114.000 EUR

Detalii

Bucuresti, Sector 3, P-ta Unirii

Apartament, 2 camere

49 mp 3 1950

112.000 EUR

Detalii

Bucuresti, Colentina, Obor

Apartament, 2 camere

48.25 mp 8 1984

115.000 EUR

Detalii

Bucuresti, Sector 1, P-ta Universitatii

Apartament, 2 camere

48 mp 6 1959

105.000 EUR

Detalii
Apartamente 2 camere vandute in Titan, Bucuresti Apartamente 2 camere de vanzare in Titan, Bucuresti

Afla primul de cele mai bune oferte
inainte sa ajunga pe piata

Aboneaza-te la newsletter

Aboneaza-te la notificari