Titan 2 camere 45 mp 8 2012

SVN Romania va prezinta spre achizitie un apartament deosebit, in complexul residential Evocasa Armonia.

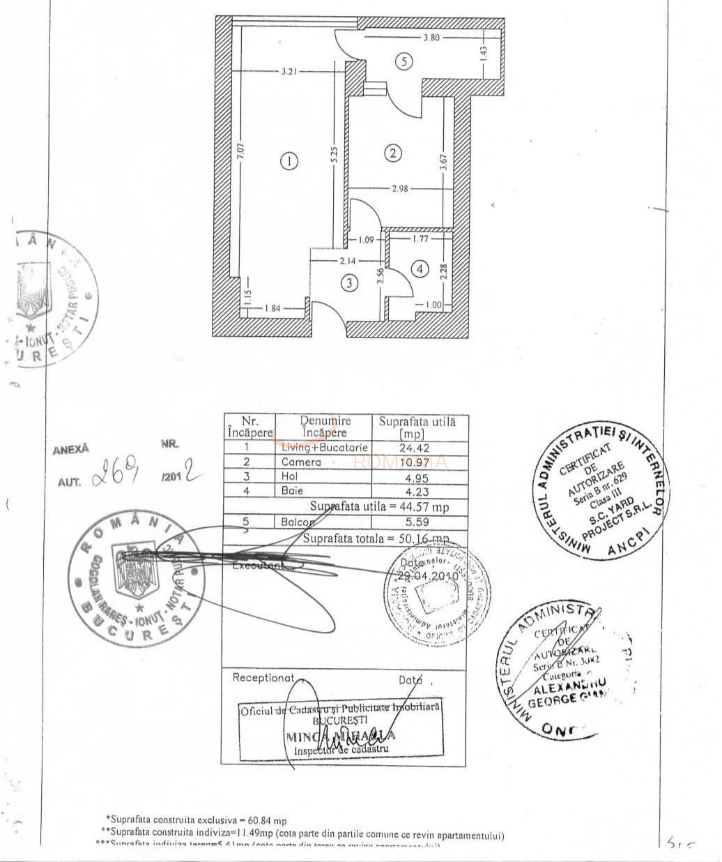
Apartamentul este decomandat, cu o suprafata de 51mp si este impartit astfel: un living generos cu bucataria open space, dormitor, terasa mare de 6 mp din care se iese atat din dormitor cat si din living si o baie.

Imobilul se vinde asa cum apare in fotografii, mobilat si utilat complet, fiind astfel ideal ca investitie pentru cei ce doresc sa-l inchirieze imediat dupa achizitie.

Proprietatea se afla in complexul Residential Evocasa Armonia, format din 3 blocuri a cate 13 etaje, si dispune de paza non-stop de la BGS, supraveghere video, loc de joaca pentru copii si o gradina frumos amenajata cu mult spatiu verde si flori.

Apartamentul se afla la etajul 8 intr-un bloc cu 13 etaje si are astfel o vedere panoramica asupra orasului.

In imediata apropiere, pe aceeasi strada se afla un complex comercial cu supermarket, farmacii, sala de fitnes dar si Gradinita 231 si Scoala Gimnaziala Garcia Lorga.

Metroul se afla la 750m de locatie si la 2 minute se afla statiile STB.

Certificatul energetic va fi pus la dispozitie la momentul tranzactiei.

Pentru mai multe detalii sau stabilirea unei vizionari nu ezitati sa ne contactati.


*Vizionarea acestui imobil se face doar in baza semnarii unui acord de vizionare conform codului civil art 2.096-2.102.

An constructie 2012

Suprafata construita 65 mp

Suprafata utila 45 mp

Suprafata terasa 6 mp

Regim Inaltime 8 / 13

Etaj 8

Nr. camere 2 camere

Nr. bai 1

Nr. balcoane 1 balcon

Confort 1

Compartimentare Decomandat

Tip constructie In bloc

Status constructie Finalizat

Disponibila incepand cu 2024-09-30

Judet Bucuresti

Oras/ Sector Sector 3

Zona Titan

Gps lat 44.423419

Gps lng 26.171550

Sistem de alarma

Supraveghere video

Cablu TV

Supraveghere 24/7

Curent electric

Internet prin cablu

Internet prin fibra optica

Internet Wireless

Interfon

Geamuri termopan

Repartitoare

Parchet

Apometre

Gresie

Telefon

Faianta

Gaz

Calorifere

Mobilat

Aer conditionat

Bucatarie mobilata

Lift

Apartament 2 camere mobilat utilat Evocasa Armonia

Proprietate vanduta

Ai o proprietate similara? Vinde-o cu noi.
Vinde apartament

Cod: REA1019986

Proprietati similare

Bucuresti, Titan

Apartament, 2 camere

64 mp 4 2025

107.200 EUR

Detalii

Bucuresti, Titan, Nicolae Grigorescu

Apartament, 2 camere

53.1 mp 10 1974

109.900 EUR

Detalii

Bucuresti, Titan, Basarabia

2 camere cu loc parcare exterior inclus

44 mp 7 1980

112.000 EUR

Detalii

Bucuresti, Titan, Theodor Pallady

2 camere cu loc parcare subteran inclus

43.29 mp 3 2007

105.000 EUR

Detalii

Bucuresti, Unirii, Splaiul Unirii (s3)

Apartament, 2 camere

63.5 mp 4 2026

110.800 EUR

Detalii

Bucuresti, Vitan

Apartament, 2 camere

61 mp 10 2008

105.000 EUR

Detalii

Bucuresti, Iancului

Apartament, 2 camere

54.26 mp 8 1960

109.000 EUR

Detalii

Bucuresti, Colentina, Doamna Ghica

Apartament, 2 camere

54 mp 10 2010

105.000 EUR

Detalii
Apartamente 2 camere vandute in Titan, Bucuresti Apartamente 2 camere de vanzare in Titan, Bucuresti

Afla primul de cele mai bune oferte
inainte sa ajunga pe piata

Aboneaza-te la newsletter

Aboneaza-te la notificari