Titan 4 camere 74.8 mp 2 1973

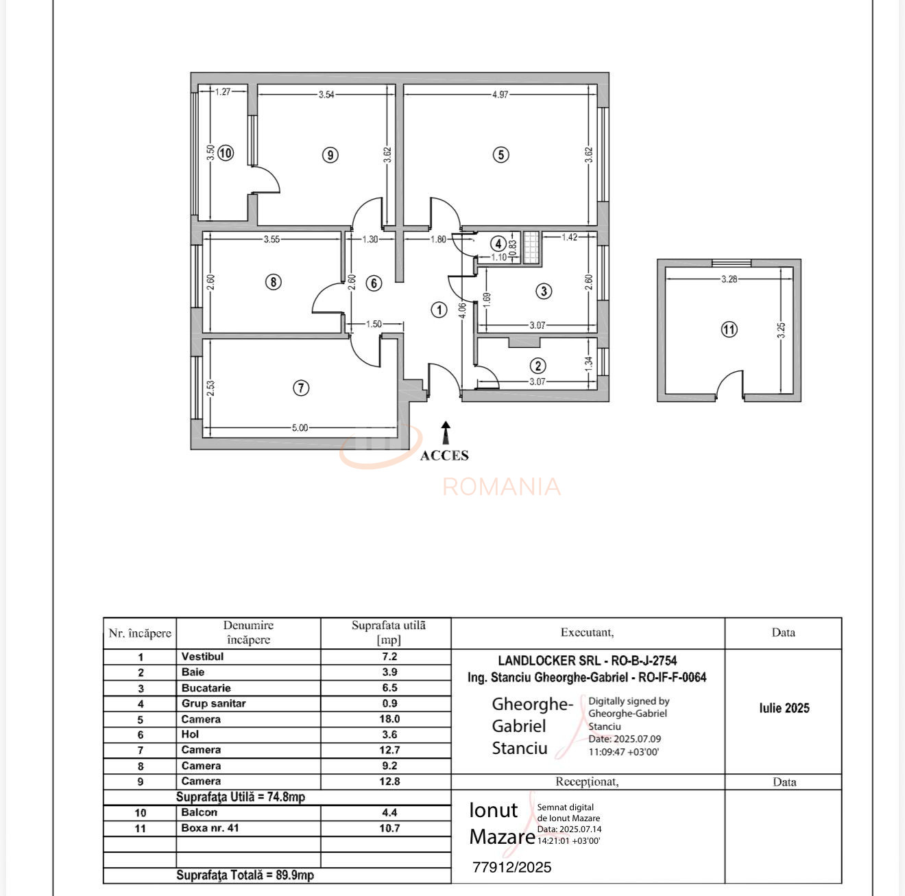
SVN Romania va propune spre vanzare un apartament de 4 camere decomandat, situat in zona Titan, la etajul 2 al unui imobil cu 4 niveluri. Locuinta dispune de o suprafata utila de 75 mp, la care se adauga un balcon de 5 mp si o boxa de 10 mp.

Apartamentul necesita renovare integrala, oferind viitorilor proprietari posibilitatea de a-l amenaja dupa propriul stil si preferinte.

Compartimentarea este practica, camerele sunt luminoase, iar pozitionarea la etaj intermediar asigura confort si liniste. Zona beneficiaza de acces rapid la mijloace de transport, scoli, gradinite si centre comerciale.

O locuinta cu potential, ideala pentru cei care isi doresc sa isi personalizeze complet spatiul de trai.

Pentru mai multe informatii si vizionari, va stau la dispozitie.

An constructie 1973

Suprafata construita 104 mp

Suprafata utila 74.8 mp

Suprafata terasa 4.4 mp

Regim Inaltime 2 / 4

Etaj 2

Nr. camere 4 camere

Nr. bai 2

Nr. balcoane 1 balcon

Confort 1

Compartimentare Decomandat

Tip constructie In bloc

Status constructie Finalizat

Disponibila incepand cu 2025-10-02

Judet Bucuresti

Oras/ Sector Sector 3

Zona Titan

Gps lat 44.414846

Gps lng 26.184251

Cablu TV

Curent electric

Interfon

Parchet

Boxa

Gresie

Faianta

Gaz

Calorifere

WC serviciu

Mobilat

Aer conditionat

Fara imbunatatiri

Bucatarie mobilata

Valoare proprietate (€)

Perioada (ani)

Procent avans (16.200 €)


Suma creditata 91.800

Dobanda 4.9%

Rata lunara 2.270 lei

Broker Imobiliar

Sofia Zbora , Consultant imobiliar Vezi toate proprietatile

0317100200

Apartament 4 camere Titan

Pret vanzare
108.000 €

Telefon Consultant imobiliar
0317100200

Cod: REA1025880
Apartamente 4 camere vandute in Titan, Bucuresti Apartamente 4 camere de vanzare in Titan, Bucuresti

Afla primul de cele mai bune oferte
inainte sa ajunga pe piata

Aboneaza-te la newsletter

Aboneaza-te la notificari