Unirii (s3) 2 camere 44.6 mp 5 1960

Va propunem spre vanzare un apartament cu o pozitie excelenta in cea mai centrala locatie a orasului : Unirii, in apropiere de fantani!

Apartamentul este pozitionat la etajul 5/7 intr-un imobil construit in anul 1960. Imobilul beneficiaza de 2 lifturi iar in viitorul apropiat o sa primeasca si reabilitare!

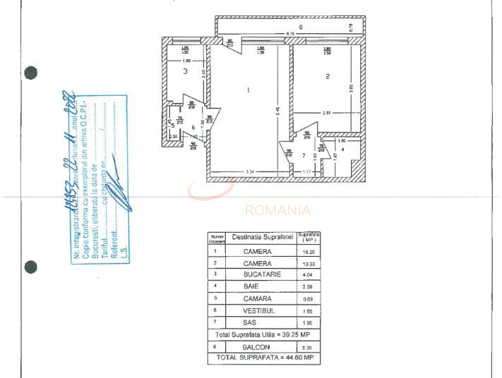
Proprietatea propusa are suprafata utila totala de 44,60mp, compartimentati semidecomandat astfel in living, dormitor, bucatarie inchisa, baie, camara pentru depozitare, balcon, vestibul si sas(releveu atasat)

Vederea acestuia este de exceptie, direct catre Hanul lui Manuc, neobturata catre centrul vechi!

Acesta este mobilat, utilat total si finisat la cheie, toate actele de asemenea fiind pregatite pentru vanzarea lui, iar preluarea cat si mutarea se poate face imediat!

In atentia investitorilor : apartamentul nu necesita nici o investitie, astfel apartamentul este perfect pentru regim hotelier airbnb/booking.

Disponibilitate oricand pentru vizionare!

Pentru orice alt detaliu aditional sau programarea unei vizionari, nu ezitati sa ne contactati!

An constructie 1960

Suprafata construita 51 mp

Suprafata utila 44.6 mp

Regim Inaltime 5 / 7

Etaj 5

Nr. camere 2 camere

Nr. bai 1

Nr. balcoane 1 balcon

Confort 1

Compartimentare Semidecomandat

Tip constructie In bloc

Status constructie Finalizat

Disponibila incepand cu 2023-06-09

Judet Bucuresti

Oras/ Sector Sector 3

Zona Unirii (s3)

Gps lat 44.429713

Gps lng 26.103094

Cablu TV

Interfon

Curent electric

Internet Wireless

Geamuri termopan

Parchet

Apometre

Gresie

Faianta

Gaz

Calorifere

Incalzire proprie

Mobilat

Aer conditionat

Bucatarie mobilata

Lift

Apartament 2 camere la cheie Unirii Fantani Investitie

Proprietate vanduta

Ai o proprietate similara? Vinde-o cu noi.
Vinde apartament

Cod: REA1014175

Proprietati similare

Bucuresti, Ultracentral, Centrul Istoric (s2)

Apartament, 2 camere

31 mp P 1946

89.990 EUR

Detalii

Bucuresti, Unirii, Piata Unirii (s3)

Apartament, 2 camere

59 mp P 1938

99.900 EUR

Detalii

Bucuresti, Ultracentral, Cismigiu

Apartament, 2 camere

35 mp 3 1940

85.000 EUR

Detalii

Bucuresti, Ultracentral, Piata Romana

Apartament, 2 camere

50 mp 4 1935

93.500 EUR

Detalii

Bucuresti, Tineretului

Apartament, 2 camere

50.2 mp 10 1978

94.900 EUR

Detalii

Bucuresti, Ultracentral, Cismigiu

Apartament, 2 camere

56.63 mp 4 1932

85.000 EUR

Detalii

Bucuresti, Stefan Cel Mare

Apartament, 2 camere

44.6 mp 1 1968

85.900 EUR

Detalii

Bucuresti, Stefan Cel Mare

Apartament, 2 camere

48 mp 3 1968

95.999 EUR

Detalii
Apartamente 2 camere vandute in Unirii, Bucuresti Apartamente 2 camere de vanzare in Unirii, Bucuresti

Afla primul de cele mai bune oferte
inainte sa ajunga pe piata

Aboneaza-te la newsletter

Aboneaza-te la notificari