Apartament, 4 camere, Bucuresti / Unirii / Unirii (s3)
O alternativa de succes pentru cei ce doresc sa locuiasca intr-o zona linistita, verde, departe de aglomeratia urbana, cu acces facil la mijloacele de transport.
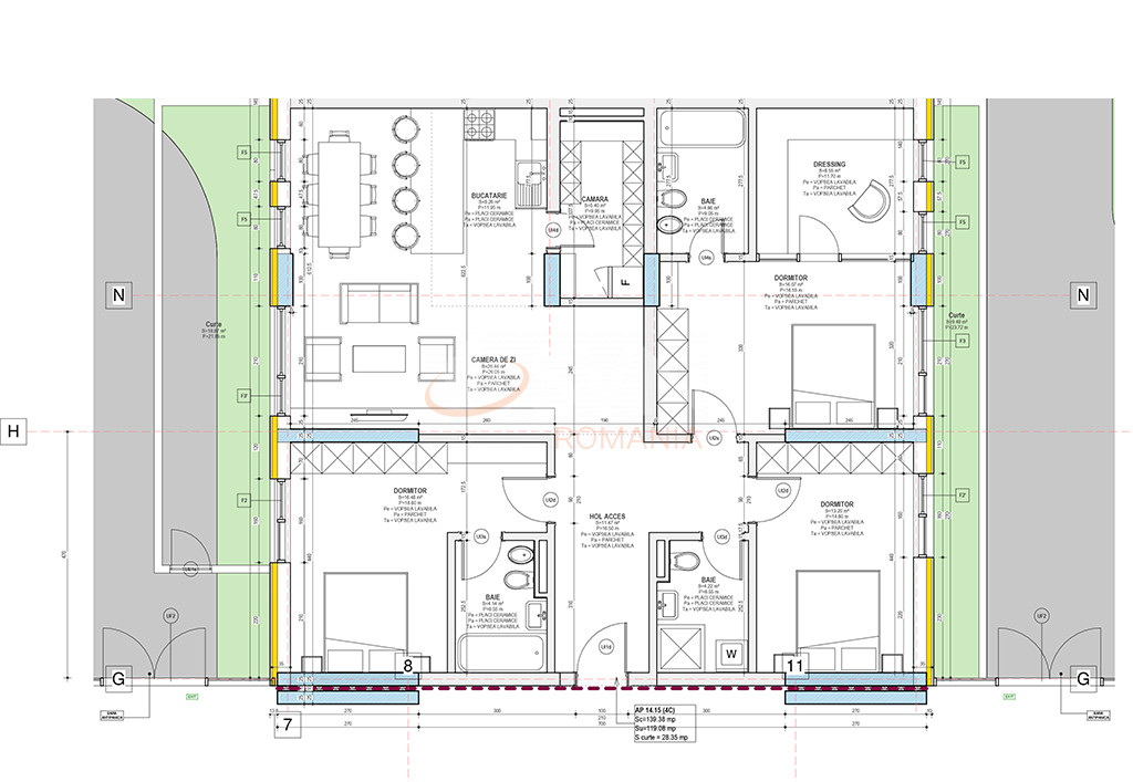
Apartamentul de 4 camere dispune de o compartimentare decomandata, fiind compus din: hol, living, bucatarie open-space, 1 camara, 3 dormitoare, 1 dressing, 3 bai, toate acestea avand suprafata totala de 119.08 mp + 1 curte de 28.35mp .
Dotari :
-Fatada exterioara a constructiei respecta si pastreaza pe deplin istoria si eleganta cladirii anterioare;
-Fatada interioara este ventilata, placata cu fibrociment EQUITONE;
-Constructia este o structura de tip cadre, stalpi de beton armat, iar planseele sunt de tip placa dala, cu pereti exteriori si interiori intre apartamente, din caramida poroterm;
-Izolatia exterioara a constructiei in curtile interioare, este termosistem cu polistiren grafitat si vata minerala bazaltica pe corpul central, la fatada ventilata;
-Constructia are un acoperis din tabla dublu faltuita RAL 7024 – productie arcelor mittal Germania;
-Termoizolatia acoperisului este realizata din 2 straturi de vata minerala bazaltica de 15 cm si un strat de 5 cm spuma poliuretanica de 5 cm cu celula inchisa;
-Centrala termica de apartament este VIESSMANN in condensatie cu tiraj fortat, (unele racordate la un cos multiplu, cu evacuare prin acoperis);
-Incalzirea in apartamente este realizata in pardoseala (CALEFFI – RDZ), iar in bai – calorifere port-prosop;
-Parchet triplu stratificat – BARLINEK de 14 mm, special pentru incalzirea in pardoseala;
AC in fiecare camera (dormitor, living) sistem Multisplit – MITSUBITSHI HEAVY INDUSTRIES;
-Tamplarie exterioara din aluminiu REYNAERS;
-Concept modern de design pentru gresie si faianta, in bai – PORCELANOSA, iar pe spatiile comune – MARAZZI;
-Obiecte sanitare – LAUFEN, baterii – HANSGROHE;
-Usa exterioara blindata PINUM – Nusco 8 Silver, usi interioare gama premium cu balamale ascunse si inchidere magnetica PINUM – SUITE PLUS;
-Intrerupatoare si prize – BITICINO gama premium;
-3 Lifturi – „mp” de 5-8 persoane;
-Videointerfon – HIKVISION;
-Zugraveli interioare – CAPAROL.
Pozele pot avea caracter informativ.
Momentan nu detinem informatii in legatura cu certificatul energetic.
PRETURILE SUNT PLUS TVA.
Pentru mai multe informatii si vizionari, contactati-ne.
Atribute
An constructie 2020
Suprafata construita 139.38 mp
Suprafata utila 119.08 mp
Regim Inaltime P / 3
Etaj P
Nr. camere 4 camere
Nr. bai 3
Nr. balcoane 0 balcoane
Confort Lux
Tip constructie In bloc
Status constructie Finalizat
Disponibila incepand cu 2022-05-24
Judet Bucuresti
Oras/ Sector Sector 3
Zona Unirii (s3)
Gps lat 44.429052
Gps lng 26.113749
Complex rezidential Royal Apartments
Facilitati
Detector de gaze
Interfon
Curent electric
Supraveghere video
Internet Wireless
Cablu TV
Geamuri termopan
Parchet
Apometre
Gresie
Faianta
Gaz
Incalzire proprie
Lift
Apartament 4 camere spatios Unirii
Proprietate vanduta
Ai o proprietate similara? Vinde-o cu noi.
  Vinde apartament  
 
  
  
  
  
  
  
  
  
  
  
  
  
   
   
   
   
   
  
  
   
   
   
   
   
  
  
   
   
   
   
   
  
  
   
   
   
   
   
  
  
   
   
   
   
   
  
  
   
   
   
   
   
  
  
   
   
   
   
   
  
  
   
   
   
   
  