Unirii (s3) 4 camere 90.3 mp 3 2020

O alternativa de succes pentru cei ce doresc sa locuiasca intr-o zona linistita, verde, departe de aglomeratia urbana, cu acces facil la mijloacele de transport.

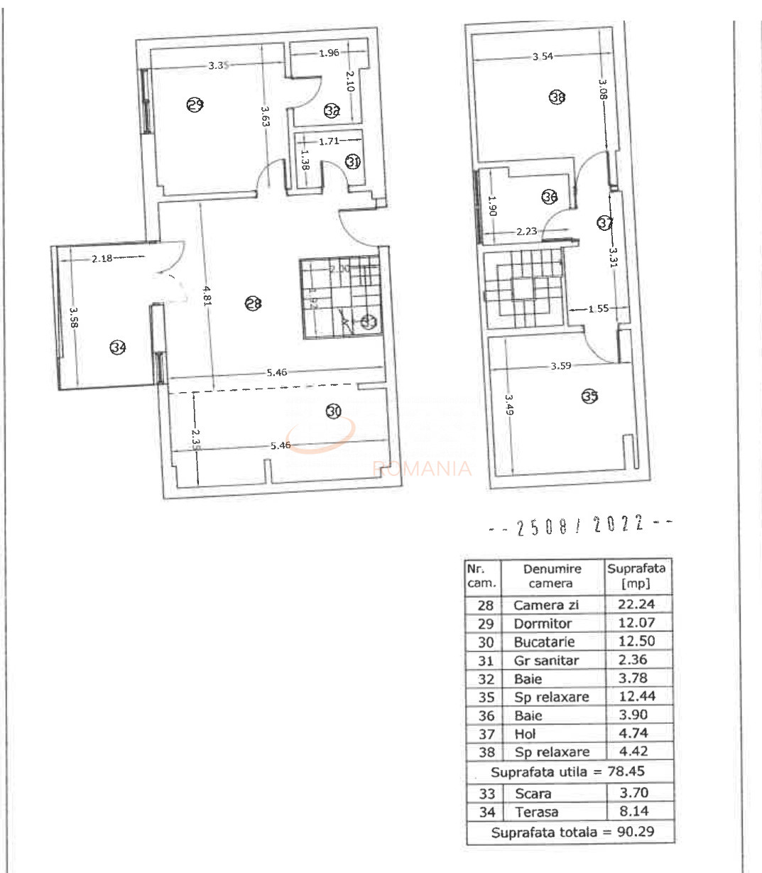
Apartamentul de 4 camere dispune de o compartimentare decomandata, fiind compus din:
-etaj 2: hol, living, bucatarie open-space, 1 dormitor, 2 bai, 1 terasa ,
-etaj 3 : hol, 2 dormitoare, 1 baie;

toate acestea avand suprafata totala de 82 mp plus terasa 8.15mp .

Proiectul este finalizat, gata de mutare.

Dotari :
-Fatada exterioara a constructiei respecta si pastreaza pe deplin istoria si eleganta cladirii anterioare;
-Fatada interioara este ventilata, placata cu fibrociment EQUITONE;
-Constructia este o structura de tip cadre, stalpi de beton armat, iar planseele sunt de tip placa dala, cu pereti exteriori si interiori intre apartamente, din caramida poroterm;
-Izolatia exterioara a constructiei in curtile interioare, este termosistem cu polistiren grafitat si vata minerala bazaltica pe corpul central, la fatada ventilata;
-Constructia are un acoperis din tabla dublu faltuita RAL 7024 – productie arcelor mittal Germania;
-Termoizolatia acoperisului este realizata din 2 straturi de vata minerala bazaltica de 15 cm si un strat de 5 cm spuma poliuretanica de 5 cm cu celula inchisa;
-Centrala termica de apartament este VIESSMANN in condensatie cu tiraj fortat, (unele racordate la un cos multiplu, cu evacuare prin acoperis);
-Incalzirea in apartamente este realizata in pardoseala (CALEFFI – RDZ), iar in bai – calorifere port-prosop;
-Parchet triplu stratificat – BARLINEK de 14 mm, special pentru incalzirea in pardoseala;
AC in fiecare camera (dormitor, living) sistem Multisplit – MITSUBITSHI HEAVY INDUSTRIES;
-Tamplarie exterioara din aluminiu REYNAERS;
-Concept modern de design pentru gresie si faianta, in bai – PORCELANOSA, iar pe spatiile comune – MARAZZI;
-Obiecte sanitare – LAUFEN, baterii – HANSGROHE;
-Usa exterioara blindata PINUM – Nusco 8 Silver, usi interioare gama premium cu balamale ascunse si inchidere magnetica PINUM – SUITE PLUS;
-Intrerupatoare si prize – BITICINO gama premium;
-3 Lifturi – „mp” de 5-8 persoane;
-Videointerfon – HIKVISION;
-Zugraveli interioare – CAPAROL.

Momentan nu detinem informatii in legatura cu certificatul energetic.

PRETURILE SUNT PLUS TVA.

Pentru mai multe informatii si vizionari, contactati-ne.

An constructie 2020

Suprafata construita 107.56 mp

Suprafata utila 90.3 mp

Suprafata terasa 8.15 mp

Regim Inaltime 3 / 3

Etaj 3

Nr. camere 4 camere

Nr. bai 4

Nr. balcoane 0 balcoane

Confort Lux

Tip constructie In bloc

Status constructie Finalizat

Disponibila incepand cu 2022-10-04

Judet Bucuresti

Oras/ Sector Sector 3

Zona Unirii (s3)

Gps lat 44.429052

Gps lng 26.113749

Complex rezidential Royal Apartments

Nr. terase 1

Curent electric

Detector de gaze

Interfon

Cablu TV

Supraveghere video

Internet Wireless

Geamuri termopan

Parchet

Apometre

Gresie

Faianta

Gaz

Incalzire proprie

Lift

Unirii Duplex 4 camere dezvoltator

Proprietate vanduta

Ai o proprietate similara? Vinde-o cu noi.
Vinde apartament

Cod: REA1009979

Proprietati similare

Bucuresti, Tineretului, Timpuri Noi

Apartament, 4 camere

84.29 mp 4 2027

258.000 EUR

Detalii
Exclusiv Discount

Bucuresti, Unirii, Alba Iulia

Apartament, 4 camere

98 mp 3 1996

259.900 EUR

Detalii

Bucuresti, Vitan

Apartament, 4 camere

90 mp 1 1992

260.000 EUR

Detalii

Bucuresti, Colentina, Bucur Obor

Apartament, 4 camere

95.5 mp 10 2026

250.775 EUR

Detalii

Bucuresti, Colentina, Bucur Obor

Apartament, 4 camere

109.9 mp 9 2026

255.580 EUR

Detalii

Bucuresti, Ultracentral, Kogalniceanu

Apartament, 4 camere

140 mp 1 1895

260.000 EUR

Detalii

Bucuresti, 1 Mai, Titulescu

Apartament, 4 camere

79.36 mp 4 1979

260.000 EUR

Detalii

Bucuresti, Ultracentral, Piata Victoriei

Apartament, 4 camere

95 mp 8 1981

229.000 EUR

Detalii
Apartamente 4 camere vandute in Unirii, Bucuresti Apartamente 4 camere de vanzare in Unirii, Bucuresti

Afla primul de cele mai bune oferte
inainte sa ajunga pe piata

Aboneaza-te la newsletter

Aboneaza-te la notificari