Vitan Mall 2 camere 57 mp P 1989

SVN Romania va propune spre vanzare un apartament cu 2 camere situat la parterul unui imobil edificat in anul 1989 in zona Vitan, la 5 minute de mers de Vitan Mall.

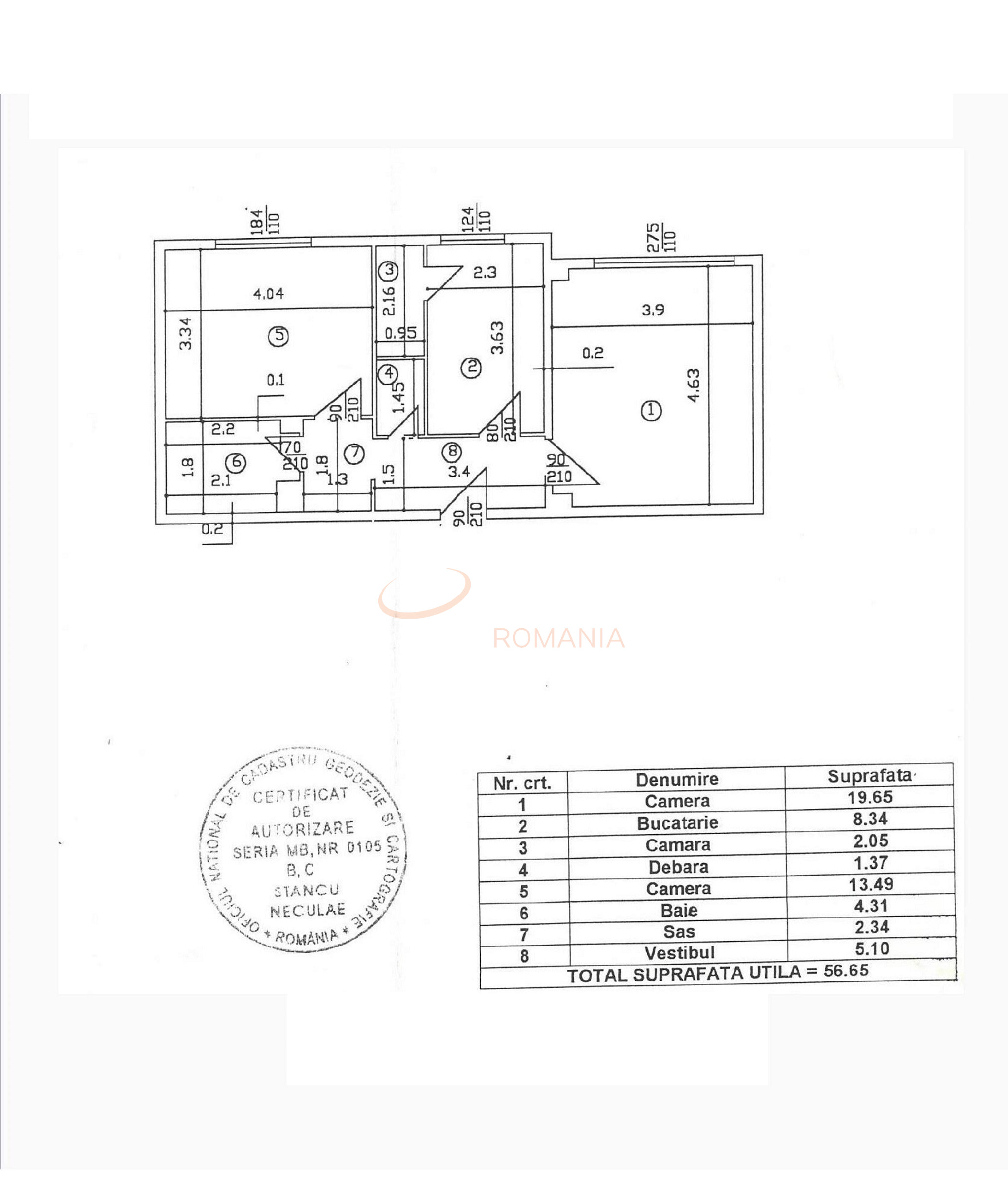
Apartamentul se afla la parter/4, este decomandat, are o suprafata utila de 57 mp si este compus din:
- living 20mp
- bucatarie 8mp
- dormitor 13.5mp
- baie
- spatii de depozitare

Apartamentul este foarte luminos (orientare V) si blocul este reabilitat termic.

In zona gasesc gradinite, scoli, piata, magazine, supermarket, restaurante, STB, locuri de joaca pentru copii.

Pentru mai multe informatii sau pentru programarea unei vizionari, nu ezitati sa ne contactati.

An constructie 1989

Suprafata construita 66 mp

Suprafata utila 57 mp

Regim Inaltime P / 4

Etaj P

Nr. camere 2 camere

Nr. bai 1

Nr. balcoane 0 balcoane

Confort 1

Compartimentare Decomandat

Tip constructie In bloc

Status constructie Finalizat

Disponibila incepand cu 2023-11-24

Judet Bucuresti

Oras/ Sector Sector 3

Zona Vitan Mall

Gps lat 44.416750

Gps lng 26.126390

Curent electric

Interfon

Internet prin cablu

Detector de gaze

Cablu TV

Internet prin fibra optica

Geamuri termopan

Repartitoare

Parchet

Apometre

Gresie

Faianta

Gaz

Calorifere

Aer conditionat

Bloc reabiliat termic

Vitan Mall - Apartament 2 camere 57mp

Proprietate vanduta

Ai o proprietate similara? Vinde-o cu noi.
Vinde apartament

Cod: REA1016992

Proprietati similare

Bucuresti, Tineretului

Apartament, 2 camere

50.2 mp 10 1978

94.900 EUR

Detalii

Bucuresti, Dristor

Apartament, 2 camere

45.06 mp 9 1964

98.000 EUR

Detalii

Bucuresti, Unirii, Piata Unirii (s3)

Apartament, 2 camere

59 mp P 1932

105.000 EUR

Detalii

Bucuresti, Ultracentral, Centrul Istoric (s2)

Apartament, 2 camere

31 mp P 1946

89.990 EUR

Detalii

Bucuresti, Iancului

Apartament, 2 camere

54.26 mp 8 1960

105.000 EUR

Detalii

Bucuresti, Ultracentral, Piata Romana

Apartament, 2 camere

47 mp 5 1941

103.000 EUR

Detalii

Bucuresti, Stefan Cel Mare

Apartament, 2 camere

44 mp 1 1966

95.000 EUR

Detalii

Bucuresti, Ultracentral, Piata Romana

Apartament, 2 camere

50 mp 4 1935

93.500 EUR

Detalii
Apartamente 2 camere vandute in Vitan, Bucuresti Apartamente 2 camere de vanzare in Vitan, Bucuresti

Afla primul de cele mai bune oferte
inainte sa ajunga pe piata

Aboneaza-te la newsletter

Aboneaza-te la notificari