Vitan Mall 4 camere 95 mp P 1995

Avem placerea de a va oferi spre vanzare sau inchiriere un apartament de 4 camere situat la parterul unui imobil edificat in anul 1995 in zona Vitan- Mall.

Accesul se poate face direct din strada pe scari special amenajate sau prin interiorul blocului astfel proprietatea este ideala atat pentru locuit cat si pentru spatiu birouri, salon infrumusetare, cabinet stomatologic etc.

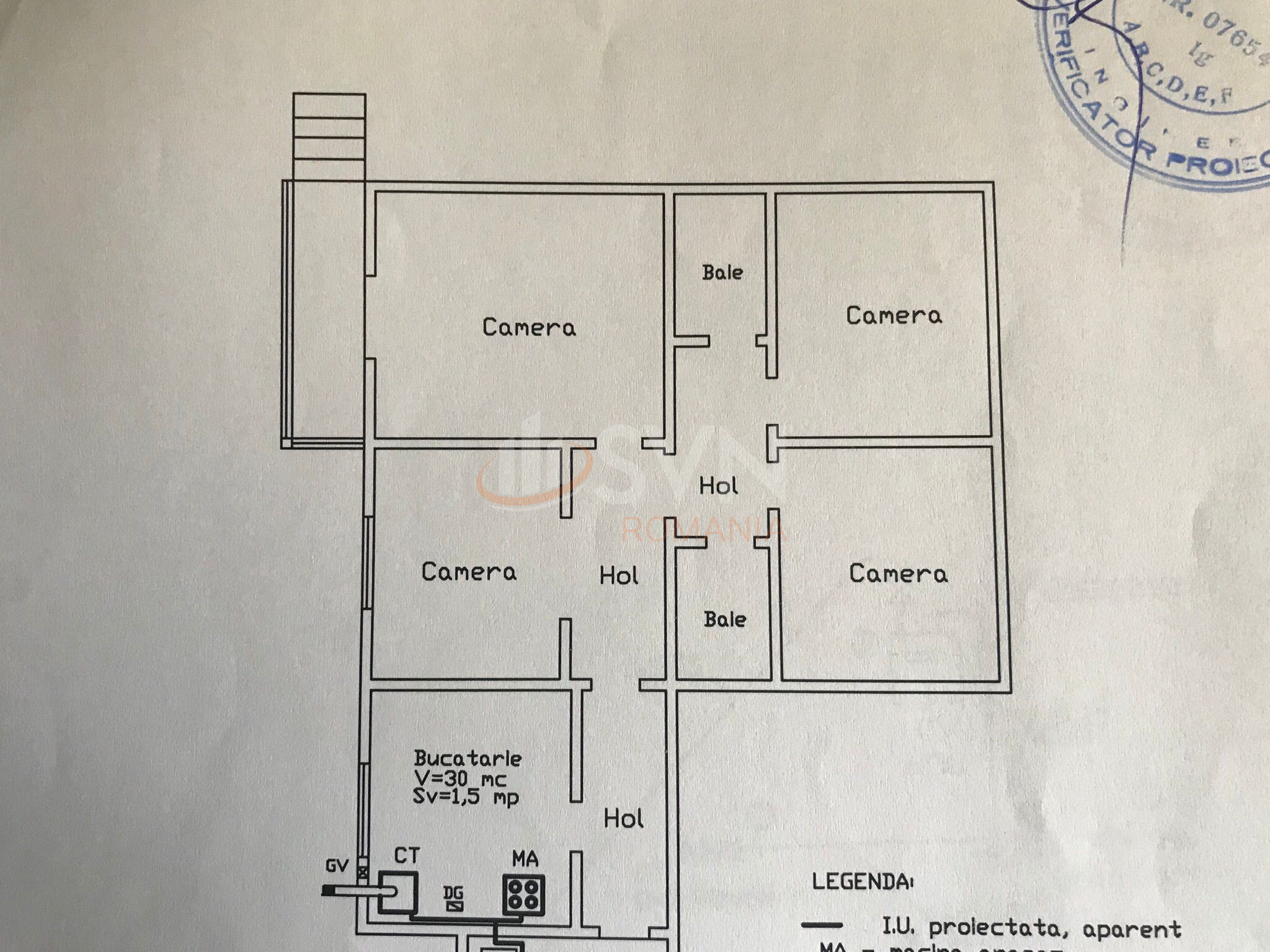
Apartamentul dispune de impartire decomandata si este impartit astfel: living, doua camere, doua bai, 3 holuri, bucatiei inchisa si balcon toate acestea insumand suprafata totala utila de 95 mp.

Beneficiaza de centrala termica proprie si de un aparat de aer conditionat. Instalatia electrica si sanitara au fost refacute iar imobilul din care face parte a fost reabilitat termic.

Amplasamentul este de exceptie , la numai cateva minute de Mall Vitan.

Certificatul energetic va fi disponibil la momentul vanzarii.

Pentru informatii suplimentare va stau la dispozitie.

An constructie 1995

Suprafata construita 108 mp

Suprafata utila 95 mp

Regim Inaltime P / 8

Etaj P

Nr. camere 4 camere

Nr. bai 2

Nr. balcoane 1 balcon

Confort 1

Compartimentare Decomandat

Tip constructie In bloc

Status constructie Finalizat

Disponibila incepand cu 2022-11-21

Judet Bucuresti

Oras/ Sector Sector 3

Zona Vitan Mall

Gps lat 44.418977

Gps lng 26.129788

Internet prin cablu

Cablu TV

Detector de gaze

Curent electric

Geamuri termopan

Repartitoare

Balcon inchis

Parchet

Apometre

Gresie

Faianta

Gaz

Incalzire proprie

WC serviciu

Aer conditionat

Bloc reabiliat termic

Vanzare sau inchiriere 4 camere Vitan-Mall

Proprietate vanduta

Ai o proprietate similara? Vinde-o cu noi.
Vinde apartament

Cod: REA1010475

Proprietati similare

Bucuresti, Sector 3, Unirii

Apartament, 4 camere

89 mp 1 1936

175.000 EUR

Detalii

Bucuresti, Tineretului

Apartament, 4 camere

92 mp 2 1930

175.000 EUR

Detalii

Bucuresti, Sector 1, P-ta Universitatii

Apartament, 4 camere

136 mp 1 1932

190.000 EUR

Detalii

Bucuresti, Ferdinand

Apartament, 4 camere

79 mp 1 1984

186.900 EUR

Detalii

Bucuresti, Sector 1, P-ta Universitatii

Apartament, 4 camere

66 mp 6 1961

184.000 EUR

Detalii

Bucuresti, Stefan Cel Mare

Apartament, 4 camere

81 mp 10 1981

195.000 EUR

Detalii

Bucuresti, Titan

Apartament, 4 camere

101.12 mp 9 2025

177.000 EUR

Detalii

Bucuresti, Titan

Apartament, 4 camere

95 mp 1 2025

175.900 EUR

Detalii
Apartamente 4 camere vandute in Vitan, Bucuresti Apartamente 4 camere de vanzare in Vitan, Bucuresti

Afla primul de cele mai bune oferte
inainte sa ajunga pe piata

Aboneaza-te la newsletter

Aboneaza-te la notificari