Vitan 2 camere 60 mp 2 1989

SVN Romania va propune spre achizitie un apartament semidecomandat cu 2 camere situat in imediata vecinatate de Mall Vitan. Acesta beneficieaza de acces facil pentru foarte multe zone de interes : transport in comun, spatii comerciale ,educationale, financiare etc.

Apartamentul este situat la etajul 2 din 4 al unui bloc construit in anul 1989.

Detine carte funciara, certificat energetic si numar cadastral. Poate fi achizitionat atat in numerar, cat si prin credit ipotecar.

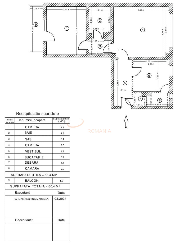
Apartamentul este foarte spatios avand o suprafata de 60 mp2. este o alegere foarte buna pentru o familie. In momentul de fata se lucreaza la cosmetizarea lui, vanzarea facandu-se diferit fata de pozele prezentate.

Pentru mai multe informatii si programari pentru vizionare, contactati-ma si stau la dispozitia dumneavoastra.

An constructie 1989

Suprafata construita 69 mp

Suprafata utila 60 mp

Regim Inaltime 2 / 4

Etaj 2

Nr. camere 2 camere

Nr. bai 1

Nr. balcoane 0 balcoane

Confort 1

Compartimentare Semidecomandat

Tip constructie In bloc

Status constructie Finalizat

Disponibila incepand cu 2024-06-13

Judet Bucuresti

Oras/ Sector Sector 3

Zona Vitan

Gps lat 44.419208

Gps lng 26.125572

Curent electric

Interfon

Geamuri termopan

Balcon inchis

Parchet

Apometre

Gresie

Faianta

Gaz

Calorifere

Aer conditionat

Fara imbunatatiri

Apartament 2 camere Mall Vitan

Proprietate vanduta

Ai o proprietate similara? Vinde-o cu noi.
Vinde apartament

Cod: REA1019547

Proprietati similare

Bucuresti, Sector 1, P-ta Universitatii

Apartament, 2 camere

48 mp 6 1959

105.000 EUR

Detalii

Bucuresti, Vitan

Apartament, 2 camere

61 mp 10 2008

105.000 EUR

Detalii

Bucuresti, Sector 1, P-ta Romana

Apartament, 2 camere

38 mp 3 1962

104.000 EUR

Detalii

Bucuresti, Ultracentral, Sala Palatului

Apartament, 2 camere

33 mp 9 1959

89.000 EUR

Detalii

Bucuresti, Sector 1, P-ta Romana

Apartament, 2 camere

37.49 mp 2 1959

96.000 EUR

Detalii

Bucuresti, Stefan Cel Mare

Apartament, 2 camere

43.17 mp 3 1964

92.000 EUR

Detalii

Bucuresti, Stefan Cel Mare

Apartament, 2 camere

40 mp 4 1960

90.000 EUR

Detalii

Bucuresti, Ultracentral, Calea Victoriei

Apartament, 2 camere

40.94 mp P 1946

90.000 EUR

Detalii
Apartamente 2 camere vandute in Vitan, Bucuresti Apartamente 2 camere de vanzare in Vitan, Bucuresti

Afla primul de cele mai bune oferte
inainte sa ajunga pe piata

Aboneaza-te la newsletter

Aboneaza-te la notificari