Brancoveanu 2 camere 47 mp 6 1964

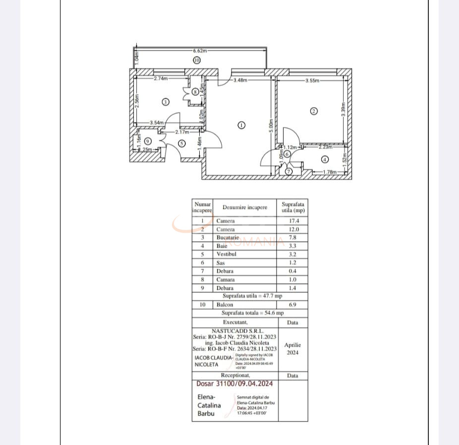
SVN Residentialist va propune spre vanzare un apartament decomandat, cu suprafata utila de 47 mp si totala de 54 mp, compus din 2 camere de locuit, bucatarie, baie, balcon si spatii de depozitare, situat la etajul 6, intr-un bloc cu 8 niveluri, in zona Constantin Brancoveanu.

Imobilul se afla vizavi de Spitalul Clinic de Urgenta pentru Copii Marie Sklodowska Curie” si la 1 km de statia de metrou Brancoveanu, statia de metrou Sudului, piata Sudului, Oraselul Copiilor si foarte aproape de statia STB.

In apropriere se regaseste o retea de transport in comun, unitati comerciale, de invatamant, bancare, de cult si de agrement.

Blocul este construit in anul 1964 cu pereti structurali din beton armat conform proiectului 1960-1964.

Necesita renovare.

Contactati SVN Residentialist pentru mai multe detalii si pentru a programa o vizionare.

An constructie 1964

Suprafata construita 54 mp

Suprafata utila 47 mp

Suprafata terasa 7 mp

Regim Inaltime 6 / 8

Etaj 6

Nr. camere 2 camere

Nr. bai 1

Nr. balcoane 1 balcon

Confort 1

Compartimentare Decomandat

Tip constructie In bloc

Status constructie Finalizat

Disponibila incepand cu 2025-04-08

Judet Bucuresti

Oras/ Sector Sector 4

Zona Brancoveanu

Gps lat 44.393000

Gps lng 26.109850

Interfon

Cablu TV

Curent electric

Repartitoare

Parchet

Apometre

Gresie

Faianta

Gaz

Calorifere

Lift

Internet Wireless

Internet prin Dial-Up

Internet prin cablu

Detector de gaze

Internet prin fibra optica

Telefon

Fara imbunatatiri

Apartament 2 camere Berceni Brancoveanu de Vanzare

Proprietate vanduta

Ai o proprietate similara? Vinde-o cu noi.
Vinde apartament

Cod: REA1021536

Proprietati similare

Bucuresti, Ferdinand, Foisorul De Foc

Apartament, 2 camere

44 mp 1 2015

76.000 EUR

Detalii

Bucuresti, Ferdinand

Apartament, 2 camere

45.84 mp 4 1961

85.800 EUR

Detalii

Bucuresti, Ultracentral, Calea Plevnei

Apartament, 2 camere

80 mp 1 1930

84.999 EUR

Detalii

Bucuresti, Stefan Cel Mare

Apartament, 2 camere

44.6 mp 1 1968

85.500 EUR

Detalii

Bucuresti, Stefan Cel Mare

Apartament, 2 camere

52 mp 7 1961

85.000 EUR

Detalii

Bucuresti, Drumul Taberei

Apartament, 2 camere

45 mp 4 1974

80.000 EUR

Detalii

Bucuresti, Colentina, Fundeni

Apartament, 2 camere

40 mp 5 1974

78.000 EUR

Detalii
Exclusiv Discount

Bucuresti, Colentina

Apartament, 2 camere

50 mp 8 1978

84.900 EUR

Detalii
Apartamente 2 camere vandute in Berceni, Bucuresti Apartamente 2 camere de vanzare in Berceni, Bucuresti

Afla primul de cele mai bune oferte
inainte sa ajunga pe piata

Aboneaza-te la newsletter

Aboneaza-te la notificari