Parcul Carol 4 camere 110.21 mp 12 2022

SVN Romania are placerea de a va prezenta un proiect rezidential care indeplineste toate cerintele unui lifestyle urban de calitate.

Locatia complexului este una excelenta in proximitatea centrelor comerciale (Mall Liberty Center), aproape de parcuri si institutii educationale.

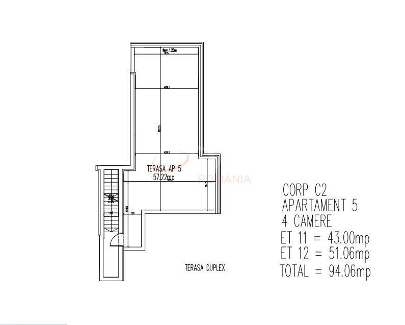
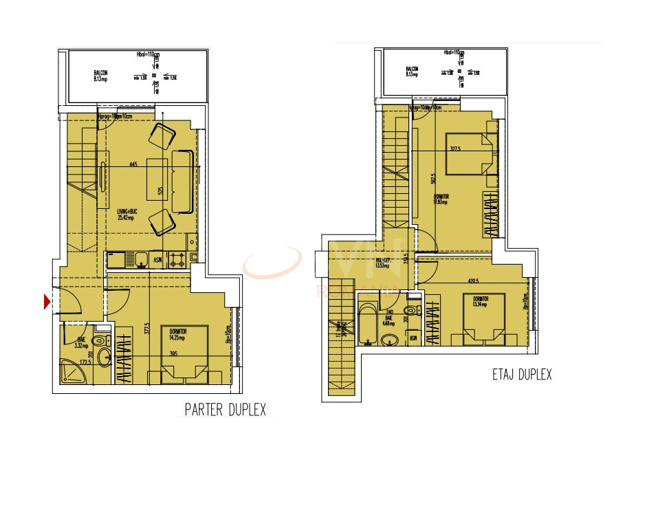
Duplex-ul de 4 camere dispune de o compartimentare decomandata, fiind compus din:
-etaj 11 : hol, living, bucatarie open-space, 1 dormitor, 1 baie, 1 balcon de 8,13mp ;
-etaj 12 : 1 hol, 2 dormitoare, 1 baie, 1 balcon de 8,13mp ;
- o terasa de 57,222mp deasupra;
toate acestea avand suprafata totala de 92.38 mp + 2 balcoane de 16,26mp + 1 terasa de 57.22 mp.

Dotari:
- fatada ventilata-termosistem vata minerala bazaltica rockwool
- Tamplaria este PVC cu o suprafata vitrata mare
- Videointerfon, paza si sistem supraveghere video, ce asigura protectia localnicilor ansamblului;
- Centrala termica in condesatie
- Incalzire in pardoseala
- Racorduri individuale la gaze, curent electric, canalizare si apa curenta la retelele publice;
- Gresie si faianta portelanata;
- Parchet si obiecte sanitare la alegere;
- Usi BELLA CASA

Pozele pot avea caracter informativ.

Exista posibilitatea achizitionarii unui loc de parcare subteran contra cost.

Momentan nu detinem informatii in legatura cu certificatul energetic.

PRETURILE SUNT PLUS TVA.


Pentru mai multe informatii si vizionari, contactati-ne.

An constructie 2022

Suprafata construita 165.6 mp

Suprafata utila 110.21 mp

Suprafata terasa 57.22

Regim Inaltime 12 / 12

Etaj 12

Nr. camere 4 camere

Nr. bai 2

Nr. balcoane 2 balcoane

Confort 1

Compartimentare Decomandat

Tip constructie In bloc

Status constructie Nefinalizat

Disponibila incepand cu 2024-03-15

Judet Bucuresti

Oras/ Sector Sector 4

Zona Parcul Carol

Gps lat 44.412897

Gps lng 26.087035

Complex rezidential Metropolitan Viilor

Nr. terase 1

Interfon

Curent electric

Internet prin fibra optica

Cablu TV

Geamuri termopan

Parchet

Apometre

Gresie

Telefon

Faianta

Gaz

Incalzire proprie

Lift

Duplex 4 camere terasa 57mp Parc Carol

Proprietate vanduta

Ai o proprietate similara? Vinde-o cu noi.
Vinde apartament

Cod: REA1009857

Proprietati similare

Bucuresti, Sector 1, P-ta Universitatii

Apartament, 4 camere

136 mp 1 1932

190.000 EUR

Detalii

Bucuresti, Sector 1, P-ta Universitatii

Apartament, 4 camere

66 mp 6 1961

184.000 EUR

Detalii

Bucuresti, Colentina, Obor

Apartament, 4 camere

84.84 mp 8 1979

212.500 EUR

Detalii

Bucuresti, Ferdinand

Apartament, 4 camere

79 mp 1 1984

186.900 EUR

Detalii

Bucuresti, Stefan Cel Mare

Apartament, 4 camere

81 mp 10 1981

195.000 EUR

Detalii

Bucuresti, 1 Mai, Banu Manta

Apartament, 4 camere

120 mp 2 1940

210.000 EUR

Detalii

Bucuresti, Tei, Lacul Tei

Apartament, 4 camere

82.42 mp 2 1981

205.000 EUR

Detalii

Bucuresti, Aviatiei

Apartament, 4 camere

81.1 mp 2 2026

210.230 EUR

Detalii
Apartamente 4 camere vandute in Parcul Carol, Bucuresti Apartamente 4 camere de vanzare in Parcul Carol, Bucuresti

Afla primul de cele mai bune oferte
inainte sa ajunga pe piata

Aboneaza-te la newsletter

Aboneaza-te la notificari