Tineretului 1 camera 41 mp 3 2012

SVN Residentialist va prezinta acest studio spatios disponibil pentru vanzare.

Cu o amplasare in imediata vecinatate a parcului si a statiei de metrou Tineretului, la doar cateva minute de mers pe jos, acest studio ofera oportunitatea de a trai intr-o zona convenabila si plina de facilitati. Iata cateva dintre caracteristicile sale:

Amplasare Ideala: Situat in imediata vecinatate a parcului si a statiei de metrou, oferind acces rapid la mijloacele de transport si zonele de recreere.

Suprafata Generoasa: Studio-ul dispune de o suprafata generoasa, asigurand un spatiu comod si bine organizat.

Spatii de Depozitare: Proiectat cu atentie la detalii, studio-ul include spatii de depozitare pentru a asigura ordinea si functionalitatea.

Facilitati in Zona: Beneficiaza de facilitatile oferite de zona inconjuratoare, inclusiv institutii de invatamant, parcuri, restaurante, terenuri de sport, bazin de inot, complexe comerciale, magazine si banci.

Centrala Proprie: Dotat cu centrala proprie pentru un control optim al temperaturii.

Bucatarie Spatioasa: Bucataria mare este mobilata si utilata, inclusiv cu loc de luat masa.

Dressing in Hol: Dispune de un dressing in hol pentru organizarea eficienta a hainelor.

Aer Conditionat: Dotat cu sistem de aer conditionat pentru confortul termic.

Lift Exterior
Incalzire Pardoseala

Investitie Avantajoasa: Poate fi inchiriat cu usurinta la un pret estimat intre 450 si 500 de euro lunar, reprezentand o investitie avantajoasa.

Acte la Zi: Toate actele sunt la zi, asigurand o tranzactie sigura si fara probleme.

Posibilitate de Recompartimentare: Se poate recompartimenta usor in doua camere pentru a satisface nevoile individuale.

Acest studio reprezinta o oportunitate excelenta pentru cei care cauta un spatiu confortabil intr-o zona centrala si bine conectata. Pentru mai multe informatii si pentru a programa o vizionare, va rugam sa ne contactati. Suntem aici pentru a va ajuta sa gasiti locuinta perfecta.

Disponibil imediat!

An constructie 2012

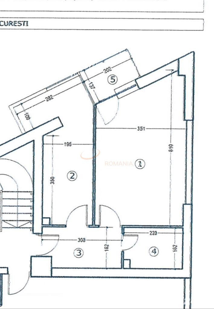
Suprafata construita 48 mp

Suprafata utila 41 mp

Suprafata terasa 3 mp

Regim Inaltime 3 / 10

Etaj 3

Nr. camere 1 camera

Nr. bai 1

Nr. balcoane 1 balcon

Confort 1

Compartimentare Decomandat

Tip constructie In bloc

Status constructie Finalizat

Disponibila incepand cu 2024-02-06

Judet Bucuresti

Oras/ Sector Sector 4

Zona Tineretului

Gps lat 44.399570

Gps lng 26.119454

Supraveghere video

Internet Wireless

Curent electric

Interfon

Cablu TV

Geamuri termopan

Repartitoare

Balcon inchis

Parchet

Apometre

Boxa

Gresie

Telefon

Faianta

Gaz

Incalzire proprie

Incalzire prin pardoseala

Calorifere

Mobilat

Aer conditionat

Bucatarie mobilata

Bloc reabiliat termic

Lift

Studio Modern Tineretului

Proprietate vanduta

Ai o proprietate similara? Vinde-o cu noi.
Vinde apartament

Cod: REA1017246

Proprietati similare

Bucuresti, Rahova, Viilor

Garsoniera

44 mp P 2020

89.500 EUR

Detalii

Bucuresti, Rahova, Viilor

Garsoniera

43 mp P 2020

87.700 EUR

Detalii

Bucuresti, Berceni, Metalurgiei

1 camera cu loc parcare exterior inclus

30 mp 5 2014

85.000 EUR

Detalii

Bucuresti, Sector 3, P-ta Unirii

Garsoniera

36.62 mp 2 1976

100.000 EUR

Detalii

Bucuresti, Sector 1, P-ta Universitatii

Garsoniera

26 mp 4 1936

85.000 EUR

Detalii

Bucuresti, Sector 1, P-ta Romana

Garsoniera

21.5 mp 1 1962

95.000 EUR

Detalii

Bucuresti, Ultracentral, Cismigiu

Garsoniera

29 mp 3 1945

93.000 EUR

Detalii

Bucuresti, Mosilor

Garsoniera

26.7 mp 2 2026

97.743 EUR

Detalii
Apartamente 1 camera vandute in Tineretului, Bucuresti Apartamente 1 camera de vanzare in Tineretului, Bucuresti

Afla primul de cele mai bune oferte
inainte sa ajunga pe piata

Aboneaza-te la newsletter

Aboneaza-te la notificari