Tineretului 6 camere 300 mp 17 2008

SVN Romania va propune spre vanzare un penthouse situat in complexul rezidential Asmita Gardens.

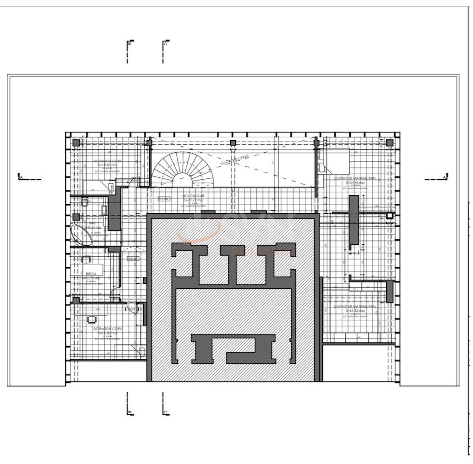
Apartamentul este format din 6 camere, este situat la etajele 17+18 si are o suprafata utila de 300 mp, la care se adauga o terasa de 200 mp.

Proprietatea este organizata pe doua niveluri, astfel:
- primul nivel: living cu zona de dining, bucatarie deschisa , birou, sauna, baie, terasa 200 mp.
- al doilea nivel: master bedroom (cu dressing si baie), 3 dormitoare, birou, baie, hol.

Apartamentul se vinde fara finisaje la stadiul de gri astfel incat viitorul proprietar sa aiba posibilitatea sa isi personalizeze interiorul.

Proiectul de design interior are certificat de urbanism si plan de situatie.

Nu detinem informatii despre clasa energica a imobilului.

Pentru mai multe detalii si vizionari va rog sa ma contactati.

An constructie 2008

Suprafata construita 500 mp

Suprafata utila 300 mp

Suprafata terasa 200

Regim Inaltime 17 / 17

Etaj 17

Nr. camere 6 camere

Nr. bai 3

Nr. balcoane 1 balcon

Confort 1

Compartimentare Semidecomandat

Tip constructie In bloc

Status constructie Finalizat

Disponibila incepand cu 2024-06-06

Judet Bucuresti

Oras/ Sector Sector 4

Zona Tineretului

Gps lat 44.407704

Gps lng 26.124254

Nr. terase 1

Curent electric

Interfon

Geamuri termopan

Parchet

Gresie

Gaz

Incalzire proprie

Incalzire prin pardoseala

WC serviciu

Aer conditionat

Lift

Penthouse 300 mp ASMITA GARDENS cu terasa panoramica

Proprietate vanduta

Ai o proprietate similara? Vinde-o cu noi.
Vinde apartament

Cod: REA1018399

Proprietati similare

Bucuresti, Baneasa, Sisesti

6 camere cu loc parcare exterior inclus

200.55 mp 3 2008

549.000 EUR

Detalii
Apartamente 6 camere vandute in Tineretului, Bucuresti Apartamente 6 camere de vanzare in Tineretului, Bucuresti

Afla primul de cele mai bune oferte
inainte sa ajunga pe piata

Aboneaza-te la newsletter

Aboneaza-te la notificari