Unirii (s4) 5 camere 101 mp 1 1994

SVN Romania va propune spre vanzare un apartament cu 5 camere situat pe Bulevardul Unirii, intre Casa Poporului si magazinul Unirea.

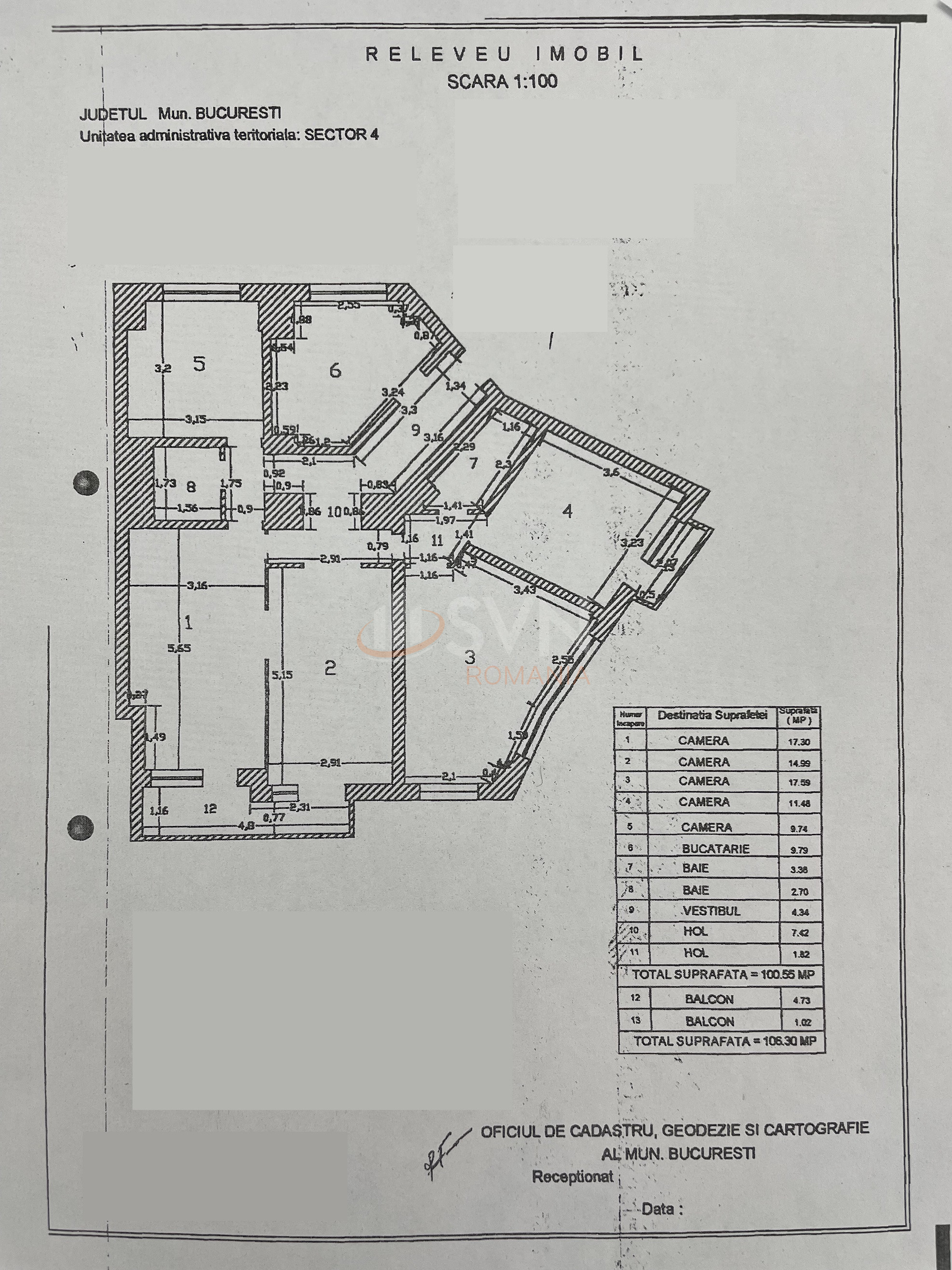
Apartamentul este situat la etajul 1, este decomandat, are o suprafata utila de 101 mp, la care se adauga suprafata celor doua balcoane (6mp).

Proprietatea este recent renovata, cu materiale de foarte buna calitate: gresie, faianta, marmura, parchet, tamplarie de termopan, aer conditionat.

Apartamentul are vederea spre bulevardul Unirii si spre spatele blocului.

Pentru mai multe informatii sau pentru stabilirea unei vizionari, nu ezitati sa ne contactati.

An constructie 1994

Suprafata construita 120 mp

Suprafata utila 101 mp

Suprafata terasa 6 mp

Regim Inaltime 1 / 7

Etaj 1

Nr. camere 5 camere

Nr. bai 2

Nr. balcoane 2 balcoane

Confort Lux

Compartimentare Decomandat

Tip constructie In bloc

Status constructie Finalizat

Disponibila incepand cu 2025-11-20

Judet Bucuresti

Oras/ Sector Sector 4

Zona Unirii (s4)

Gps lat 44.426653

Gps lng 26.097191

Internet prin cablu

Interfon

Supraveghere 24/7

Cablu TV

Internet prin fibra optica

Curent electric

Internet Wireless

Supraveghere video

Geamuri termopan

Repartitoare

Balcon inchis

Parchet

Apometre

Gresie

Telefon

Faianta

Gaz

WC serviciu

Aer conditionat

Bucatarie mobilata

Lift

Valoare proprietate (€)

Perioada (ani)

Procent avans (69.750 €)


Suma creditata 395.250

Dobanda 4.9%

Rata lunara 9.772 lei

Broker Imobiliar

Andrei Haiduc , Consultant imobiliar Vezi toate proprietatile

0317100200

Unirii Fantani - apartament cu 5 camere

Pret vanzare
465.000 €

Telefon Consultant imobiliar
0317100200

Cod: REA1010266

Proprietati similare

Bucuresti, Unirii, Unirii (s3)

Apartament, 5 camere

130 mp 5 1988

475.000 EUR

Detalii

Bucuresti, Unirii, Nerva Traian

Apartament, 5 camere

122 mp 11 2021

469.900 EUR

Detalii

Bucuresti, Ultracentral, Piata Victoriei

Apartament, 5 camere

240 mp 1 1920

499.000 EUR

Detalii

Bucuresti, Dorobanti

Apartament, 5 camere

180 mp 2 1934

495.000 EUR

Detalii

Bucuresti, Stefan Cel Mare

Apartament, 5 camere

135 mp P 2008

429.000 EUR

Detalii

Bucuresti, Floreasca

Apartament, 5 camere

168 mp 2 1948

430.000 EUR

Detalii
Apartamente 5 camere vandute in Unirii, Bucuresti Apartamente 5 camere de vanzare in Unirii, Bucuresti

Afla primul de cele mai bune oferte
inainte sa ajunga pe piata

Aboneaza-te la newsletter

Aboneaza-te la notificari