Vacaresti 4 camere 85 mp 8 2021

SVN Romania va propune spre vanzare un apartament deosebit de 4 camere amplasat intr-o zona semicentrala a Bucurestiului, zona Mihai Bravu-Tineretului , in noul complex Delta City.

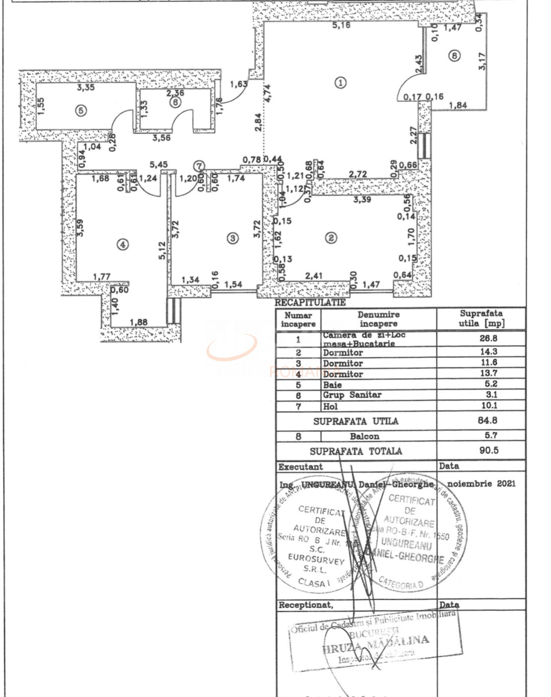
Apartamentul este situat la etajul 8 din 10 al imobilului si dispune de o compartimentare semidecomandata, fiind compus din: hol, living + bucatarie open space , 3 dormitoare, 2 bai, toate acestea insumand suprafata totala de 85 mp , la care se adauga o terasa cu suprafata de 5,7 mp.


Apartamentul este finisat si dotat cu: usa de intrare PINUM, gresie si faianta Porcelanosa, obiecte sanitare Daniel Rubinetterie, aer Conditionat 4 unitati, parchet Balterio.

Toate camerele apartamentului ofera un view superb asupra Deltei Vacaresti.

In vecinatate regasim la doar 8 minute de mers pe jos statia de metrou Mihai Bravu si alte mijloace de transport in comun. Puncte de interes in apropiere: magazine, restaurante, farmacii, gradinite, scoli, parcuri.

Separat , se poate achizitiona loc de parcare subteran dublu in sistem Klaus.

Certificatul energetic va fi disponibil la vanzare.

Pentru mai multe detalii si vizionari va stau la dispozitie.

An constructie 2021

Suprafata construita 95 mp

Suprafata utila 85 mp

Suprafata terasa 5.7 mp

Regim Inaltime 8 / 10

Etaj 8

Nr. camere 4 camere

Nr. bai 1

Nr. balcoane 0 balcoane

Confort 1

Compartimentare Semidecomandat

Tip constructie In bloc

Status constructie Finalizat

Disponibila incepand cu 2024-01-19

Judet Bucuresti

Oras/ Sector Sector 4

Zona Vacaresti

Gps lat 44.404116

Gps lng 26.122031

Nr. terase 1

Supraveghere 24/7

Internet Wireless

Detector de gaze

Cablu TV

Interfon

Supraveghere video

Curent electric

Geamuri termopan

Repartitoare

Parchet

Apometre

Gresie

Loc parcare subteran

Faianta

Gaz

Calorifere

WC serviciu

Lift

Apartament 4 camere Delta City Vacaresti

Proprietate vanduta

Ai o proprietate similara? Vinde-o cu noi.
Vinde apartament

Cod: REA1016981

Proprietati similare

Bucuresti, Sector 1, P-ta Universitatii

Apartament, 4 camere

136 mp 1 1932

190.000 EUR

Detalii

Bucuresti, Sector 1, P-ta Universitatii

Apartament, 4 camere

66 mp 6 1961

184.000 EUR

Detalii

Bucuresti, Ferdinand

Apartament, 4 camere

79 mp 1 1984

186.900 EUR

Detalii

Bucuresti, Colentina, Obor

Apartament, 4 camere

84.84 mp 8 1979

212.500 EUR

Detalii

Bucuresti, Stefan Cel Mare

Apartament, 4 camere

81 mp 10 1981

195.000 EUR

Detalii

Bucuresti, Titan, Theodor Pallady

Apartament, 4 camere

78.61 mp 7 2015

190.000 EUR

Detalii

Bucuresti, Tei, Lacul Tei

Apartament, 4 camere

82.42 mp 2 1981

205.000 EUR

Detalii

Bucuresti, 1 Mai, Banu Manta

Apartament, 4 camere

120 mp 2 1940

210.000 EUR

Detalii
Apartamente 4 camere vandute in Tineretului, Bucuresti Apartamente 4 camere de vanzare in Tineretului, Bucuresti

Afla primul de cele mai bune oferte
inainte sa ajunga pe piata

Aboneaza-te la newsletter

Aboneaza-te la notificari