13 Septembrie 5 camere 144.4 mp M 2022

SVN va propune spre vanzare un apartament in Catedral Residence.

Cu o suprafata utila de 73.80 mp utili , acest apartament ofera spatiu suficient pentru a va bucura de confortul unei locuinte cu 2 camere.

Apartamentul este compartimentat astfel:


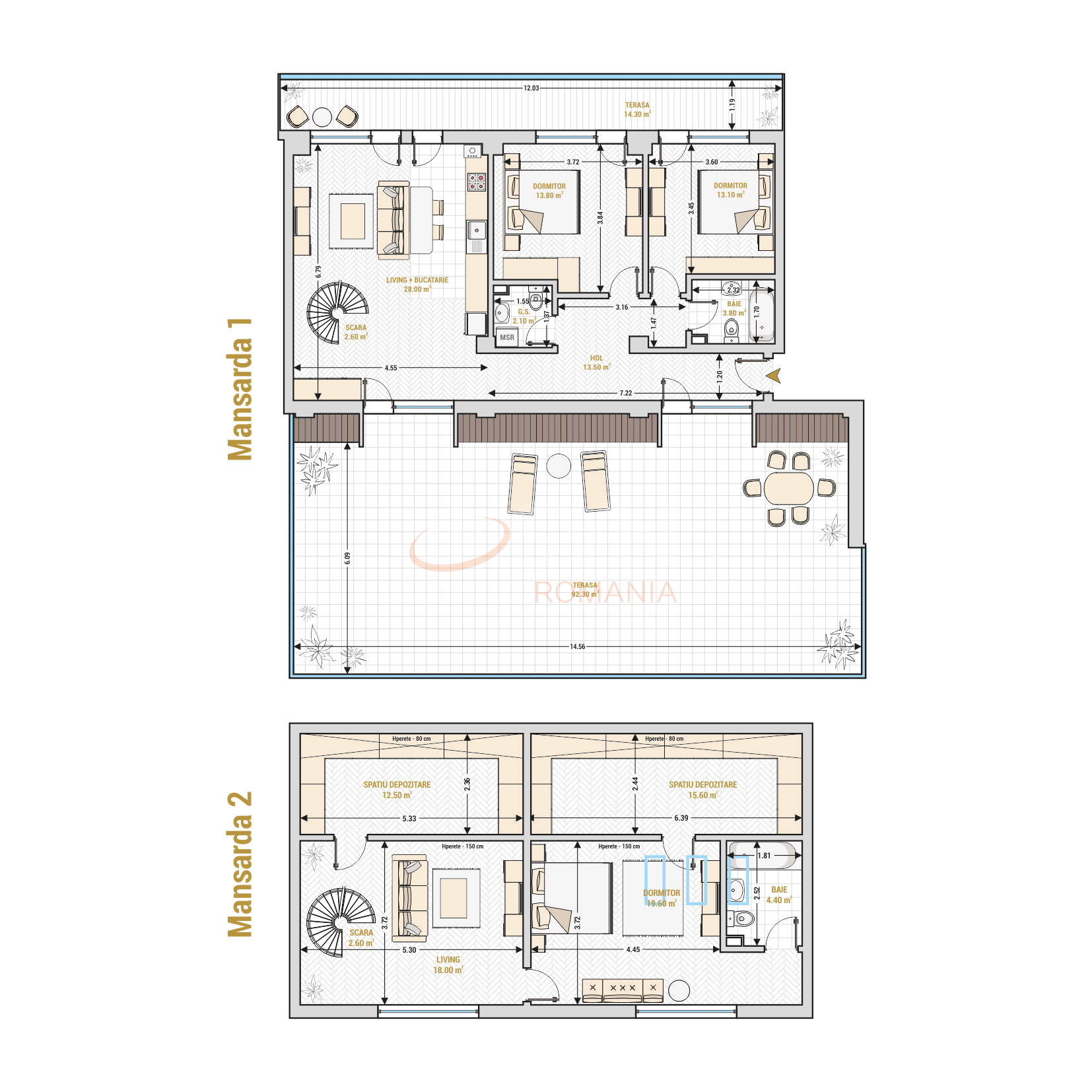
MANSARDA 1
Living + Bucatarie 28.00 m²
Dormitor 13.80 m
Dormitor 13.10 m
Baie 3.80 m
Grup sanitar 2.10 m
Hol 13.50 m
Scara 2.60 m
Terasa 92.30 m
Terasa 14.30 m

MANSARDA 2
Living 18.00 m
Dormitor 19.60 m
Baie 4.40 m
Scara 2.60 m
Spatiu depozitare 28.10 m

Suprafata utila 144.40 m
Su + Scari + Terase 256.20 m

Apartamentul se vinde complet mobilat si utilat.Apartamentele vin dotate cu finisaje de calitate superioara Ferestre Salamander Bluevolution 82 gri graphite,usi pinum,parchet egger PRO,placi ceramice Marazzi,centrala vaillant,incalzire prin pardoseala, video interfon smart.
Exista posibilitatea achizionarii unui loc de parcare de la dezvoltator.
Apartamentul detine certificat de clasificare de la Ministerul Turismulu pentru inchiriere in sistem hotelier, ideal atat pentru investitie cat si locuinta personala.

An constructie 2022

Suprafata construita 256.2 mp

Suprafata utila 144.4 mp

Suprafata terasa 92.3

Regim Inaltime M / 3

Etaj M

Nr. camere 5 camere

Nr. bai 1

Nr. balcoane 0 balcoane

Confort 1

Compartimentare Semidecomandat

Tip constructie In bloc

Status constructie Finalizat

Disponibila incepand cu 2025-01-20

Judet Bucuresti

Oras/ Sector Sector 5

Zona 13 Septembrie

Gps lat 44.420934

Gps lng 26.080145

Nr. terase 2

Cablu TV

Interfon

Internet Wireless

Curent electric

Geamuri termopan

Parchet

Gresie

Faianta

Gaz

Incalzire proprie

Incalzire prin pardoseala

Mobilat

Aer conditionat

Bucatarie mobilata

Lift

Duplex 5 camere Marriot

Proprietate vanduta

Ai o proprietate similara? Vinde-o cu noi.
Vinde apartament

Cod: REA1021782

Proprietati similare

Bucuresti, Sector 3, P-ta Unirii

Apartament, 5 camere

108 mp 5 1989

380.000 EUR

Detalii

Bucuresti, Dorobanti

Apartament, 5 camere

170 mp 2 1934

445.000 EUR

Detalii

Bucuresti, Dorobanti

Apartament, 5 camere

129 mp 2 2010

450.000 EUR

Detalii

Bucuresti, Floreasca

Apartament, 5 camere

168 mp 2 1948

430.000 EUR

Detalii

Bucuresti, Pipera

Apartament, 5 camere

165.35 mp 2 2027

413.375 EUR

Detalii

Bucuresti, Pipera

Apartament, 5 camere

165.35 mp 3 2026

413.375 EUR

Detalii

Bucuresti, Baneasa, Sisesti

Apartament, 5 camere

179 mp 5 2020

389.900 EUR

Detalii
Apartamente 5 camere vandute in 13 Septembrie, Bucuresti Apartamente 5 camere de vanzare in 13 Septembrie, Bucuresti

Afla primul de cele mai bune oferte
inainte sa ajunga pe piata

Aboneaza-te la newsletter

Aboneaza-te la notificari