Viilor 4 camere 108.01 mp 11 2022

SVN Romania are placerea de a va prezenta proiectul rezidential care indeplineste toate cerintele unui lifestyle urban de calitate.

Locatia complexului este una excelenta in proximitatea centrelor comerciale (Mall Liberty Center), aproape de parcuri, institutii educationale.

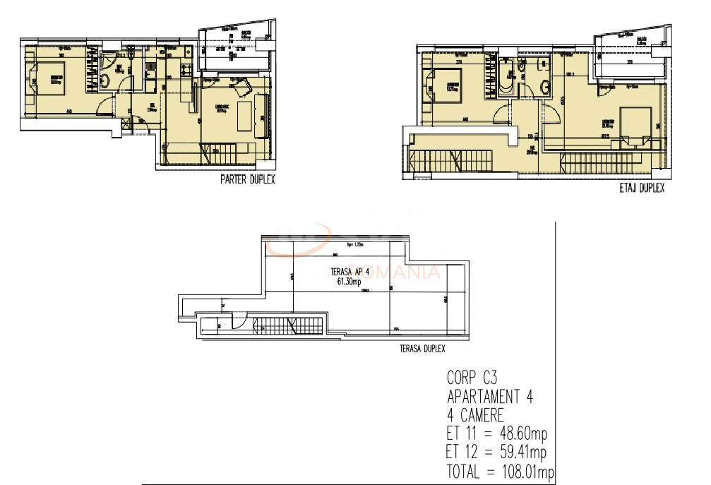
Apartamentul prezentat dispune de o compartimentare semidecomandata, fiind compus din: hol, living, bucatarie open space , 3 dormitoare, 2 bai, toate acestea avand suprafata totala de 108 mp + 1 terasa si 2 balcoane de 75.02 mp.

Dotari:

- fatada ventilata-termosistem vata minerala bazaltica rockwool
- Tamplaria este PVC cu o suprafata vitrata mare
- Videointerfon, paza si sistem supraveghere video, ce asigura protectia localnicilor ansamblului;
- Centrala termica in condesatie
- Incalzire in pardoseala
- Racorduri individuale la gaze, curent electric, canalizare si apa curenta la retelele publice;
- Gresie si faianta portelanata;
- Parchet si obiecte sanitare la alegere;
- Usi BELLA CASA

Pozele pot avea caracter informativ.

Exista posibilitatea achizitionarii unui loc de parcare subteran contra cost.

Momentan nu detinem informatii in legatura cu certificatul energetic.

PRETURILE SUNT PLUS TVA.

Pentru mai multe informatii si vizionari, contactati-ne.

An constructie 2022

Suprafata construita 115 mp

Suprafata utila 108.01 mp

Suprafata terasa 75.02

Regim Inaltime 11 / 12

Etaj 11

Nr. camere 4 camere

Nr. bai 2

Nr. balcoane 0 balcoane

Confort 1

Tip constructie In bloc

Status constructie Nefinalizat

Disponibila incepand cu 2022-09-01

Judet Bucuresti

Oras/ Sector Sector 5

Zona Viilor

Gps lat 44.413619

Gps lng 26.086418

Complex rezidential Complex Rezidential Viilor

Nr. terase 1

Interfon

Internet prin cablu

Cablu TV

Internet prin fibra optica

Curent electric

Geamuri termopan

Parchet

Gresie

Faianta

Gaz

Incalzire proprie

Lift

Apartament 4 camere Duplex Parc Carol Viilor

Proprietate vanduta

Ai o proprietate similara? Vinde-o cu noi.
Vinde apartament

Cod: REA1009853

Proprietati similare

Bucuresti, Ultracentral, Cismigiu

Apartament, 4 camere

84 mp P 1941

214.999 EUR

Detalii

Bucuresti, Berceni

Apartament, 4 camere

132 mp 11 2023

237.500 EUR

Detalii

Bucuresti, Ultracentral, Piata Victoriei

Apartament, 4 camere

95 mp 8 1981

229.000 EUR

Detalii

Bucuresti, Ultracentral, Basarab

Apartament, 4 camere

76 mp 1 1938

220.000 EUR

Detalii

Bucuresti, 1 Mai, Banu Manta

Apartament, 4 camere

120 mp 2 1940

210.000 EUR

Detalii

Bucuresti, Unirii, Splaiul Unirii (s3)

Apartament, 4 camere

136.9 mp 11 2026

238.891 EUR

Detalii

Bucuresti, Floreasca

Apartament, 4 camere

80.29 mp 10 1962

210.000 EUR

Detalii

Bucuresti, Titan

Apartament, 4 camere

76 mp 9 2020

210.000 EUR

Detalii
Apartamente 4 camere vandute in Rahova, Bucuresti Apartamente 4 camere de vanzare in Rahova, Bucuresti

Afla primul de cele mai bune oferte
inainte sa ajunga pe piata

Aboneaza-te la newsletter

Aboneaza-te la notificari