Giulesti 2 camere 44.88 mp 1 2023

PProiectul nostru este adresat persoanelor care isi doresc confort la un pret decent, liniste si in acelasi timp acces rapid catre mijloace de transport, magazine, parc sau unitati de invatamant.
Iata de ce intrunim toate aceste aspecte:
1. Pretul este similar cu cel al unui apartament construit in anii 80 in cartierul Crangasi. Mentionam ca apartamentele noastre se predau la cheie pe cand achizitia unui apartament vechi poate genera costuri suplimentare de amenajare de aproximativ 10.000 euro.
2. Fiecare apartament va fi personalizat pentru fiecare cumparator in parte.
3. Din punct de vedere tehnic, va enumeram cateva detalii:
- centrala termica proprie, geamuri termopan Salamander cu 5 camere si inchidere multipunct, instalatie electrica cupru, prize si intrerupatoare, instalatie sanitara PPR, baie complet utilata.
Structura este din beton iar compartimentarea din caramida porotherm. Izolatia este realizata cu polistiren de 10 cm.
4. Pozitie excelenta, beneficiem de mijloace transport public in apropiere, suntem la 100 metri de statia STB.
Pietonal, la o distanta de 5 minute regasim Lacul Morii
Acces auto facil, pana in zona Grozavesti se fac aproximativ 15 minute iar in Piata Victoriei se ajunge in 20 minute.
5. Dezvoltatorul construieste de peste 5 ani in de nordul si vestul Capitalei. Pana la ora actuala dezvoltatorul are peste 300 de apartamente livrate.

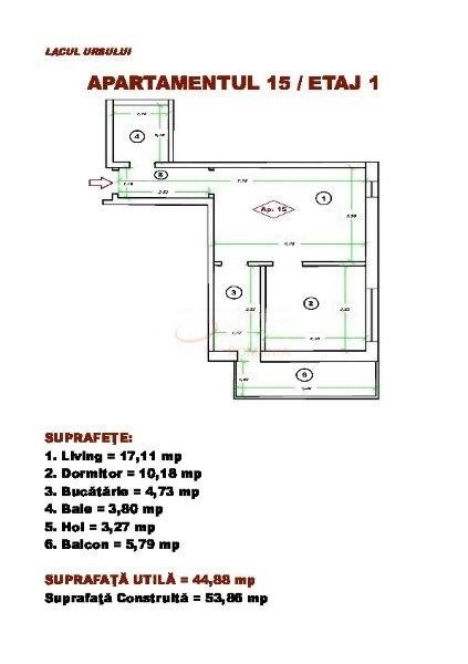
Planul apartamentului este atasat in albumul foto al anuntului. Tot aici regasiti fotografii cu fatada blocului, imprejurimi precum si randari (proiectare 3D) ale spatiilor interioare.

Blocul este realizat in conformitate cu toate normele legale in vigoare, detinem toate avizele de constructie, punem la dispozitia cumparatorilor Caietul Tehnic in care sunt trecute toate etapele constructive precum si datele tehnice ale materialelor folosite.
Certificatul Energetic nu a fost emis la data publicarii acestui anunt.

Pentru confortul dumneavoastra, vizionarile se fac doar cu programare!
Va rugam sa ne sunati la numarul de telefon afisat in anunt.

Va asteptam in Casa Noua!

An constructie 2023

Suprafata construita 53.86 mp

Suprafata utila 44.88 mp

Regim Inaltime 1 / 4

Etaj 1

Nr. camere 2 camere

Nr. bai 1

Nr. balcoane 1 balcon

Confort 1

Compartimentare Semidecomandat

Tip constructie In bloc

Status constructie Nefinalizat

Disponibila incepand cu 2023-06-07

Judet Bucuresti

Oras/ Sector Sector 6

Zona Giulesti

Gps lat 44.466936

Gps lng 26.029987

Complex rezidential LACUL URSULUI RESIDENCE

Cablu TV

Internet prin cablu

Internet Wireless

Detector de gaze

Curent electric

Internet prin fibra optica

Interfon

Acoperis mansardat

Geamuri termopan

Parchet

Apometre

Gresie

Telefon

Loc parcare subteran

Faianta

Gaz

Loc parcare exterior

Incalzire proprie

2 Camere - Lacul Morii

Proprietate vanduta

Ai o proprietate similara? Vinde-o cu noi.
Vinde apartament

Cod: REA1012925

Proprietati similare

Bucuresti, Militari

Apartament, 2 camere

37.07 mp 2 2010

68.900 EUR

Detalii

Bucuresti, Rahova, Ferentari

Apartament, 2 camere

43 mp 2 1950

59.000 EUR

Detalii

Bucuresti, Berceni, Brancoveanu

Apartament, 2 camere

38 mp 8 1976

69.000 EUR

Detalii

Bucuresti, Titan, 1 Decembrie 1918

Apartament, 2 camere

45 mp D 2012

66.000 EUR

Detalii
Apartamente 2 camere vandute in Giulesti, Bucuresti Apartamente 2 camere de vanzare in Giulesti, Bucuresti

Afla primul de cele mai bune oferte
inainte sa ajunga pe piata

Aboneaza-te la newsletter

Aboneaza-te la notificari