Lujerului 2 camere 57.47 mp 9 1979

SVN Romania propune spre vanzare un apartament decomandat, spatios, aflandu-se la numai 3 minute de metroul Lujerului.

Acesta se afla la etajul 9 din 10 (penultimul etaj), intr-un bloc construit in anul 1979 fara risc seismic.

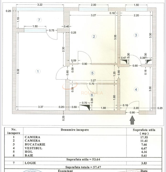
Apartamentul are o suprafata de 57,47mp(releveul in ultima poza), se vinde mobilat si utilat precum in poze, nu necesita investitii. In pretul apartamentului este inclusa si loc de parcare platit ADP si o boxa la subsolul blocului de 10mp.

Blocul nu este situat stradal, astfel nu veti avea parte de zgomotul traficului, iar vederea acestuia este pe spate, cu o priveliste la spatiul verde.

In apropierea imobilului aveti statia de metrou Lujerului, Cora, Plaza Romania, statiile de tramvai si autobuz de la Lujerului si Veteranilor, Piata Veteranilor, farmacii, posta si cateva scoli.

Momentan nu detinem informatii despre certificatul energetic, insa acesta va fi disponibil in momentul vanzarii!

Pretul este negociabil.

Pentru mai multe detalii sau vizionari, nu ezitati sa ma contactati!

An constructie 1979

Suprafata construita 68.9 mp

Suprafata utila 57.47 mp

Regim Inaltime 9 / 10

Etaj 9

Nr. camere 2 camere

Nr. bai 1

Nr. balcoane 1 balcon

Confort 1

Tip constructie In bloc

Status constructie Finalizat

Disponibila incepand cu 2022-05-18

Judet Bucuresti

Oras/ Sector Sector 6

Zona Lujerului

Gps lat 44.432269

Gps lng 26.031192

Curent electric

Internet prin fibra optica

Internet prin cablu

Cablu TV

Internet Wireless

Geamuri termopan

Parchet

Apometre

Boxa

Gresie

Faianta

Loc parcare exterior

Mobilat

Aer conditionat

Bucatarie mobilata

Lift

Apartament 2 camere 3 minute metrou

Proprietate vanduta

Ai o proprietate similara? Vinde-o cu noi.
Vinde apartament

Cod: REA1009390

Proprietati similare

Bucuresti, Militari, Lujerului

Apartament, 2 camere

37 mp 4 1977

77.500 EUR

Detalii

Bucuresti, Drumul Taberei

Apartament, 2 camere

45 mp 4 1974

80.000 EUR

Detalii

Bucuresti, Militari, Uverturii

Apartament, 2 camere

40.95 mp 2 2025

73.800 EUR

Detalii

Bucuresti, Militari, Uverturii

Apartament, 2 camere

46.85 mp 2 2025

84.330 EUR

Detalii

Bucuresti, Sector 5, Prelungirea Ghencea (s5)

Apartament, 2 camere

57 mp 1 2010

80.000 EUR

Detalii
Exclusiv Discount

Bucuresti, 1 Mai

Apartament, 2 camere

44.1 mp 7 1961

79.000 EUR

Detalii

Bucuresti, Ultracentral, Cismigiu

Apartament, 2 camere

56.63 mp 4 1932

85.000 EUR

Detalii

Bucuresti, Ultracentral, Centrul Istoric (s2)

Apartament, 2 camere

31 mp P 1946

89.990 EUR

Detalii
Apartamente 2 camere vandute in Militari, Bucuresti Apartamente 2 camere de vanzare in Militari, Bucuresti

Afla primul de cele mai bune oferte
inainte sa ajunga pe piata

Aboneaza-te la newsletter

Aboneaza-te la notificari