Timisoara 2 camere 59.2 mp 10 2024

SVN Romania va prezinta spre vanzare un Apartament de 2 camere situat in cartierul Exigent Plaza, la etajul 10 din 11, oferind un spatiu luminos si bine compartimentat. Locuinta este decomandata, cu o configuratie practica si moderna.

Apartamentul este mobilat si utilat lux, cu absolut tot ce este necesar: aspirator, fier de calcat, tacamuri, aparat de cafea si electrocasnice moderne, oferind confort si functionalitate imediata.

Zona este extrem de avantajoasa, avand in cartier un magazin Auchan pentru cumparaturi rapide si acces facil la mall-urile Plaza si AFI Cotroceni, ambele situate foarte aproape. Parcul Liniei, un loc ideal pentru relaxare sau activitati in aer liber, este la doar doua minute de mers pe jos, iar statia de metrou Lujerului se afla la aproximativ 10 minute distanta.

Acest apartament reprezinta o alegere ideala pentru cei care isi doresc o locuinta moderna, intr-o locatie excelenta, aproape de facilitati importante, cu promisiunea confortului si elegantei oferite de finisajele premium. Perfect atat pentru locuit, cat si ca investitie.


Pretul este 180.000 Euro + TVA.

Pentru detalii sau vizionare, va rugam sa ne contactati.

Certificatul Energetic va fi pus la dispozitie in momentul vanzarii.

Echipa SVN Residentialist este aici pentru a va facilita achizitionarea apartamentului mult visat!

An constructie 2024

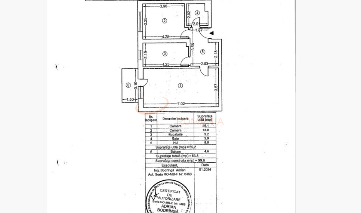
Suprafata construita 99.6 mp

Suprafata utila 59.2 mp

Suprafata terasa 4.6 mp

Regim Inaltime 10 / 11

Etaj 10

Nr. camere 2 camere

Nr. bai 1

Nr. balcoane 1 balcon

Confort 1

Compartimentare Decomandat

Tip constructie In bloc

Status constructie Finalizat

Disponibila incepand cu 2025-11-19

Judet Bucuresti

Oras/ Sector Sector 6

Zona Timisoara

Gps lat 44.428658

Gps lng 26.041809

Interfon

Detector de gaze

Supraveghere video

Supraveghere 24/7

Curent electric

Geamuri termopan

Parchet

Apometre

Gresie

Faianta

Gaz

Incalzire proprie

Mobilat

Aer conditionat

Bucatarie mobilata

Bloc reabiliat termic

Lift

Valoare proprietate (€)

Perioada (ani)

Procent avans (27.000 €)


Suma creditata 153.000

Dobanda 4.9%

Rata lunara 3.783 lei

Broker Imobiliar

Sorin Netejoru , Consultant imobiliar Vezi toate proprietatile

0317100200

Apartament 2 camere Exigent Plaza

Pret vanzare + TVA
180.000 €

Telefon Consultant imobiliar
0317100200

Cod: REA1023731

Proprietati similare

Bucuresti, Drumul Taberei, Timisoara

Apartament, 2 camere

60 mp 1 2024

185.000 EUR

Detalii

Bucuresti, Militari, Lujerului

2 camere cu loc parcare exterior inclus

52 mp 7 2024

195.000 EUR

Detalii

Bucuresti, Militari, Lujerului

Apartament, 2 camere

56 mp 11 2024

177.500 EUR

Detalii

Bucuresti, Militari, Lujerului

Apartament, 2 camere

54 mp 9 2024

165.000 EUR

Detalii

Bucuresti, Militari, Lujerului

Apartament, 2 camere

60 mp P 2020

175.000 EUR

Detalii

Bucuresti, Cotroceni

Apartament, 2 camere

49 mp 4 2024

165.000 EUR

Detalii

Bucuresti, Militari, Politehnica

Apartament, 2 camere

57.23 mp 2 2028

167.100 EUR

Detalii

Bucuresti, Militari, Grozavesti

Apartament, 2 camere

48.7 mp 4 2021

192.000 EUR

Detalii
Apartamente 2 camere vandute in Drumul Taberei, Bucuresti Apartamente 2 camere de vanzare in Drumul Taberei, Bucuresti

Afla primul de cele mai bune oferte
inainte sa ajunga pe piata

Aboneaza-te la newsletter

Aboneaza-te la notificari