Uverturii 2 camere 46.85 mp 2 2025

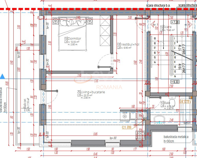
SVN Romania va prezinta spre vanzare un apartament de 2 camere, decomandat, suprafata utila 46.85 mp + balcon 7.55 mp, situat in zona Uverturii. Imobil tip boutique, cu doar 6 apartamente, intr-o zona foarte linistita de case.

Locatie excelenta: aproape de magazinele Lidl si Mega Image, la doar cateva minute de statia de autobuz 178, iar metroul Gorjului se afla la aproximativ 1 km distanta (15 minute de mers pe jos).

Apartamentul beneficiaza de termopane Rehau gri antracit, finisaje la alegerea viitorului proprietar, iar separat se poate achizitiona loc de parcare.

Se preda la gata, cu termen de finalizare de aproximativ 4-5 luni.

Aceasta proprietate reprezinta alegerea ideala pentru cei care cauta un camin confortabil si bine conectat la toate facilitatile urbane, intr-o zona cu acces rapid catre centrul orasului si zonele comerciale importante.

Pentru detalii suplimentare sau pentru programarea unei vizionari, va stau la dispozitie.

Echipa SVN Residentialist este aici pentru a va facilita achizitionarea apartamentului mult visat!

Vizionarea acestui imobil se face doar in baza semnarii unui acord de vizionare conform codului civil art 2.096-2.102.

An constructie 2025

Suprafata construita 60 mp

Suprafata utila 46.85 mp

Suprafata terasa 7.55 mp

Regim Inaltime 2 / 3

Etaj 2

Nr. camere 2 camere

Nr. bai 1

Nr. balcoane 1 balcon

Confort 1

Compartimentare Decomandat

Tip constructie In bloc

Status constructie Nefinalizat

Disponibila incepand cu 2025-12-10

Judet Bucuresti

Oras/ Sector Sector 6

Zona Uverturii

Gps lat 44.442449

Gps lng 26.022110

Curent electric

Interfon

Detector de gaze

Supraveghere video

Geamuri termopan

Parchet

Apometre

Gresie

Faianta

Gaz

Incalzire proprie

Calorifere

Bloc reabiliat termic

Valoare proprietate (€)

Perioada (ani)

Procent avans (13.872 €)


Suma creditata 78.608

Dobanda 4.9%

Rata lunara 1.944 lei

Broker Imobiliar

Sorin Netejoru , Consultant imobiliar Vezi toate proprietatile

0317100200

Apartament 2 camere de vanzare Uverturii

Pret vanzare + TVA
92.480 €

Telefon Consultant imobiliar
0317100200

Cod: REA1025048

Proprietati similare

Bucuresti, Militari, Apusului

Apartament, 2 camere

52.6 mp 4 1984

89.000 EUR

Detalii

Bucuresti, Militari, Apusului

Apartament, 2 camere

51 mp 3 1966

88.000 EUR

Detalii

Bucuresti, Crangasi

Apartament, 2 camere

53 mp 8 1986

86.000 EUR

Detalii

Bucuresti, Gara De Nord, Grivita

Apartament, 2 camere

44 mp 5 1965

99.500 EUR

Detalii

Bucuresti, Ultracentral, Calea Plevnei

Apartament, 2 camere

80 mp 1 1930

84.999 EUR

Detalii

Bucuresti, Gara De Nord

Apartament, 2 camere

44.75 mp 6 1965

95.999 EUR

Detalii

Bucuresti, Giulesti

2 camere cu loc parcare exterior inclus

49.7 mp 2 2024

98.000 EUR

Detalii

Bucuresti, Ultracentral, Basarab

Apartament, 2 camere

45 mp 6 1965

96.999 EUR

Detalii
Apartamente 2 camere vandute in Militari, Bucuresti Apartamente 2 camere de vanzare in Militari, Bucuresti

Afla primul de cele mai bune oferte
inainte sa ajunga pe piata

Aboneaza-te la newsletter

Aboneaza-te la notificari