Uverturii 2 camere 40.95 mp 2 2025

SVN Romania va prezinta spre vanzare un apartament de 2 camere, la etaj 2 din 3, suprafata utila 40.95 mp + balcon 4.80 mp, situat in zona Uverturii. Imobil tip boutique, cu doar 5 apartamente, intr-o zona foarte linistita de case.

Locatie excelenta: aproape de magazinele Lidl si Mega Image, la doar cateva minute de statia de autobuz 178, iar metroul Gorjului se afla la aproximativ 1 km distanta (15 minute de mers pe jos).

Apartamentul beneficiaza de termopane Rehau gri antracit, finisaje la alegerea viitorului proprietar, iar separat se poate achizitiona loc de parcare.

Se preda la gata, cu termen de finalizare de aproximativ 4-5 luni.

Aceasta proprietate reprezinta alegerea ideala pentru cei care cauta un camin confortabil si bine conectat la toate facilitatile urbane, intr-o zona cu acces rapid catre centrul orasului si zonele comerciale importante.

Pentru detalii suplimentare sau pentru programarea unei vizionari, va stau la dispozitie.

Echipa SVN Residentialist este aici pentru a va facilita achizitionarea apartamentului mult visat!

Vizionarea acestui imobil se face doar in baza semnarii unui acord de vizionare conform codului civil art. 2.096-2.102.

An constructie 2025

Suprafata construita 60 mp

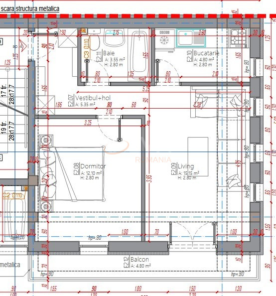
Suprafata utila 40.95 mp

Suprafata terasa 4.8 mp

Regim Inaltime 2 / 3

Etaj 2

Nr. camere 2 camere

Nr. bai 1

Nr. balcoane 1 balcon

Confort 1

Compartimentare Decomandat

Tip constructie In bloc

Status constructie Nefinalizat

Disponibila incepand cu 2025-12-10

Judet Bucuresti

Oras/ Sector Sector 6

Zona Uverturii

Gps lat 44.442303

Gps lng 26.021952

Curent electric

Interfon

Detector de gaze

Acoperis mansardat

Geamuri termopan

Parchet

Apometre

Gresie

Faianta

Gaz

Incalzire proprie

Incalzire prin pardoseala

Bloc reabiliat termic

Valoare proprietate (€)

Perioada (ani)

Procent avans (11.666 €)


Suma creditata 66.109

Dobanda 4.9%

Rata lunara 1.635 lei

Broker Imobiliar

Sorin Netejoru , Consultant imobiliar Vezi toate proprietatile

0317100200

Apartament 2 camere de vanzare in zona Uverturii

Pret vanzare + TVA
77.775 €

Telefon Consultant imobiliar
0317100200

Cod: REA1025082

Proprietati similare

Bucuresti, Drumul Taberei

Apartament, 2 camere

45 mp 4 1974

80.000 EUR

Detalii

Bucuresti, Ultracentral, Calea Plevnei

Apartament, 2 camere

80 mp 1 1930

84.999 EUR

Detalii
Exclusiv Discount

Bucuresti, 1 Mai

Apartament, 2 camere

44.1 mp 7 1961

71.500 EUR

Detalii

Bucuresti, Stefan Cel Mare

Apartament, 2 camere

44.6 mp 1 1968

84.900 EUR

Detalii

Bucuresti, Stefan Cel Mare

Apartament, 2 camere

52 mp 7 1961

85.000 EUR

Detalii

Bucuresti, Mosilor

Apartament, 2 camere

43 mp 5 1939

70.000 EUR

Detalii

Bucuresti, Ferdinand, Foisorul De Foc

Apartament, 2 camere

44 mp 1 2015

76.000 EUR

Detalii

Bucuresti, Colentina, Obor

Apartament, 2 camere

45.84 mp 4 1961

84.000 EUR

Detalii
Apartamente 2 camere vandute in Militari, Bucuresti Apartamente 2 camere de vanzare in Militari, Bucuresti

Afla primul de cele mai bune oferte
inainte sa ajunga pe piata

Aboneaza-te la newsletter

Aboneaza-te la notificari