Bragadiru 1 camera 45 mp 2 2008

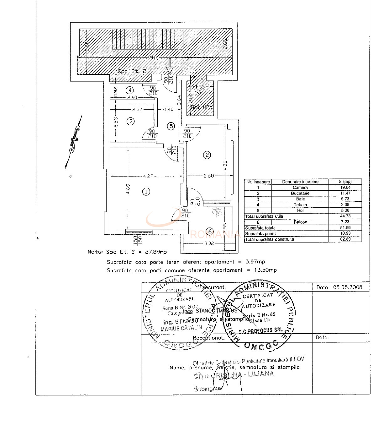
SVN Romania propune spre vanzare un apartament situate la etajul 2, intr-un bloc cu 4 niveluri si mansarda, compus din 1 camera de locuit si dependinte: baie, bucatarie, balcon in suprafata totala de 7,23 mp si hol. Suprafata totala a apartamentului este de 51,96 mp, iar cea utila de 44,73 mp.

Imobilul are finisaje superioare: parchet in camere, faianta si gresie baie/ bucatarie, centrala termica si tamplaria PVC cu geam termopan.

Blocul este localizat partea de Vest a orasului Bucuresti, in complexul residential Cartierul Latin, intr-o zona cu acces la transportul in comun si la centre comerciale bine aprovizionate.

Apartamentul nu este locuit si este disponibil imediat.

Chiar daca considerati ca pretul nu este conform asteptarilor, dar acest imobil corespunde dorintelor dumneavoastra, nu ezitati sa ne contactati. Vom incerca sa gasim o solutie pentru acest imobil sau sa va prezentam alte variante.

Conform certificatului de performanta energetica nr. GP1820/10.01.2022, imobilul se incadreaza in Clasa energetica A, Consumul total specific de energie primara este de 70, Indicele de emisii echivalent CO2 este 26.1, iar Consum total specific de energie din surse regenerabile este 0.

An constructie 2008

Suprafata construita 52 mp

Suprafata utila 45 mp

Suprafata terasa 7 mp

Regim Inaltime 2 / 4

Etaj 2

Nr. camere 1 camera

Nr. bai 1

Nr. balcoane 1 balcon

Confort 1

Compartimentare Decomandat

Tip constructie In bloc

Status constructie Finalizat

Disponibila incepand cu 2024-12-10

Judet Ilfov

Oras/ Sector Sud

Zona Bragadiru

Gps lat 44.405150

Gps lng 25.992445

Cablu TV

Internet prin fibra optica

Interfon

Acoperis mansardat

Curent electric

Internet Wireless

Internet prin cablu

Internet prin Dial-Up

Detector de gaze

Geamuri termopan

Parchet

Apometre

Gresie

Telefon

Faianta

Gaz

Loc parcare exterior

Calorifere

Lift

Garsoniera de Vanzare Cartierul Latin Prelungirea Ghencea

Proprietate vanduta

Ai o proprietate similara? Vinde-o cu noi.
Vinde apartament

Cod: REA1018634

Proprietati similare

Ilfov, Sud, Bragadiru

Garsoniera

30.08 mp P 2025

52.500 EUR

Detalii

Ilfov, Vest, Rosu

Garsoniera

32 mp 2 2000

56.000 EUR

Detalii

Ilfov, Vest, Chiajna

Garsoniera

30.85 mp 4 2020

55.000 EUR

Detalii

Ilfov, Est, Dobroesti

Garsoniera

36 mp P 2026

55.000 EUR

Detalii
Apartamente 1 camera vandute in Sud, Ilfov Apartamente 1 camera de vanzare in Sud, Ilfov

Afla primul de cele mai bune oferte
inainte sa ajunga pe piata

Aboneaza-te la newsletter

Aboneaza-te la notificari