Bragadiru 4 camere 110.77 mp P 2007

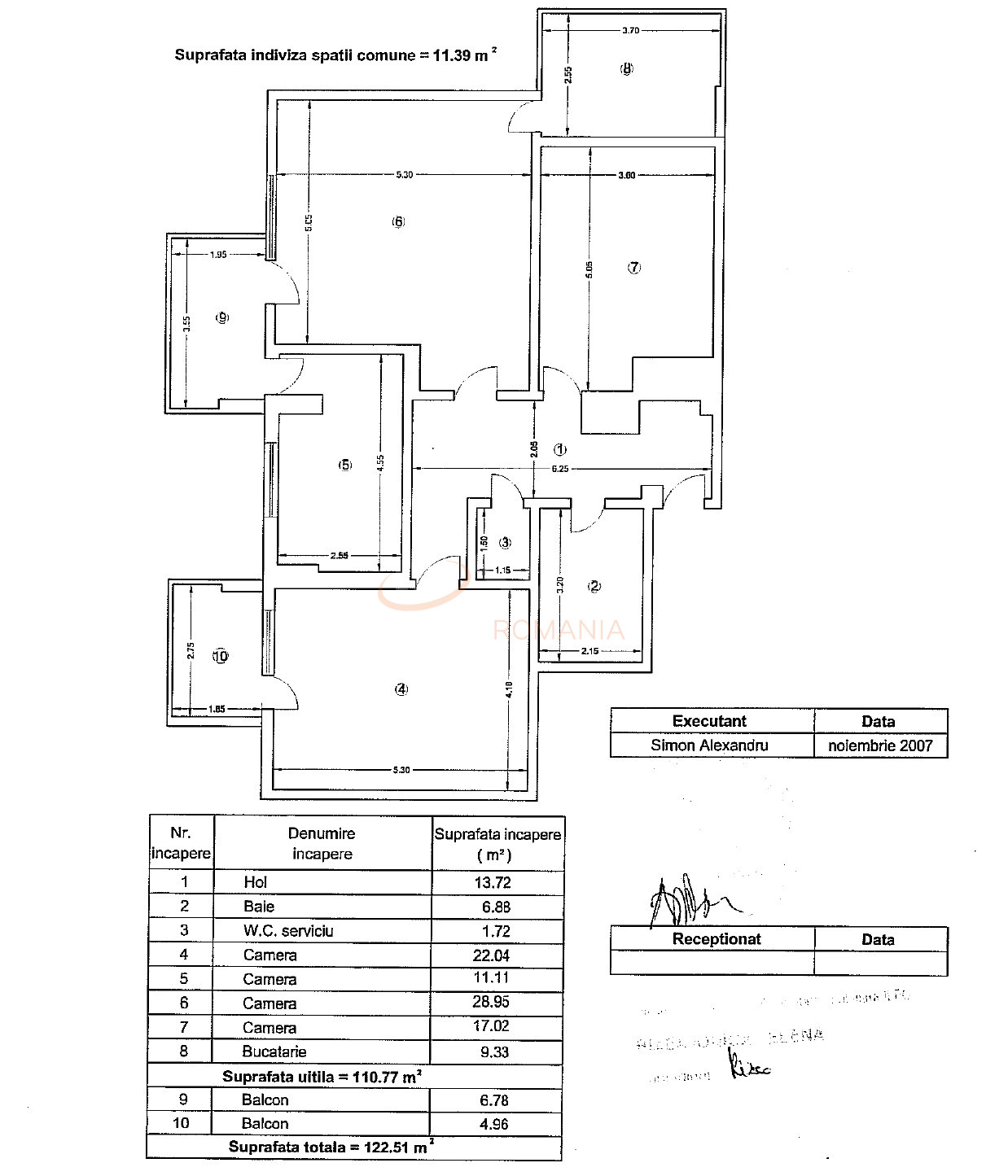
SVN Romania propune spre vanzare un apartament situate la parterul unui bloc cu 4 niveluri, compus din 4 camere de locuit si dependinte: baie, wc serviciu, 2 balcoane in suprafata totala de 12 mp si hol. Suprafata totala a apartamentului este de 122 mp, iar cea utila de 111 mp.

Imobilul are finisaje superioare: parchet in camere, faianta bucatarie/baie si gresie baie/ bucatarie, centrala termica si tamplaria PVC cu geam termopan.

Blocul este localizat partea de Vest a orasului Bucuresti, in complexul residential Cartierul Latin, intr-o zona cu acces la transportul in comun si la centre comerciale bine aprovizionate.

In apropriere se regaseste o retea de transport in comun, unitati comerciale, de invatamant, bancare, de cult si de agrement.

Conform certificatului de performanta energetica nr. 96/11.04.2022, imobilul se incadreaza in Clasa energetica B, Consumul total specific de energie primara este de 137.92, Indicele de emisii echivalent CO2 este 21.7 iar Consum total specific de energie din surse regenerabile este 0.

Apartamentul nu este locuit si este disponibil imediat.

Pentru detalii suplimentare si programarea la vizionare, va rugam sa ne contactati.

An constructie 2007

Suprafata construita 122.51 mp

Suprafata utila 110.77 mp

Suprafata terasa 16 mp

Regim Inaltime P / 4

Etaj P

Nr. camere 4 camere

Nr. bai 2

Nr. balcoane 2 balcoane

Confort 1

Compartimentare Decomandat

Tip constructie In bloc

Status constructie Finalizat

Disponibila incepand cu 2024-04-17

Judet Ilfov

Oras/ Sector Sud

Zona Bragadiru

Gps lat 44.405145

Gps lng 25.992442

Cablu TV

Internet prin fibra optica

Interfon

Curent electric

Internet Wireless

Internet prin cablu

Internet prin Dial-Up

Detector de gaze

Geamuri termopan

Balcon inchis

Parchet

Apometre

Gresie

Telefon

Faianta

Gaz

Calorifere

WC serviciu

Lift

Apartament 4 Camere de Vanzare Cartierul Latin Prelungirea Ghencea

Proprietate vanduta

Ai o proprietate similara? Vinde-o cu noi.
Vinde apartament

Cod: REA1018611
Apartamente 4 camere vandute in Sud, Ilfov Apartamente 4 camere de vanzare in Sud, Ilfov

Afla primul de cele mai bune oferte
inainte sa ajunga pe piata

Aboneaza-te la newsletter

Aboneaza-te la notificari