Matei Voievod 10 camere 557.97 mp D + P + 2 450 mp

Va supunem atentiei o vila deosebita situata in centrul orasului, cu o suprafata utila de aproximativ 793 mp cu tot cu terase.

Imobilul a fost construit in anul 2000 si beneficiaza de o curte de 450 mp si aproximativ 10 locuri de parcare.
Proprietatea este ideala pentru o clinica.

Pentru detalii suplimentare si programare vizionare, contactati broker-ul !!!

An constructie 2000

Suprafata construita 792.97 mp

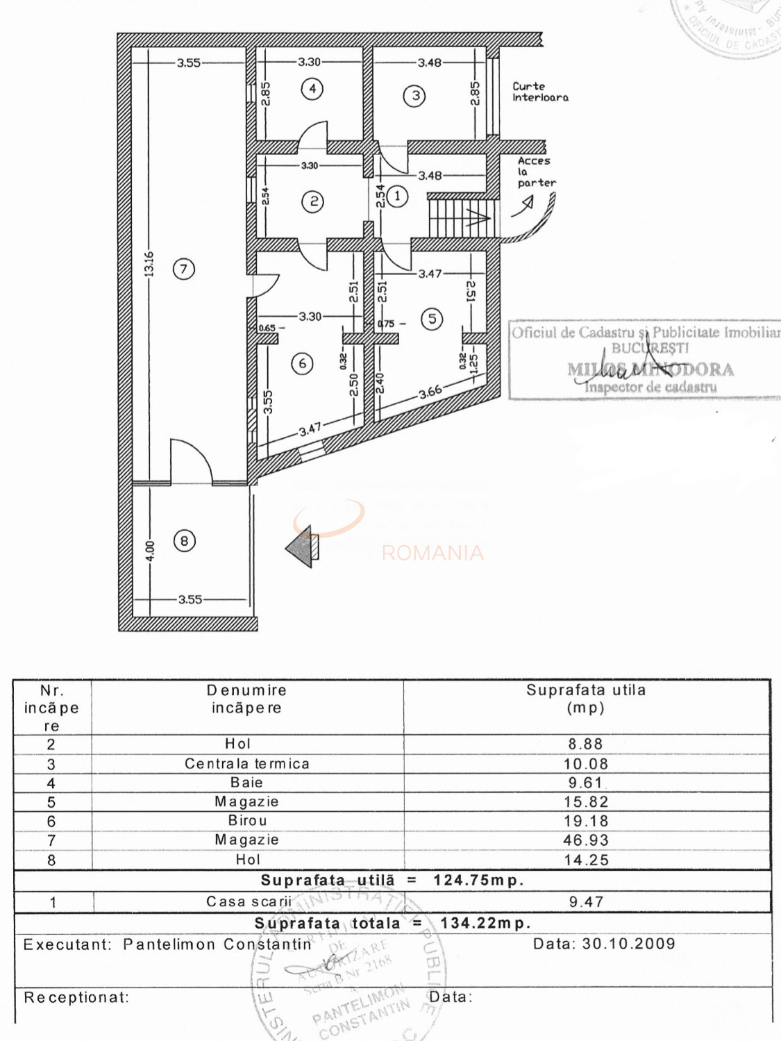
Suprafata utila 557.97 mp

Regim Inaltime D + P + 2

Etaj D + P + 2

Nr. camere 10 camere

Nr. bai 5

Nr. balcoane 1 balcon

Tip constructie Vila

Status constructie Finalizat

Amprenta la sol 260

Teren suprafata 450 mp

Deschidere stradala 20

Curte Individuala Da

Disponibila incepand cu 2019-04-24

Judet Bucuresti

Oras/ Sector Sector 2

Zona Matei Voievod

Gps lat 44.436549

Gps lng 26.128368

Nr. terase 8

Geamuri termopan

Telefon

Parchet

Apa

Acoperis tabla

Gresie

Gaz

Faianta

Canalizare

Plansee beton

Parcare in curte

Incalzire centrala termica

Aer conditionat

WC serviciu

Sistem de alarma

Detector de gaze

Spatiu de depozitare

Interfon

Internet prin fibra optica

Curent electric

Detector de incendiu

Gradina

VILA PENTRU CLINICA IN ZONA MATEI VOIEVOD

Proprietate vanduta

Ai o proprietate similara? Vinde-o cu noi.
Vinde apartament

Cod: REV2000251

Proprietati similare

Bucuresti, Dorobanti

Casa, 10 camere

320 mp D + P + 2 + M 2025

690.000 EUR

Detalii

Bucuresti, Parcul Carol

Casa, 10 camere

320 mp P + 2 2000

700.000 EUR

Detalii

Bucuresti, Pipera

Casa, 10 camere

295.57 mp P + 2 2024

669.000 EUR

Detalii
Case 10 camere vandute in Ultracentral, Bucuresti Case 10 camere de vanzare in Ultracentral, Bucuresti

Afla primul de cele mai bune oferte
inainte sa ajunga pe piata

Aboneaza-te la newsletter

Aboneaza-te la notificari