Manastur 4 camere 132 mp P + 1 + M 100 mp

SVN Romania I Cluj va ofera spre vanzare o casa tip duplex, dispusa pe 3 niveluri, compartimentata astfel:
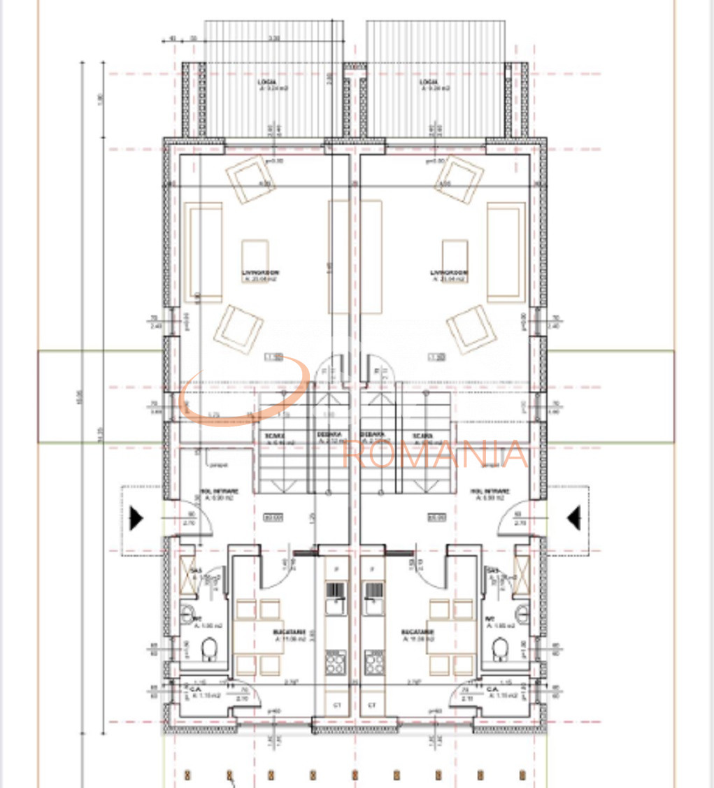
Parter: living, bucatarie cu camara de alimente si baie.
Etaj: 2 dormitoare, 2 bai, 2 balcoane.
Mansarda: un dormitor si o baie.
Aceasta casa se preda la stadiul de semifinisat: centrala termica proprie, tamplarie PVC, sapa autonivelanta, incalzire in pardoseala si pereti gletuiti.
In pretul casei intra si 2 locuri de parcare exterioare.
Casa va fi finalizata pana la sfarsitul acestui an.
Clasa energetica A.
Se accepta orice modalitate de plata.

An constructie 2020

Suprafata construita 170 mp

Suprafata utila 132 mp

Regim Inaltime P + 1 + M

Etaj P + 1 + M

Nr. camere 4 camere

Nr. bai 4

Nr. balcoane 2 balcoane

Tip constructie Duplex

Status constructie Finalizat

Amprenta la sol 75

Teren suprafata 100 mp

Deschidere stradala 20

Curte Individuala Da

Judet Cluj

Oras/ Sector Cluj-Napoca

Zona Manastur

Gps lat 46.743404

Gps lng 23.571286

Clasa energetica 1

Spatiu de joaca

Geamuri termopan

Apa

Acoperis tabla

Gaz

Canalizare

Plansee beton

Parcare in curte

Incalzire centrala termica

Consolidata

Renovat recent

WC serviciu

Detector de gaze

Spatiu de depozitare

Termoizolatie

Interfon

Curent electric

Gradina

Duplex Manastur zona Campului

Proprietate vanduta

Ai o proprietate similara? Vinde-o cu noi.
Vinde apartament

Cod: REV0018028
Case 4 camere vandute in Cluj-Napoca, Cluj Case 4 camere de vanzare in Cluj-Napoca, Cluj

Afla primul de cele mai bune oferte
inainte sa ajunga pe piata

Aboneaza-te la newsletter

Aboneaza-te la notificari