Centru 4 camere 77 mp P 280 mp

Casa de vanzare in Darza – Confort si liniste pentru intreaga familie!

Descopera aceasta locuinta primitoare, ideala pentru familii sau cupluri in cautarea unui camin modern si confortabil! Situata intr-o zona linistita din Darza, aceasta casa pe un singur nivel ofera un echilibru perfect intre intimitate, functionalitate si accesibilitate.

Detalii proprietate:

Suprafata teren: 280 mp – spatiu generos pentru relaxare sau amenajarea unui colt verde.
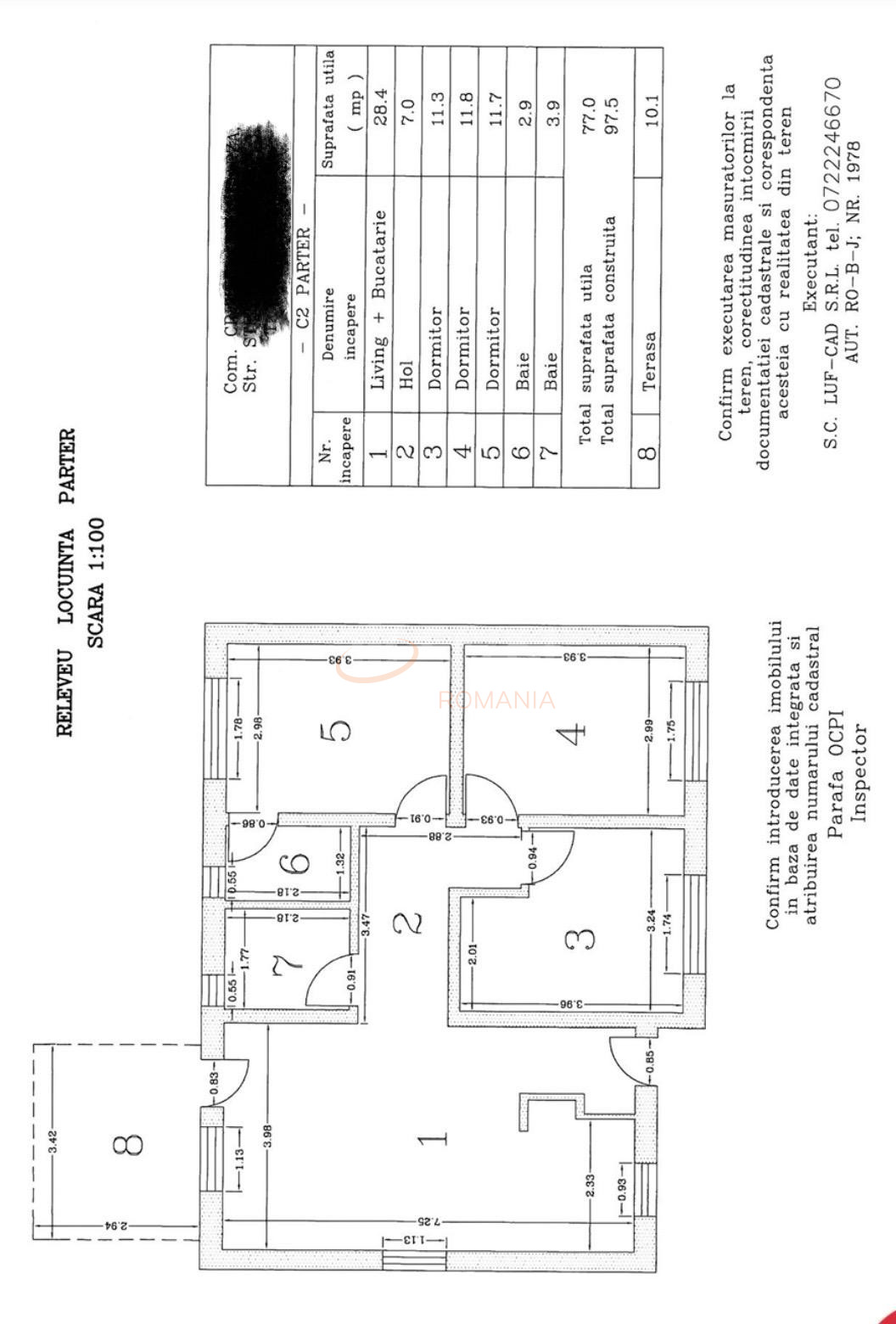
Amprenta la sol: 98 mp.
Suprafata utila: 77 mp – compartimentare inteligenta pentru confort maxim.
Compartimentare interioara:

3 dormitoare luminoase – perfecte pentru odihna si confort.
2 bai moderne – una dintre ele situata in dormitorul matrimonial pentru un plus de intimitate.
Living open space cu bucataria – un spatiu deschis si primitor, ideal pentru momentele petrecute in familie.
Terasa de 10 mp – locul perfect pentru relaxare si socializare in aer liber.
Facilitati si utilitati:
? Racordata la gaze, apa si energie electrica – confort garantat!
? Aproape de gara locala – acces rapid catre Bucuresti, ideal pentru navetisti.
? In proximitatea unor magazine mari: Mega Image, Kaufland, Profi – pentru cumparaturi rapide si convenabile.

Aceasta locuinta este alegerea ideala pentru cei care doresc un camin modern, bine organizat, cu acces facil la facilitati urbane. Nu rata ocazia de a descoperi aceasta proprietate!

Contacteaza-ne acum pentru mai multe detalii si programarea unei vizionari!

An constructie 2025

Suprafata construita 97.5 mp

Suprafata utila 77 mp

Regim Inaltime P

Etaj P

Nr. camere 4 camere

Nr. bai 3

Nr. balcoane 0 balcoane

Tip constructie Casa

Status constructie Finalizat

Teren suprafata 280 mp

Deschidere stradala 14 m

Curte Individuala Da

Disponibila incepand cu 2025-01-31

Judet Dambovita

Oras/ Sector Crevedia

Zona Centru

Gps lat 44.599731

Gps lng 25.932766

Nr. terase 1

Geamuri termopan

Parchet

Apa

Acoperis tabla

Gresie

Gaz

Faianta

Canalizare

Calorifere

Parcare in curte

Incalzire centrala termica

Consolidata

Renovat recent

Curent electric

Gradina

Pod

Valoare proprietate (€)

Perioada (ani)

Procent avans (15.750 €)


Suma creditata 89.250

Dobanda 4.9%

Rata lunara 2.207 lei

Broker Imobiliar

Andreea Dima , Consultant imobiliar Vezi toate proprietatile

0317100200

Casa 4 camere - Ansamblu 30 locuinte

Pret vanzare
105.000 €

Telefon Consultant imobiliar
0317100200

Cod: REV2004559

Proprietati similare

Dambovita, Crevedia, Centru

Casa, 4 camere

91.5 mp P 2022

115.000 EUR

Detalii

Dambovita, Magura, Centru

Casa, 4 camere

60 mp P + M 2018

95.000 EUR

Detalii
Case 4 camere vandute in Crevedia, Dambovita Case 4 camere de vanzare in Crevedia, Dambovita

Afla primul de cele mai bune oferte
inainte sa ajunga pe piata

Aboneaza-te la newsletter

Aboneaza-te la notificari