Centru 3 camere 100 mp P + 1 600 mp

SVN Residentialist va ofera spre vanzare o vila individuala cu 3 camere intr-o zona linistita in apropiere de orasul Buftea, aflata pe un drum de servitute oferind intimitate si o atmosfera relaxanta. Este locul ideal pentru a scapa de agitatia orasului.

Aceasta proprietate ofera un mediu privat si natural pentru cei care aprecieaza linistea si frumusetea naturii. La doar 5 minute distanta se regasesc o multitudine de zone comerciale (Mega Image, Profi), farmacii, mijloace de transport in comun, scolii si
gradinite de stat sau private, teren de sport, restaurante.

Proprietatea dispune de un teren cu o suprafata totala de 600mp cu deschidere de 13mp, iar casa dispune de 130mp utili, iar constructia este din caramida si are finisaje premium.

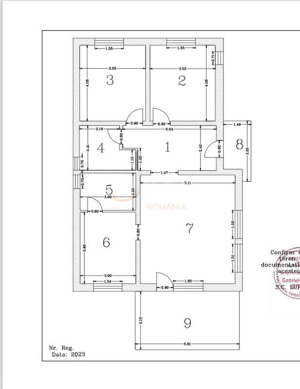
Compartimentarea este una foarte eficienta, de tip decomandat si avem urmatoarele:
- terasa deschisa in fata casei
- 2 dormitoare matrimoniale
- baie
- bucatarie (inchisa)
- living
- terasa exterioara cu suprafata de 17mp, in spatele casei
- pivnita 2,2mp.

Va asteptam cu mult drag la vizionare cu o programare prealabila.

An constructie 2023

Suprafata construita 130 mp

Suprafata utila 100 mp

Regim Inaltime P + 1

Etaj P + 1

Nr. camere 3 camere

Nr. bai 1

Nr. balcoane 0 balcoane

Tip constructie Vila

Status constructie Finalizat

Amprenta la sol 130

Teren suprafata 600 mp

Deschidere stradala 13 m

Curte Individuala Da

Disponibila incepand cu 2024-05-22

Judet Dambovita

Oras/ Sector Darza

Zona Centru

Gps lat 44.598881

Gps lng 25.937375

Nr. terase 1

Acoperis mansardat

Geamuri termopan

Acoperis tigla

Parchet

Apa

Gresie

Gaz

Faianta

Parcare in curte

Incalzire centrala termica

Fosa septica

Spatiu de depozitare

Termoizolatie

Curent electric

Gradina

Beci

Pod

De vanzare casa parter pod intr-o zona linistita si in plina dezvoltare Darza

Proprietate vanduta

Ai o proprietate similara? Vinde-o cu noi.
Vinde apartament

Cod: REV2003713
Case 3 camere vandute in Darza, Dambovita Case 3 camere de vanzare in Darza, Dambovita

Afla primul de cele mai bune oferte
inainte sa ajunga pe piata

Aboneaza-te la newsletter

Aboneaza-te la notificari