Centru 5 camere 178.1 mp P + 1 597 mp

SVN Residentialist va ofera spre vanzare o vila individuala, intr-o zona linistita, cu locuinte noi, in apropiere de lac, Crevedia - Samurcasi.

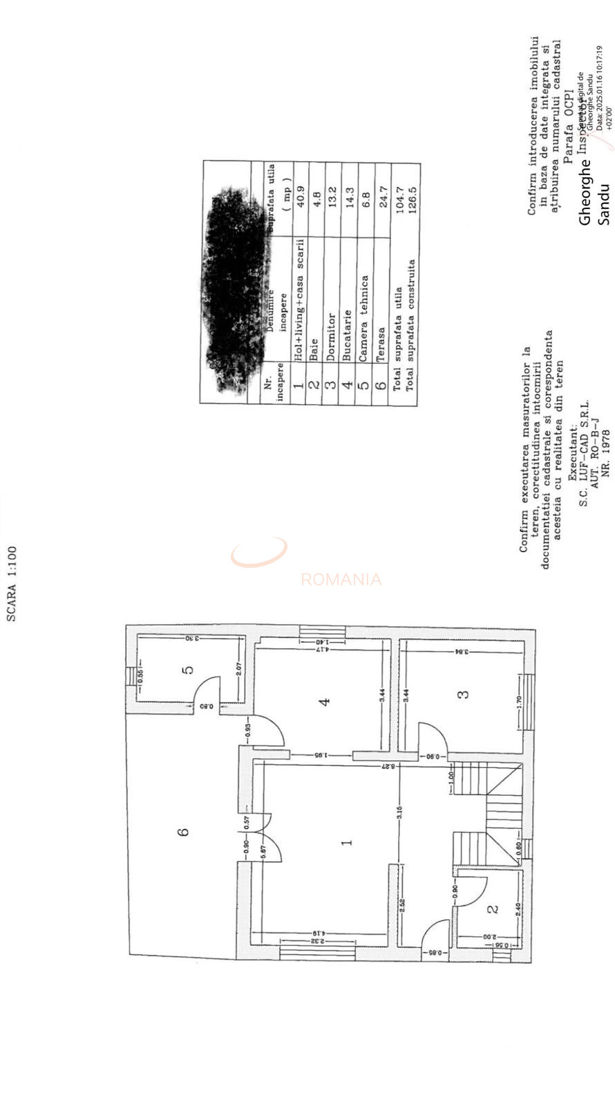
Avand o suprafata construita de 219 mp., dintre care 178 mp. utili, imobilul este amplasat pe un teren de 600 mp.

Compartimentare:

Parter:

- hol
- camera tehnica
- bucatarie
- living cu dinning
- baie
- birou/dormitor

Etaj:

- 3 dormitoare
- baie.
- hol

La parter avem o terasa de 24,7 mp incalzita.

Curtea este amenajata cu gazon si copaci ornamentali.

Utilitati: gaz curent, put propriu la 25 metri, fosa.

Pentru mai multe detalii, ma puteti contacta oricand!

An constructie 2025

Suprafata construita 219 mp

Suprafata utila 178.1 mp

Regim Inaltime P + 1

Etaj P + 1

Nr. camere 5 camere

Nr. bai 3

Nr. balcoane 0 balcoane

Tip constructie Vila

Status constructie Finalizat

Amprenta la sol 130

Teren suprafata 597 mp

Deschidere stradala 13.5 m

Curte Individuala Da

Disponibila incepand cu 2025-02-06

Judet Dambovita

Oras/ Sector Darza

Zona Centru

Gps lat 44.586926

Gps lng 25.904285

Nr. terase 1

Anexa

Geamuri termopan

Parchet

Acoperis tabla

Gresie

Gaz

Faianta

Incalzire prin pardoseala

Parcare in curte

Renovat recent

Fosa septica

Spatiu de depozitare

Curent electric

Gradina

Pod

Vila Deosebita 5 camere Samurcasi

Proprietate vanduta

Ai o proprietate similara? Vinde-o cu noi.
Vinde apartament

Cod: REV2004564

Proprietati similare

Dambovita, Tartasesti, Centru

Casa, 5 camere

134.18 mp P + 1 + M 2024

209.000 EUR

Detalii
Case 5 camere vandute in Darza, Dambovita Case 5 camere de vanzare in Darza, Dambovita

Afla primul de cele mai bune oferte
inainte sa ajunga pe piata

Aboneaza-te la newsletter

Aboneaza-te la notificari