Casa, 4 camere, Ilfov / Est / Voluntari
Forest Village este un ansamblu rezidential ce dispune de toate utilitatile si toate avantajele unui ansamblu privat: racord la canalizare, acces privat cu bariera si post de paza, gaze si curent electric. Drumul de acces este asfaltat.
Ansamblul este situat in localitatea Afumati, la doar 5 minute de Primaria Afumati.
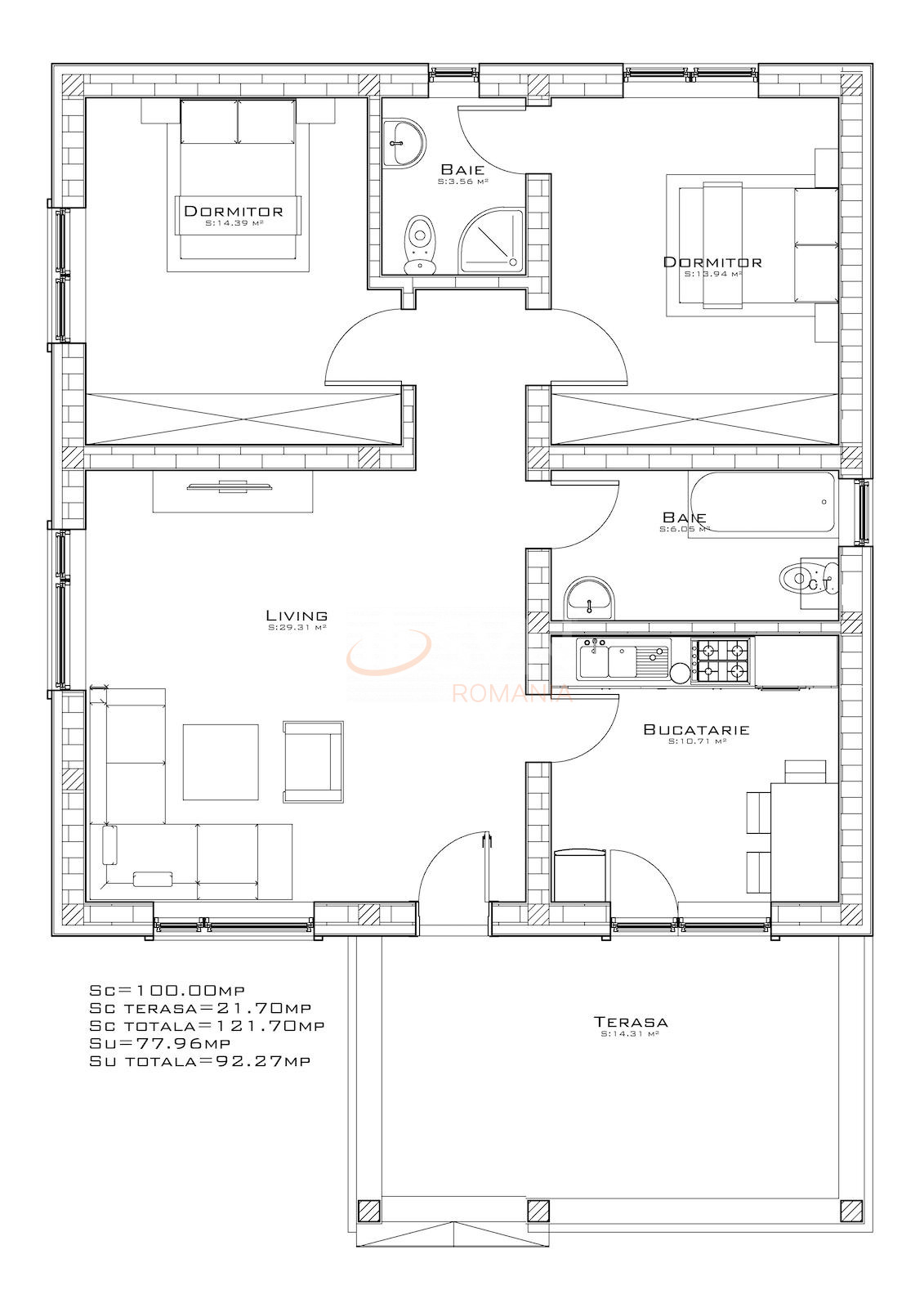
Casele sunt cu 2 sau 3 dormitoare si dispun de 2 bai, bucatarie inchisa, living spatios de 30 mp, terasa splendida de 15 mp acoperita, precum si curte spatioasa de cca 200 mp . Tot in curte vei avea posibilitatea sa parchezi cele doua autotursime in locul special amenajat parcarii.
Aflata Intr-o continua dezvoltare, zona a inflorit in ultimii ani, transformandu-se intr-un cartier curat si linistit , privat de galagia si haosul Bucurestiului dar totodata foarte accesibil pentru orice alte puncte de referinta ale Capitalei, cu centre de echitatie , restaurante, piscine , parcuri si paduri , aer curat si comunitate aleasa , aceasta zona a ajuns sa fie la mare cautare pentru cei care doresc liniste aproape de Bucuresti.
Casele se vand la cheie, cu finisaje de cea mai buna calitate: gresie , faianta, parchet , centrala termica ,termopane si obiecte sanitare si dispun de incalzire in pardoseala , o baie cu cada si o baie cu cabina de dus.
Certificatul energetic va fi disponibil la momentul vanzarii.
Pentru mai multe detalii si vizionari va rog sa ma contactati.
Atribute
An constructie 2022
Suprafata construita 100 mp
Suprafata utila 93 mp
Regim Inaltime P
Etaj P
Nr. camere 4 camere
Nr. bai 2
Nr. balcoane 0 balcoane
Tip constructie Vila
Status constructie Finalizat
Amprenta la sol 100
Teren suprafata 286 mp
Curte Individuala Da
Disponibila incepand cu 2023-07-27
Judet Ilfov
Oras/ Sector Est
Zona Voluntari
Gps lat 44.526952
Gps lng 26.241969
Complex rezidential Forest Village
Nr. terase 1
Facilitati
Geamuri termopan
Acoperis tigla
Parchet
Apa
Gresie
Gaz
Faianta
Canalizare
Plansee beton
Parcare in curte
Incalzire centrala termica
Aer conditionat
WC serviciu
Spatiu de depozitare
Termoizolatie
Curent electric
Cablu TV
Supraveghere video
Gradina
Ai o proprietate similara? Vinde-o cu noi.
  Vinde apartament  
 
  
  
  
  
  
  
  
  
  
  
  
  
  
  
  Forest Village
 Forest Village  
  
   
   
   
   
  