Voluntari 4 camere 124 mp P + 1 200 mp

SVN Romania propune spre vanza o Vila P+1, cu amprenta la sol 79 mp, suprafata utila de 124 mp si totala de 159 mp, situata in orasul Voluntari, la cateva minute de Bucuresti (capatul tramvaiului 21).

Terenul are o suprafata de 200 mp, este imprejmuit cu gard de beton, porti acces auto si poarta acces pietonal.

Vila este compusa din:
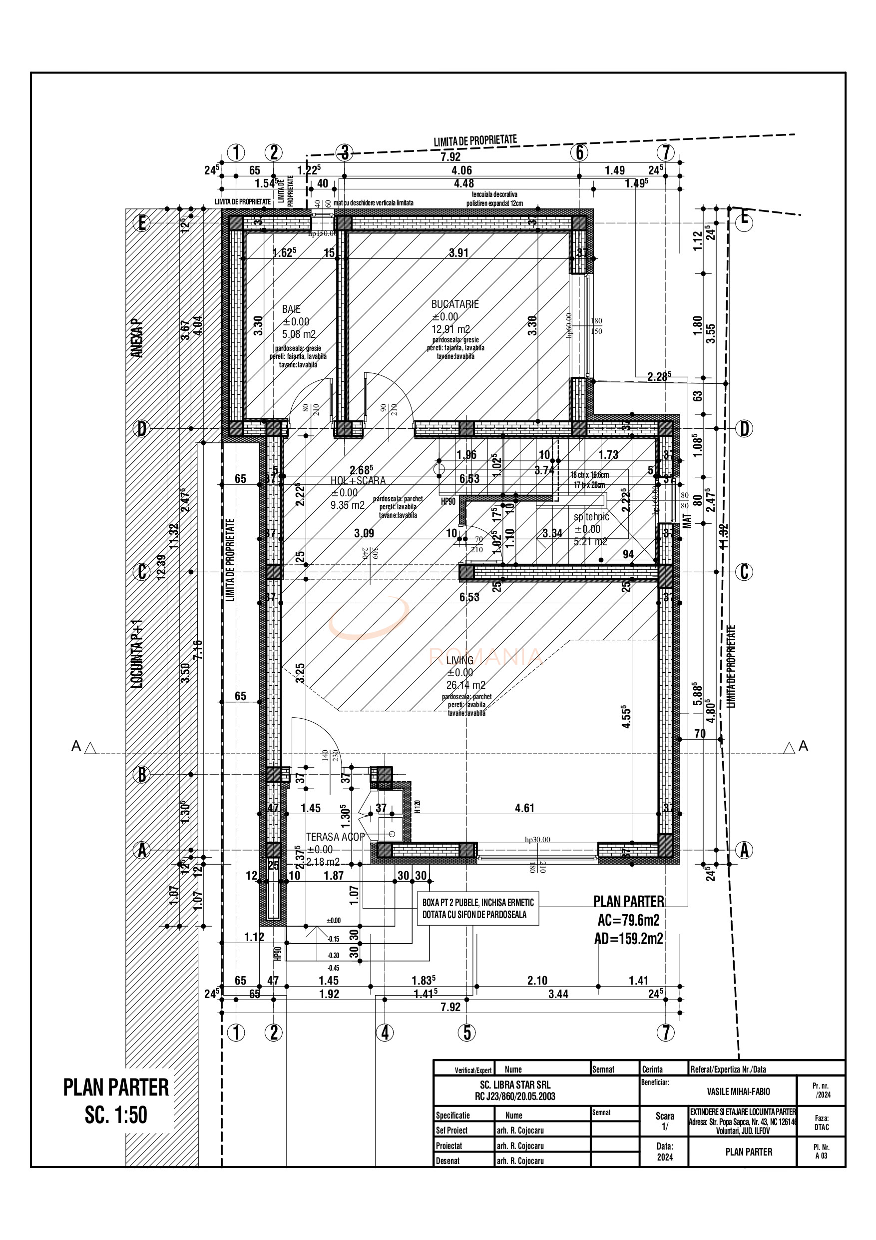
-La parter: living cu suprafata de 26 mp, bucatarie inchisa in suprafata utila de 13 mp, o baie de 5 mp si casa scarilor
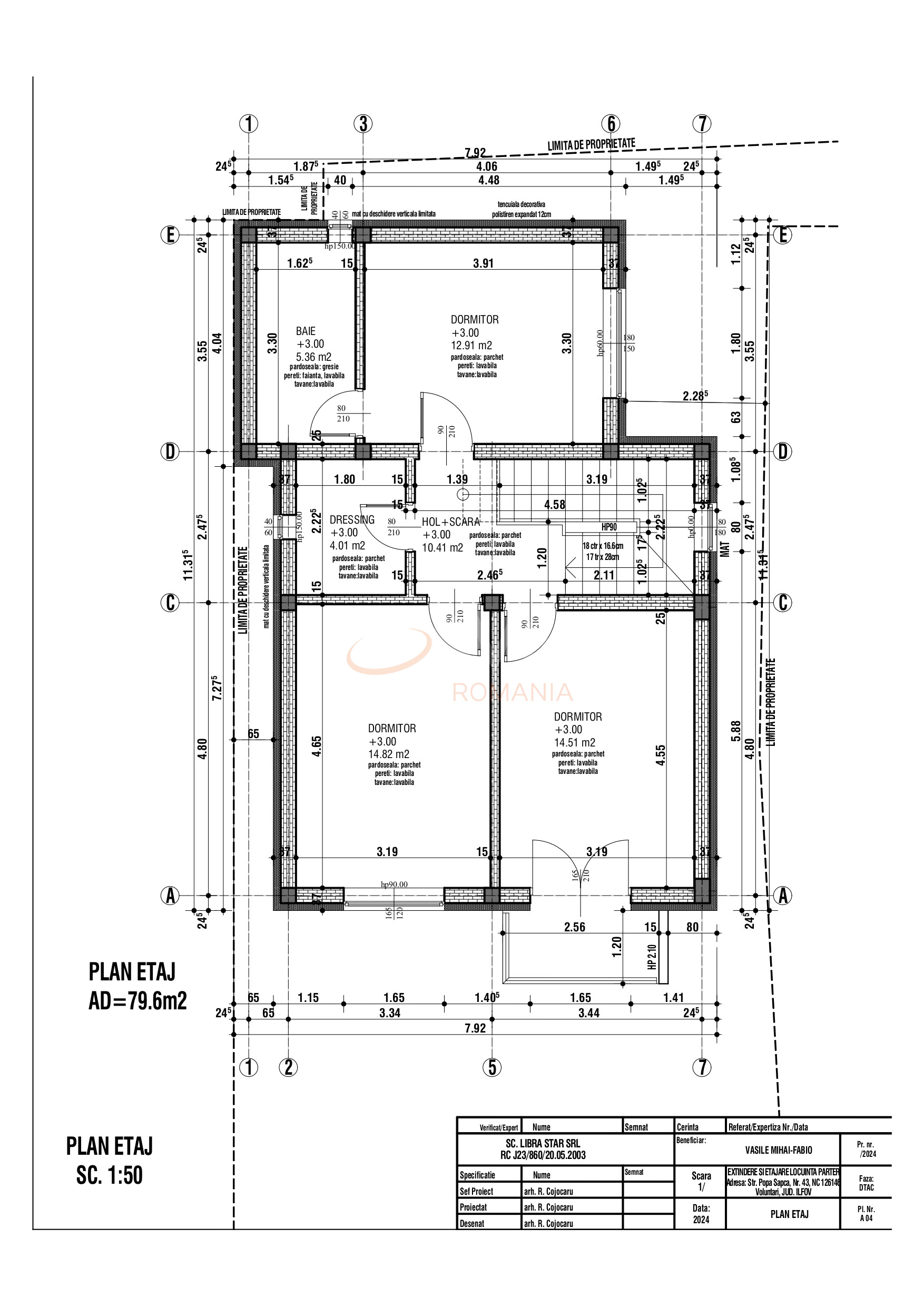
-La etaj: 3 dormitoare, baie, balcon si spatiu de depozitare

Proprietatea este momentan la stadiul de finisaje interioare si se vinde finalizata la alb, lasand posibilitatea cumparatorului sa-si aleaga gresia, faianta, parchetul si culoare peretilor.

Constructia este realizata din ziduri de BCA, pe fundatie de beton, stalpi de sustinere, centuri, placa intre parter si etaj, iar acoperisul cu tabla tip tigla.

Izolatia este realizata din polistiren de 10 cm, peste care s-a aplicat tencuiala decorativa.

Incalzirea se realizeaza cu ajutorul unei centrale pe gaze, prin pardoseala, la parter si pe calorifere, la etaj.

In apropriere se regaseste o retea de transport in comun, unitati comerciale, de invatamant, bancare, de cult si de agrement.

Pentru mai multe detalii, va rog sa ma contactati.

An constructie 2025

Suprafata construita 159 mp

Suprafata utila 124 mp

Regim Inaltime P + 1

Etaj P + 1

Nr. camere 4 camere

Nr. bai 2

Nr. balcoane 1 balcon

Tip constructie Vila

Status constructie Finalizat

Amprenta la sol 79

Teren suprafata 200 mp

Deschidere stradala 10 m

Curte Individuala Da

Disponibila incepand cu 2025-11-10

Judet Ilfov

Oras/ Sector Est

Zona Voluntari

Gps lat 44.484002

Gps lng 26.183335

Nr. terase 1

Geamuri termopan

Telefon

Apa

Acoperis tabla

Gaz

Canalizare

Calorifere

Incalzire prin pardoseala

Plansee beton

Parcare in curte

Incalzire centrala termica

WC serviciu

Fara amenajari

Detector de gaze

Termoizolatie

Internet prin Dial-Up

Internet Wireless

Internet prin fibra optica

Internet prin cablu

Curent electric

Cablu TV

Gradina

Pod

Valoare proprietate (€)

Perioada (ani)

Procent avans (34.350 €)


Suma creditata 194.650

Dobanda 4.9%

Rata lunara 4.813 lei

Broker Imobiliar

Constantin Nicolae , Consultant imobiliar Vezi toate proprietatile

0317100200

Vila 4 Camere cu Teren 200 mp Voluntari de Vanzare

Pret vanzare
229.000 €

Telefon Consultant imobiliar
0317100200

Cod: REV2004789

Proprietati similare

Ilfov, Nord, Tunari

Casa, 4 camere

121.3 mp P + 1 2024

250.000 EUR

Detalii

Ilfov, Nord, Tunari

Casa, 4 camere

170 mp P + 2 2015

245.000 EUR

Detalii

Ilfov, Nord, Tunari

Casa, 4 camere

125 mp P + 1 2018

249.900 EUR

Detalii

Ilfov, Nord, Otopeni

Casa, 4 camere

115 mp P + 1 + M 2025

235.000 EUR

Detalii

Ilfov, Nord, Otopeni

Casa, 4 camere

100 mp P + 1 2023

223.500 EUR

Detalii

Ilfov, Vest, Chiajna

Casa, 4 camere

104 mp P + 1 + M 2025

229.000 EUR

Detalii

Ilfov, Nord, Corbeanca

Casa, 4 camere

160 mp P + 1 2010

237.500 EUR

Detalii

Ilfov, Nord, Corbeanca

Casa, 4 camere

150 mp P + 1 2023

210.000 EUR

Detalii
Case 4 camere vandute in Est, Ilfov Case 4 camere de vanzare in Est, Ilfov

Afla primul de cele mai bune oferte
inainte sa ajunga pe piata

Aboneaza-te la newsletter

Aboneaza-te la notificari