Voluntari 5 camere 218 mp P + 2 450 mp

Avem placerea de a va oferi spre vanzare o casa cu 5 camere construita pe un teren de 450 mp, situata in complexul Serenity din zona Matei Millo.


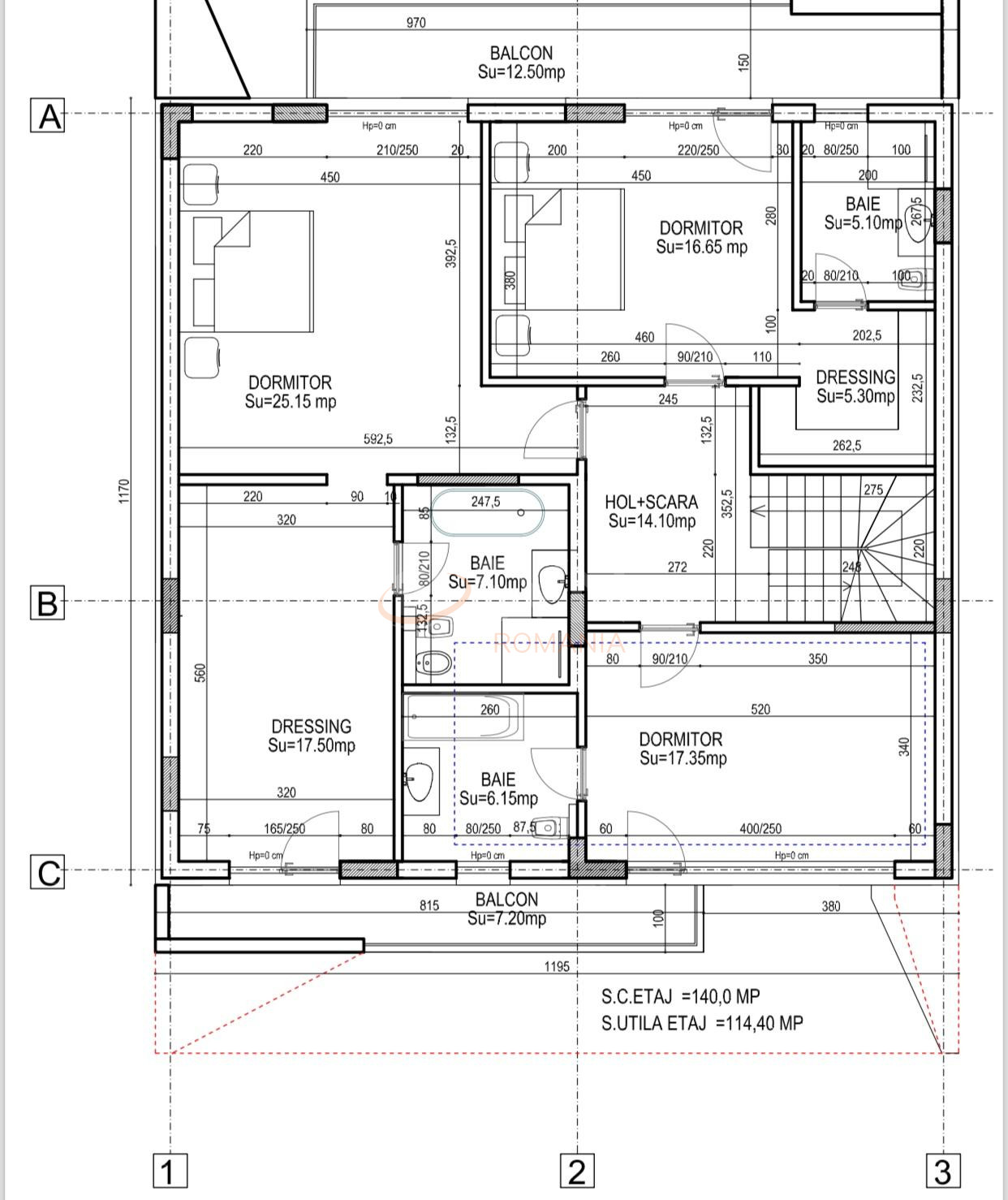
Casa beneficiaza de regim de inaltime P+2 si este compartimentata astfel:
parter- camera tehnica, baie cu acces din exterior. living, bucatarie, birou , toaleta, acestea insumand suprafata utila de 95 mp
etaj 1 - 3 dormitoare din care 2 cu baie si dressing proprii, baie pe hol, suprafata utila 114 mp
etaj 2- terasa de 100 mp amenajata cu piscina


Printre dotarile de baza ale imobilului pot fi mentionate:
- Instalatie de incalzire in pardoseala cu pompa de caldura reversibilia
- Instalatie de racire in tavane
- Sistem automat de control al casei de la distanta
- Sistem ventilare cu aport aer proaspat centralizat ( optional ionizator neutralizare virusi inclusiv Covid-19 )
- Sistem aspiratie automata preinstalata
- Instalatie sanitara cu suporti pentru WC si bideu, montate
- Sape turnate
- Instalatie electrica sistem KNX si prize montate
- Scara din sticla structurala cu trepte din lemn
- Piscina exterioara pe acoperis de 6m x 3m x H 1,5m ( cu sistem de tratare automat al apei, schimbator de caldura, pompa de innot contra curentului si liner 3D de culoare neagra)
- Balustrada exterioara din sticla
- Ferestre de aluminiu RAYNERS cu geam tripan
- Usa de intrare profil RAYNERS placata la exterior cu ceramica
- Pereti exteriori din caramida
cu sistem de operare KNX si piscina exterioara pe acoperis de 6m x 3m x H 1,5m ( cu sistem de tratare automat al apei, schimbator de caldura, pompa de innot contra curentului si liner 3D de culoare neagra).

Casa dispune de ventilare cu aport aer proaspat centralizat, instalatie de incalzire in pardoseala cu pompa de caldura reversibilia , instalatie de racire prin tavane, tamplarie Raynaers si sistem automat de control al casei de la distanta.

In curtea casei se pot parca 2 masini.

Amplasamentul este de exceptie, in imediata apropiere fiind scoala, gradinita, centrul comercial Lemon, mijloc de transport in comun, acces rapid pe A3, etc.

Certificatul energetic va fi disponibil la vanzare.

Pretul de lista este de 570.000 euro pentru casa nefinisata (la gri) .

Pentru mai multe detalii si vizionari va stau la dispozitie.

An constructie 2024

Suprafata construita 300 mp

Suprafata utila 218 mp

Regim Inaltime P + 2

Etaj P + 2

Nr. camere 5 camere

Nr. bai 5

Nr. balcoane 0 balcoane

Tip constructie Vila

Status constructie Finalizat

Amprenta la sol 110 mp

Teren suprafata 450 mp

Curte Individuala Da

Disponibila incepand cu 2026-02-19

Judet Ilfov

Oras/ Sector Est

Zona Voluntari

Gps lat 44.498565

Gps lng 26.161937

Geamuri termopan

Gaz

Incalzire prin pardoseala

WC serviciu

Detector de gaze

Spatiu de depozitare

Termoizolatie

Interfon

Internet Wireless

Curent electric

Gradina

Valoare proprietate (€)

Perioada (ani)

Procent avans (85.500 €)


Suma creditata 484.500

Dobanda 4.9%

Rata lunara 11.979 lei

Broker Imobiliar

Raluca Utica , Consultant imobiliar Vezi toate proprietatile

0317100200

Casa Smart 5 Camere complex Serenity

Pret vanzare
570.000 €

Telefon Consultant imobiliar
0317100200

Cod: REV2003354

Proprietati similare

Ilfov, Est, Voluntari

Casa, 5 camere

220 mp P + 2 2025

580.000 EUR

Detalii

Ilfov, Est, Voluntari

Casa, 5 camere

220 mp P + 1 2023

530.000 EUR

Detalii

Ilfov, Nord, Tunari

Casa, 5 camere

329 mp P + 2 2024

572.000 EUR

Detalii

Ilfov, Nord, Corbeanca

Casa, 5 camere

182.95 mp P + 1 2025

530.000 EUR

Detalii

Ilfov, Nord, Corbeanca

Casa, 5 camere

371 mp P + 1 2023

595.000 EUR

Detalii

Ilfov, Nord, Corbeanca

Casa, 5 camere

160 mp P + 1 2024

599.000 EUR

Detalii

Ilfov, Nord, Corbeanca

Casa, 5 camere

230 mp P + 1 2024

550.000 EUR

Detalii

Ilfov, Nord, Snagov

Casa, 5 camere

170.07 mp P + 1 + M 2022

550.000 EUR

Detalii
Case 5 camere vandute in Est, Ilfov Case 5 camere de vanzare in Est, Ilfov

Afla primul de cele mai bune oferte
inainte sa ajunga pe piata

Aboneaza-te la newsletter

Aboneaza-te la notificari