Voluntari 6 camere 397 mp P + 2 336 mp

PROMOTIA LUNII DECEMBRIE SI IANUARIE- SUPER OFERTA!!!

Situat in prestigiosul cartier Pipera, chiar dincolo de renumita zona Iancu Nicolae, se afla un sanctuar al traiului modern si luxos – Complexul Nobis Gardens Villas.

Acest ansamblu exclusivist de 28 de vile meticulos proiectate, programate pentru finalizare in toamna anului 2024, promite un stil de viata elegant si linistit.

Fiecare vila din aceasta comunitate de elita este o dovada a maiestriei superioare si a atentiei la detalii. Construita cu cadre si grinzi din beton robust si inconjurata de pereti din blocuri ceramice, aceste resedinte asigura durabilitate si longevitate.

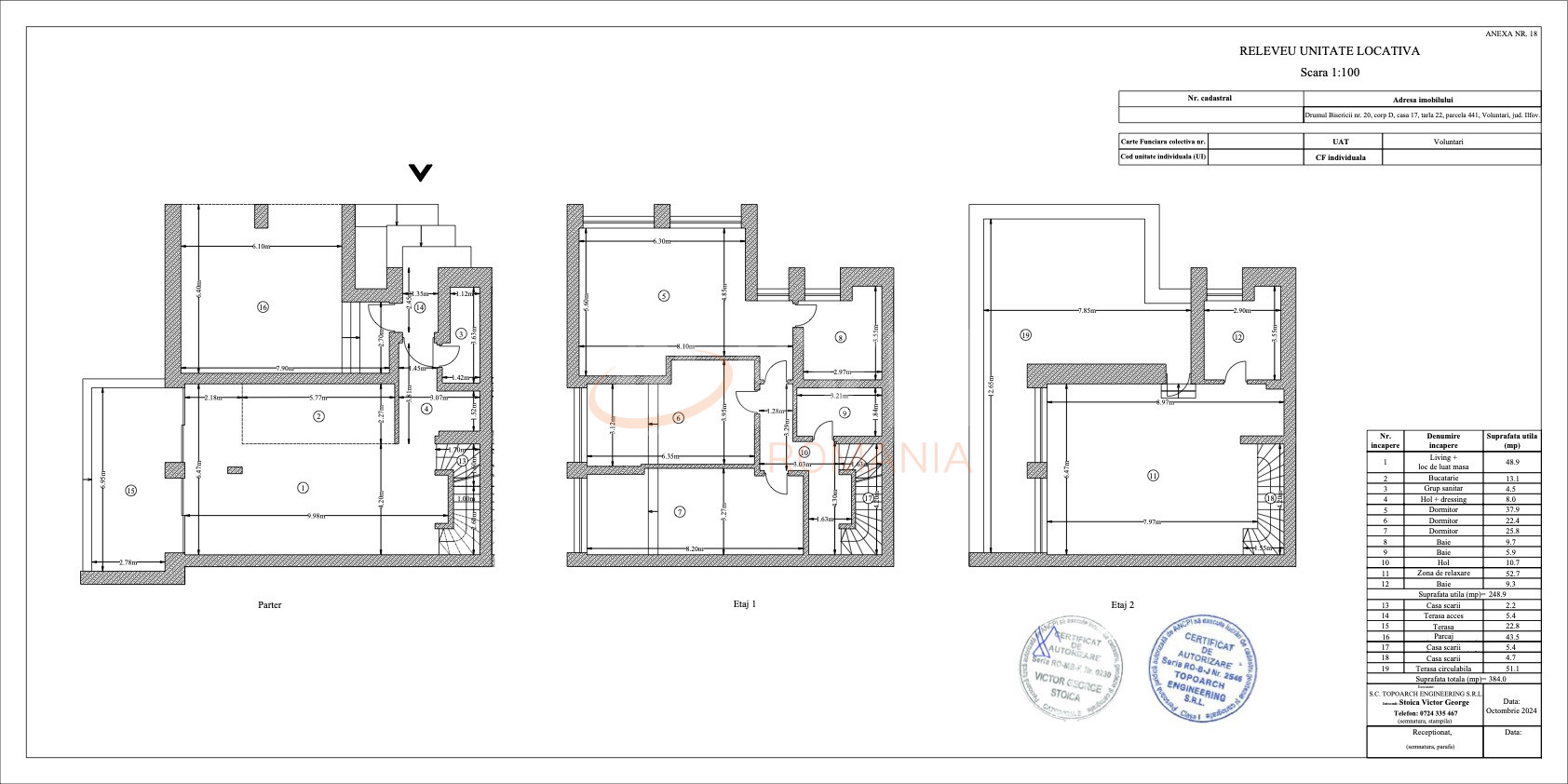
In centrul acestor locuinte se afla un concept de spatiu deschis, integrand perfect zone de dining si bucatarii spatioase, care se extind fara efort pe terase si gradini. Urcand la primul etaj se dezvaluie trei dormitoare luxoase, dotate cu dressing-uri si bai proprii, toate conducand catre un balcon retras si linistit. Punctul culminant al acestor vile se afla la etajul al doilea, unde un spatiu deschis si vast asteapta, impartit in doua zone de relaxare si decorat cu o terasa panoramica ce ofera privelisti impresionante ale imprejurimilor.

In plus fata de interioarele luxoase, rezidentii din Nobis Gardens vor beneficia de o gama de facilitati premium, inclusiv un loc de joaca dedicat copiilor, situat in mijlocul vegetatiei luxuriante.

Mai mult, aceste resedinte sunt echipate cu facilitati de ultima generatie, inclusiv incalzire prin pardoseala, racire cu pompe de racire si caldura si panouri solare, asigurand atat confortul, cat si sustenabilitatea. Impreuna cu conexiuni utilitare perfecte si spatiu amplu de parcare, Nobis Gardens exemplifica traiul modern la cel mai inalt nivel.

Cu imprejurimile sale linistite, designul elegant si atentia de neegalat la detalii, Nobis Gardens ofera un stil de viata de lux si sofisticare inegalabil in inima Piperei.

Vila este de tip duplex amplasata pe un lot de teren de 314 mp si dispune de o suprafata utile totala extrem de generoasa de 397 mp din care terase de 96 mp situate la etajul 1 si 2, un garaj incapator pentru 2 masini si o curte libera de 166 mp.

Cu spatii vitrate mari si compartimentare inteligenta vilele sunt diponibile pe diferite orientari astefl incat sa ofere atat luminozitate cat si oaza de racoare.

Pretul promotional este valabil pentru plata intergrala si predarea fara finisaje.

Pentru mai multe detalii si vizionari va rog sa ma contactati.

An constructie 2024

Suprafata construita 483 mp

Suprafata utila 397 mp

Regim Inaltime P + 2

Etaj P + 2

Nr. camere 6 camere

Nr. bai 4

Nr. balcoane 2 balcoane

Tip constructie Vila

Status constructie Finalizat

Amprenta la sol 148

Teren suprafata 336 mp

Curte Individuala Da

Disponibila incepand cu 2024-12-09

Judet Ilfov

Oras/ Sector Est

Zona Voluntari

Gps lat 44.500284

Gps lng 26.128765

Complex rezidential The Nobis Gardens Villas Pipera

Nr. terase 3

Spatiu de joaca

Geamuri termopan

Apa

Gaz

Canalizare

Garaj

Incalzire prin pardoseala

Plansee beton

Incalzire centrala termica

Aer conditionat

WC serviciu

Detector de gaze

Spatiu de depozitare

Sistem irigatie

Termoizolatie

Curent electric

Detector de incendiu

Supraveghere video

Gradina

Piscina exterioara

Pompe de caldură

Panouri solare

PROMOTIE DECEMBRIE - VILA NOBIS GARDENS PIpera

Proprietate vanduta

Ai o proprietate similara? Vinde-o cu noi.
Vinde apartament

Cod: REV2004493

Proprietati similare

Ilfov, Nord, Otopeni

Casa, 6 camere

245 mp P + 1 2007

650.000 EUR

Detalii

Ilfov, Nord, Otopeni

Casa, 6 camere

300 mp P + 1 + M 2010

550.000 EUR

Detalii
Case 6 camere vandute in Est, Ilfov Case 6 camere de vanzare in Est, Ilfov

Afla primul de cele mai bune oferte
inainte sa ajunga pe piata

Aboneaza-te la newsletter

Aboneaza-te la notificari