Balotesti 4 camere 140 mp P + 1 500 mp

SVN Residentialist va prezinta o casa individuala pe parter,compartimentata si izolata eficient cu materiale de ultima generatie care asigura confortul necesar si costuri reduse, amplasata in zona de Nord in Balotesti.

Casa este pozitionata intr o zona linistita, ferita de zgomotul soselelor traficate dar totusi usor accesibila.

Casa dispune de inclazire in pardoseala si finisaje de cea mai buna calitate, avand posibilitatea montarii panourilor fotovoltaice si pompelor de caldura.

Terenul pe care s-a construit casa are o siprafata de 470 mp, ceea ce asigura o curte spatioasa, porti automatizate si sistem de irigatie.

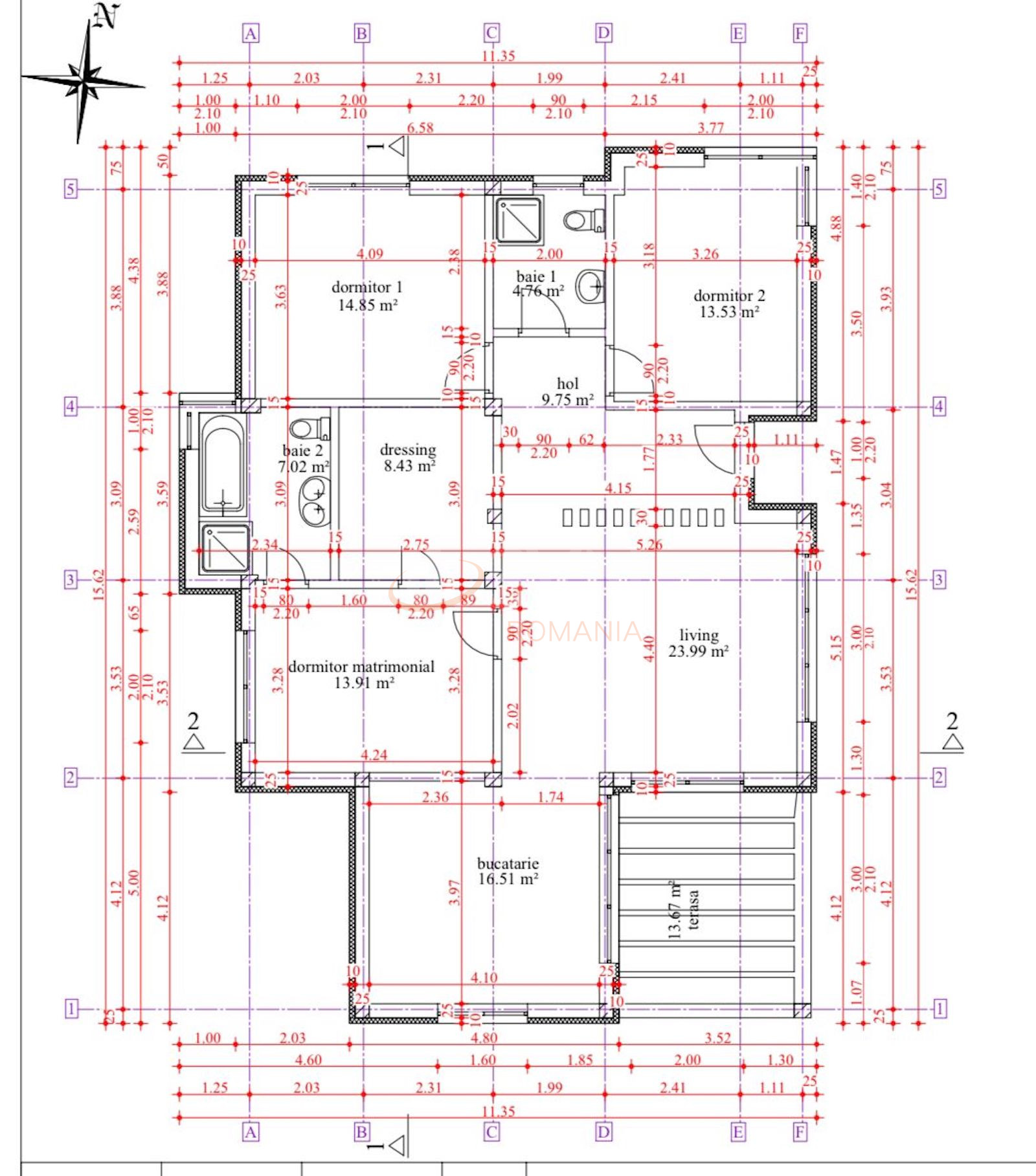
La intrare avem un living spatios de 24 mpla care se adauga zona de dining si bucarie de 17mp cu iesire in terasa de 14 mp si cele 3 dormitoare din care unul matrimonial de 22 mp cu dressing si baie de 7 mp si 2 dormitoare secundare de 15 si 13,5 mp deservite de inca o baie de 5 mp.
Total mp utili: 113mp utili+ 14mp terasa
Termen de predare aprilie 2025.

Echipa SVN Romania este aici pentru Dumneavoastra, pentru a va facilita achizitia casei de vis!

Certificatul energetic va fi disponibil in momentul vanzarii.

Pentru mai multe detalii si vizonari va rog sa ma contactati.

An constructie 2024

Suprafata construita 172 mp

Suprafata utila 140 mp

Regim Inaltime P + 1

Etaj P + 1

Nr. camere 4 camere

Nr. bai 3

Nr. balcoane 1 balcon

Tip constructie Vila

Status constructie Nefinalizat

Amprenta la sol 90

Teren suprafata 500 mp

Curte Individuala Da

Disponibila incepand cu 2025-03-11

Judet Ilfov

Oras/ Sector Nord

Zona Balotesti

Gps lat 44.619010

Gps lng 26.102047

Nr. terase 1

Spatiu de joaca

Geamuri termopan

Parchet

Apa

Gresie

Gaz

Incalzire prin pardoseala

Plansee beton

Parcare in curte

Incalzire centrala termica

Aer conditionat

WC serviciu

Spatiu de depozitare

Sistem irigatie

Termoizolatie

Interfon

Curent electric

Gradina

Casa Individuala Parter Balotesti cu teren 470 mp

Proprietate vanduta

Ai o proprietate similara? Vinde-o cu noi.
Vinde apartament

Cod: REV2004319

Proprietati similare

Ilfov, Nord, Balotesti

Casa, 4 camere

140 mp P + M 2022

202.000 EUR

Detalii

Ilfov, Nord, Balotesti

Casa, 4 camere

100 mp P + 1 2021

198.000 EUR

Detalii

Ilfov, Nord, Tunari

Casa, 4 camere

147.5 mp P + 1 2025

200.000 EUR

Detalii

Ilfov, Nord, Corbeanca

Casa, 4 camere

105 mp P + 1 2023

175.000 EUR

Detalii

Ilfov, Nord, Corbeanca

Casa, 4 camere

105 mp P + 1 2023

175.000 EUR

Detalii
Exclusiv Discount

Ilfov, Nord, Corbeanca

Casa, 4 camere

150.02 mp P + 1 2024

195.000 EUR

Detalii
Exclusiv Discount

Ilfov, Nord, Corbeanca

Casa, 4 camere

150.02 mp P + 1 2024

195.000 EUR

Detalii

Ilfov, Nord, Ostratu

Casa, 4 camere

125 mp P + 1 2024

190.000 EUR

Detalii
Case 4 camere vandute in Nord, Ilfov Case 4 camere de vanzare in Nord, Ilfov

Afla primul de cele mai bune oferte
inainte sa ajunga pe piata

Aboneaza-te la newsletter

Aboneaza-te la notificari