Casa, 3 camere, Ilfov / Nord / Corbeanca
Pretul pentru stadiul la gri este de 85.000 euro.
Pretul pentru locuinta finalizata este de 134.000 euro
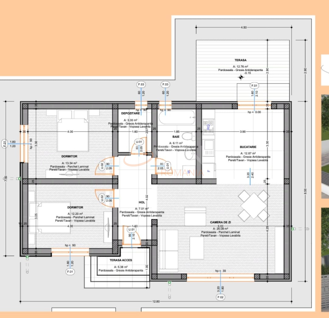
Avand o suprafata construita de 110 mp., dintre care 85 utili, imobilul este amplasat pe un teren de 420 mp.
Compartimentare:
- hol
- 2 dormitoare
- baie
- camera tehnica
- bucatarie
- living si dinning.
Detalii constructie:
- caramida Phorotherm
- geamuri Salamander, tripan
- incalzire in pardoseala
- izolatie polistiren 10 cm
Utilitati: gaz, curent, put propriu( a 2a panza freatica), fosa ecologica, CATV.
Finisajele pot fi alese de viitorul cumparator.
Pentru mai multe detalii, ma puteti contacta oricand!!!
Atribute
An constructie 2023
Suprafata construita 110 mp
Suprafata utila 85 mp
Regim Inaltime P
Etaj P
Nr. camere 3 camere
Nr. bai 1
Nr. balcoane 0 balcoane
Tip constructie Vila
Status constructie Nefinalizat
Amprenta la sol 110 mp
Teren suprafata 420 mp
Deschidere stradala 14 m
Curte Individuala Da
Disponibila incepand cu 2024-04-20
Judet Ilfov
Oras/ Sector Nord
Zona Corbeanca
Gps lat 44.578048
Gps lng 26.001108
Nr. terase 1
Facilitati
Parchet
Apa
Acoperis tabla
Gresie
Gaz
Faianta
Incalzire prin pardoseala
Plansee beton
Parcare in curte
Incalzire centrala termica
Fosa septica
Spatiu de depozitare
Gradina
Oportunitate de vanzare vila parter zona linistita Corbeanca
Proprietate vanduta
Ai o proprietate similara? Vinde-o cu noi.
  Vinde apartament  
 
  
  
  
  
  
  
  
  
  
 