Corbeanca 4 camere 174 mp P + 1 726.71 mp

SVN Romania va ofera spre vanzare un complex de vile in Corbeanca, cu un design deosebit, la cheie, situate intr-o locatie linistita si privata, cu priveliste catre lac si loc de joaca pentru cei mici.

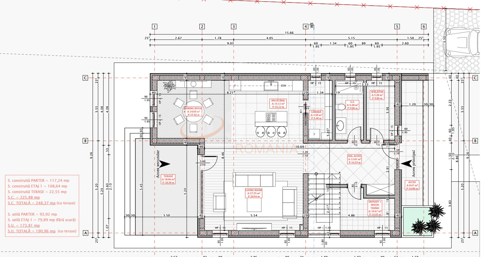
Veti gasi la parter:
-living generos, bucatarie cu dining si camara, terasa acoperita, baie,
spalatorie, depozitare / spatiu tehnic.

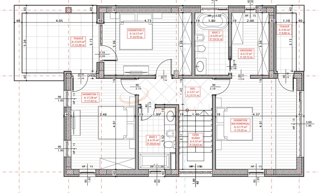
Veti gasi la etaj:
-dormitor matrimonial cu baie en-suite si dressing, doua dormitoare, baie,
doua terase.

Casa este decomandata si finisajele vor fi de calitate superioara, va dispune de centrala proprie cu incalzire in pardoseala in toate camerele. Fiecare casa va dispune de 3 locuri de parcare (unul in garaj).

Date tehnice:

Suprafata utila totala:174 mp
Suprafata teren: 726,71mp
Amprenta la sol: 117 mp
Suprafata teraselor: 23 mp
Regim de inaltime: P+1E
An constructie: 2022-2023

Zona cu acces rapid si usor catre punctele de interes, mijloace transport in comun, gradinite, scoli, parcuri, hipermarketuri (atat magazine stradale cat si Mega Image) si restaurante.

Pentru mai multe detalii, mai multe tipuri de case, programarea unei vizionari nu ezitati sa ne contactati.

An constructie 2023

Suprafata construita 226 mp

Suprafata utila 174 mp

Regim Inaltime P + 1

Etaj P + 1

Nr. camere 4 camere

Nr. bai 3

Nr. balcoane 0 balcoane

Tip constructie Vila

Status constructie Nefinalizat

Amprenta la sol 117 mp

Teren suprafata 726.71 mp

Curte Individuala Da

Disponibila incepand cu 2023-03-25

Judet Ilfov

Oras/ Sector Nord

Zona Corbeanca

Gps lat 44.601184

Gps lng 26.031236

Complex rezidential Complex de vile I Lacul Corbeanca

Nr. terase 3

Geamuri termopan

Telefon

Parchet

Apa

Gresie

Gaz

Faianta

Incalzire prin pardoseala

Parcare in curte

Incalzire centrala termica

Aer conditionat

WC serviciu

Fosa septica

Sistem de alarma

Detector de gaze

Interfon

Internet Wireless

Internet prin cablu

Curent electric

Cablu TV

Detector de incendiu

Gradina

Vila de lux - Corbeanca COMISION 0

Proprietate vanduta

Ai o proprietate similara? Vinde-o cu noi.
Vinde apartament

Cod: REV2002281

Proprietati similare

Ilfov, Nord, Corbeanca

Casa, 4 camere

215 mp P 2024

430.000 EUR

Detalii

Ilfov, Nord, Corbeanca

Casa, 4 camere

120 mp P 2000

400.000 EUR

Detalii

Ilfov, Nord, Balotesti

Casa, 4 camere

382.19 mp P + 1 2011

395.000 EUR

Detalii

Ilfov, Est, Voluntari

Casa, 4 camere

135 mp P + 1 2024

420.000 EUR

Detalii

Ilfov, Est, Voluntari

Casa, 4 camere

120 mp P + 1 2025

390.000 EUR

Detalii

Ilfov, Est, Branesti

Casa, 4 camere

250 mp P + 1 2025

450.000 EUR

Detalii
Case 4 camere vandute in Nord, Ilfov Case 4 camere de vanzare in Nord, Ilfov

Afla primul de cele mai bune oferte
inainte sa ajunga pe piata

Aboneaza-te la newsletter

Aboneaza-te la notificari