Corbeanca 4 camere 189.79 mp P + 1 533 mp

SVN Romania va ofera spre vanzare un complex de vile in Corbeanca, cu un design deosebit, la cheie, situate intr-o locatie linistita si privata, cu priveliste catre lac si loc de joaca pentru cei mici.

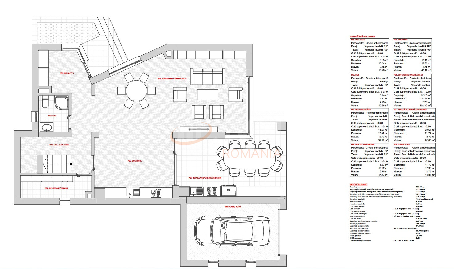
Veti gasi la parter:
-living generos, bucatarie open space, terasa acoperita, baie, loc depozitare.

Veti gasi la etaj:
-dormitor matrimonial cu baie en-suite, dormitor cu dressing,
dormitor, baie, spalatorie, loc depozitare, terasa.

Casa este decomandata si finisajele vor fi de calitate superioara, va dispune de centrala proprie cu incalzire in pardoseala in toate camerele. Fiecare casa va dispune de 3 locuri de parcare (unul in garaj).

Date tehnice:

Suprafata utila totala: 220,35mp
Suprafata teren: 533mp
Amprenta la sol:220.35mp
Suprafata teraselor: 30,56mp
Regim de inaltime: P+1E
An constructie: 2022-2023

Zona cu acces rapid si usor catre punctele de interes, mijloace transport in comun, gradinite, scoli, parcuri, hipermarketuri (atat magazine stradale cat si Mega Image) si restaurante.

Pentru mai multe detalii, mai multe tipuri de case, programarea unei vizionari nu ezitati sa ne contactati.

An constructie 2023

Suprafata construita 271.64 mp

Suprafata utila 189.79 mp

Regim Inaltime P + 1

Etaj P + 1

Nr. camere 4 camere

Nr. bai 3

Nr. balcoane 0 balcoane

Tip constructie Vila

Status constructie Nefinalizat

Amprenta la sol 220.35

Teren suprafata 533 mp

Curte Individuala Da

Disponibila incepand cu 2023-10-01

Judet Ilfov

Oras/ Sector Nord

Zona Corbeanca

Gps lat 44.601281

Gps lng 26.032340

Complex rezidential Complex de vile I Lacul Corbeanca

Nr. terase 2

Geamuri termopan

Telefon

Parchet

Gresie

Gaz

Faianta

Garaj

Incalzire prin pardoseala

Parcare in curte

Incalzire centrala termica

WC serviciu

Fosa septica

Sistem de alarma

Detector de gaze

Curent electric

Detector de incendiu

Gradina

Vila de lux - Corbeanca COMISION 0

Proprietate vanduta

Ai o proprietate similara? Vinde-o cu noi.
Vinde apartament

Cod: REV2002285

Proprietati similare

Ilfov, Nord, Corbeanca

Casa, 4 camere

194 mp P 2024

598.000 EUR

Detalii

Ilfov, Est, Voluntari

Casa, 4 camere

212 mp P + 1 2022

639.000 EUR

Detalii
Case 4 camere vandute in Nord, Ilfov Case 4 camere de vanzare in Nord, Ilfov

Afla primul de cele mai bune oferte
inainte sa ajunga pe piata

Aboneaza-te la newsletter

Aboneaza-te la notificari