Casa, 4 camere, Ilfov / Nord / Corbeanca
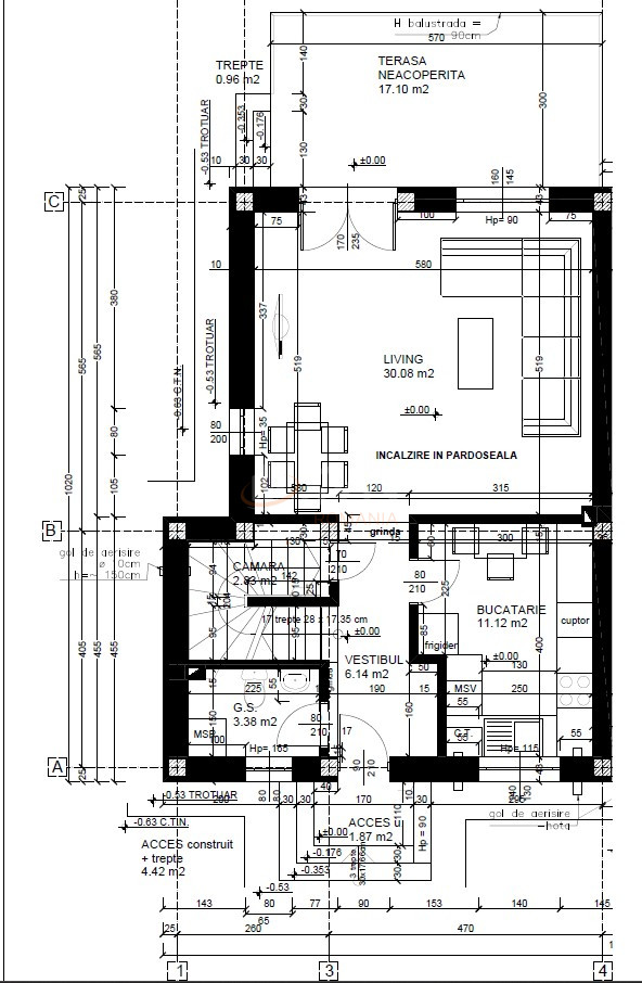
Parterul este compus dintr-un hol de acces(vestibul) de 6.14 mp,
Grup sanitar de 3,38 mp,
Bucatarie Inchisa Complet Mobilata si utilata , cu o suprafata de 11,12 mp,
Camara de 2,93 mp
Un living Generos de 30.08 mp si o terasa, inchisa cu tamplarie de aluminiu glisanta, in suprafata de 23 mp.
Tot Parterul beneficaza de incazire in pardoseala.
La etaj vom gasi 3 dormitoare si 2 Bai,
Dormitor Matrimonial de 15 mp ce este deservit de O baie matrimoniala de 5,5 mp si un dresing de 4,79 complet mobilat.
Dormitor 10.62 mp
Dormitor 12,36 mp
Baie Comuna 6,28.
Casa beneficaza de un pod spatios.
Incalzire centralizata, parter incalzire in pardoseala, etaj incalzire prin radiatoare, Boiler Apa Calda Menajera, Aer conditionat, Tamplarie Gealan trei-foi de sticla, Terasa inchisa cu Tamplarie Aluminiu in Sistem Glisant Reyners.
Sistem Irigatii automatizat inclusiv put de apa in curte.
Doua locuri de Parcare.
Suprafata Construita 175mp, Suprafata teren 300 mp
Atribute
An constructie 2020
Suprafata construita 175 mp
Suprafata utila 130 mp
Regim Inaltime P + 1
Etaj P + 1
Nr. camere 4 camere
Nr. bai 1
Nr. balcoane 0 balcoane
Tip constructie Vila
Status constructie Finalizat
Teren suprafata 300 mp
Curte Individuala Da
Disponibila incepand cu 2023-11-14
Judet Ilfov
Oras/ Sector Nord
Zona Corbeanca
Gps lat 44.593309
Gps lng 26.030674
Nr. terase 1
Facilitati
Acoperis mansardat
Spatiu de joaca
Geamuri termopan
Parchet
Apa
Acoperis tabla
Gresie
Gaz
Faianta
Canalizare
Incalzire prin pardoseala
Calorifere
Plansee beton
Incalzire centrala termica
Aer conditionat
Sistem de alarma
Detector de gaze
Sistem irigatie
Termoizolatie
Internet Wireless
Internet prin fibra optica
Internet prin cablu
Curent electric
Cablu TV
Gradina
Pod
Vila Duplex Corbeanca I Paladin I
Proprietate vanduta
Ai o proprietate similara? Vinde-o cu noi.
  Vinde apartament  
 
  
  
  
  
  
  
  
  
  
  
  
  
  
   
   
   
   
   
  
  
   
   
   
   
   
  
   
   
   
   
   
  
   
   
   
   
   
  
   
   
   
   
   
  
   
   
   
   
   
  
   
   
   
   
   
  
   
   
   
  