Otopeni 3 camere 80.07 mp P + 1 315 mp

SVN Romania propune spre vanzare o vila tip duplex cu 3 camere, amplasata intr-o zona linistita din Otopeni.

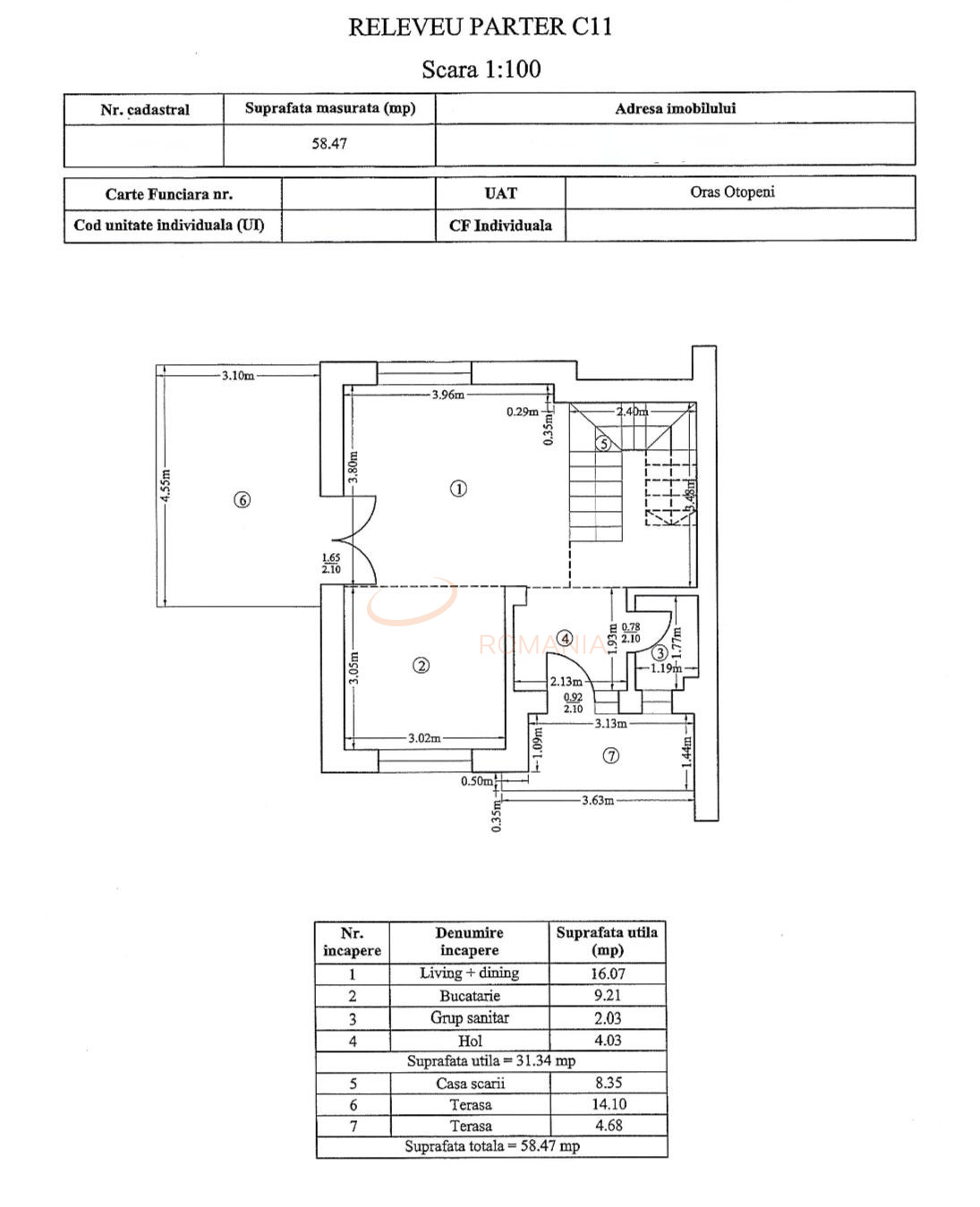
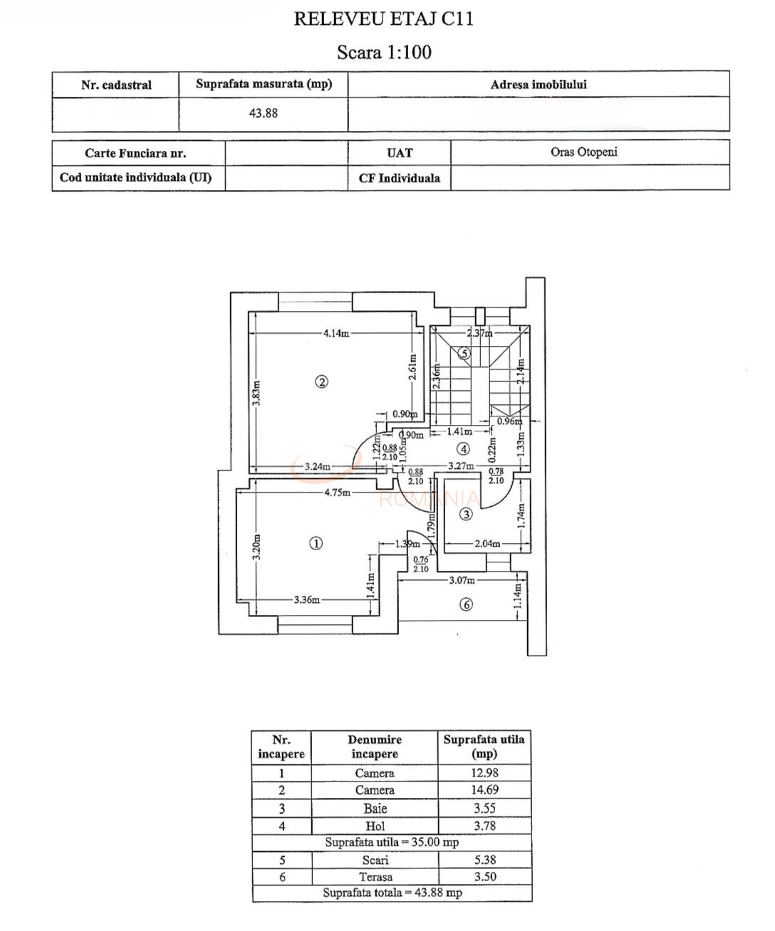
Imobilul este dispus pe P+1E+Pod, fiind finalizat si construit in anul 2021, pe un teren cu suprafata de 315 mp. Are o amprenta la sol de 58.47 mp, o suprafata utila de 80.07 mp si 3 terase cu o suprafata totala de 22.28 mp.

Pretul acestei locuinte este 140.000 euro + TVA.

Constructia este realizata pe structura de beton, cu compartimentari din caramida Porotherm, izolatie exterioara din polistiren de 15 cm cu tencuiala decorativa, placari exterioare cu gresie si acoperis din tabla.

Curtea este imprejmuita cu gard din beton si fier forjat.

Locuinta se vinde la alb, beneficiand de toate instalatiile trase, incluzand bransamentul la gaze.

Proprietatea beneficiaza de toate utilitatile: energie electrica, gaze, apa curenta si fosa ecologica (cu bransare la canalizarea orasului in curs).

Sistemul de incalzire este asigurat de centrala termica proprie cu calorifere.

Un avantaj important al acestei locuinte este faptul ca poate fi amenajata imediat dupa preferintele viitorului proprietar.
Compartimentare:

Parter (39,69 mp utili): living + dining, bucatarie, grup sanitar, hol si acces catre 2 terase.
Etaj (40,38 mp utili): 2 camere, 1 baie, hol si acces catre un balcon.

In curte exista posibilitatea parcarii a minimum 2 masini, in functie de modul de amenajare al spatiului exterior.

Pentru mai multe informatii sau pentru programarea vizionarilor, contactul meu va sta la dispozitie.

***Vizionarea acestui imobil se face doar în baza semnarii unui acord de vizionare conform codului civil, art 2.096-2.102.

An constructie 2021

Suprafata construita 123.58 mp

Suprafata utila 80.07 mp

Regim Inaltime P + 1

Etaj P + 1

Nr. camere 3 camere

Nr. bai 3

Nr. balcoane 1 balcon

Tip constructie Vila

Status constructie Finalizat

Amprenta la sol 58.47

Teren suprafata 315 mp

Deschidere stradala 15 m

Curte Individuala Da

Disponibila incepand cu 2026-05-12

Judet Ilfov

Oras/ Sector Nord

Zona Otopeni

Gps lat 44.556850

Gps lng 26.108179

Nr. terase 2

Acoperis mansardat

Geamuri termopan

Apa

Acoperis tabla

Gaz

Canalizare

Calorifere

Plansee beton

Parcare in curte

Incalzire centrala termica

WC serviciu

Fara amenajari

Detector de gaze

Termoizolatie

Internet Wireless

Internet prin fibra optica

Curent electric

Supraveghere video

Gradina

Valoare proprietate (€)

Perioada (ani)

Procent avans (21.000 €)


Suma creditata 119.000

Dobanda 4.9%

Rata lunara 2.943 lei

Broker Imobiliar

Ramona Badea , Consultant imobiliar Vezi toate proprietatile

0317100200

Vila la ALB I 3 Camere I Otopeni I De vanzare

Pret vanzare
140.000 €

Telefon Consultant imobiliar
0317100200

Cod: REV2004932
Case 3 camere vandute in Nord, Ilfov Case 3 camere de vanzare in Nord, Ilfov

Afla primul de cele mai bune oferte
inainte sa ajunga pe piata

Aboneaza-te la newsletter

Aboneaza-te la notificari