Otopeni 4 camere 116.37 mp P + 1 204 mp

SVN Romania va propune spre vanzare un duplex finalizat in 2023, intr-o zona linistita de case a Otopeniului.

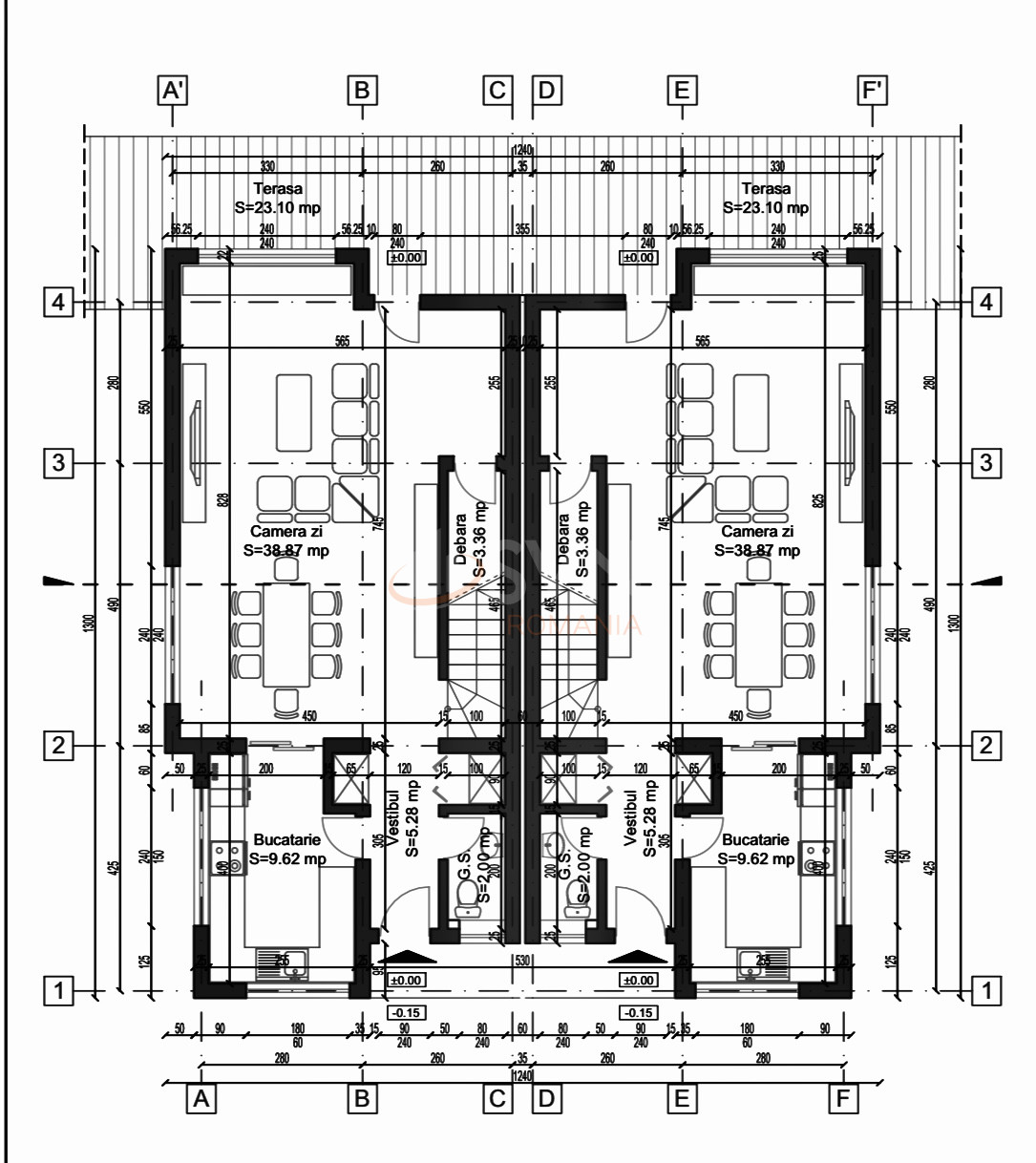
Duplexul este structurat P+1, avand suprafata totala a terenului de 408 mp, fiind organizat astfel:
Parter:
- living (38,87 mp)
- bucatarie (9,62 mp)
- vestibul (5,28 mp)
- debara (3,36 mp)
- baie serviciu (2 mp)
- terasa (23,10 mp)
Etaj:
- dormitor matrimonial + dressing + baie (12,20 mp + 4,69 mp + 4,70 mp)
- doua dormitoare suplimentare (12,70 mp, respectiv 12,09 mp)
- baie moderna ce deserveste cele 2 dormitoare (4,33 mp)
- hol (6,83 mp)

Vila este construita cu materiale de calitate din care mentionam: cadre de beton armat, BCA Ytong de 25 cm ,termoizolatie exterioara de 10 cm, Us intrare metalica MACO, tamplarie Gealan Clasa A, incalzire in pardosala, acoperis Lindab.

Suprafata utila a unei unitati este de 116 mp, ambele unitati ale duplexului sunt identice. Incalzirea se face prin pardoseala, casa beneficiind de centrala proprie. Duplexul este nefinisat, lasand posibilitatea viitorului cumparator de a-si alege finisajele dupa gusturile sale. Duplexul beneficiaza deja de toate utilitatile (bransament electric, bransament la reteaua de gaze, put forat si bazin vidanjabil).

In curte se regaseste si un loc de parcare pentru masina.

Pentru alte detalii sau stabilirea unei vizionari nu ezitati sa ne contactati

*Vizionarea acestui imobil se face doar in baza semnarii unui acord de vizionare conform codului civil art 2.096-2.102.

An constructie 2022

Suprafata construita 134.7 mp

Suprafata utila 116.37 mp

Regim Inaltime P + 1

Etaj P + 1

Nr. camere 4 camere

Nr. bai 3

Nr. balcoane 1 balcon

Tip constructie Vila

Status constructie Finalizat

Amprenta la sol 95

Teren suprafata 204 mp

Deschidere stradala 10 m

Curte Individuala Da

Disponibila incepand cu 2026-01-20

Judet Ilfov

Oras/ Sector Nord

Zona Otopeni

Gps lat 44.536817

Gps lng 26.051622

Nr. terase 1

Geamuri termopan

Telefon

Acoperis tigla

Apa

Gaz

Canalizare

Incalzire prin pardoseala

Parcare in curte

Incalzire centrala termica

WC serviciu

Fosa septica

Detector de gaze

Spatiu de depozitare

Termoizolatie

Curent electric

Cablu TV

Gradina

Valoare proprietate (€)

Perioada (ani)

Procent avans (24.750 €)


Suma creditata 140.250

Dobanda 4.9%

Rata lunara 3.468 lei

Broker Imobiliar

Cristian Vasile , Consultant imobiliar Vezi toate proprietatile

0317100200

Duplex nou 4 camere Otopeni

Pret vanzare + TVA
165.000 €

Telefon Consultant imobiliar
0317100200

Cod: REV2002431

Proprietati similare

Ilfov, Nord, Corbeanca

Casa, 4 camere

113 mp P + 1 2023

160.000 EUR

Detalii

Ilfov, Nord, Tunari

Casa, 4 camere

114 mp P + 1 2023

165.000 EUR

Detalii

Ilfov, Nord, Tunari

Casa, 4 camere

106 mp P 2023

170.000 EUR

Detalii

Ilfov, Nord, Corbeanca

Casa, 4 camere

105 mp P + 1 2023

175.000 EUR

Detalii

Ilfov, Nord, Balotesti

Casa, 4 camere

141.1 mp P 2025

160.000 EUR

Detalii

Ilfov, Nord, Corbeanca

Casa, 4 camere

120 mp P + 1 2022

175.000 EUR

Detalii

Ilfov, Nord, Buftea

Casa, 4 camere

103 mp P + M 2026

160.000 EUR

Detalii

Ilfov, Nord, Balotesti

Casa, 4 camere

120.26 mp P + 1 2024

163.000 EUR

Detalii
Case 4 camere vandute in Nord, Ilfov Case 4 camere de vanzare in Nord, Ilfov

Afla primul de cele mai bune oferte
inainte sa ajunga pe piata

Aboneaza-te la newsletter

Aboneaza-te la notificari