Otopeni 4 camere 130.5 mp P + 1 434 mp

SVN Romania va propune spre vanzare o vila de 4 camere intr-un ansambu de 4 vile individuale in zona Otopeni.

Vila este complet finisata, cu o suprafata utila de 130,5 mp si 2 balcoane de 10 mp, finalizata in 2024, construita pe un teren de 434 mp, unde sunt incluse si 4 locuri de parcare amenajate.

Curtea este pavata, imprejmuita cu gard, poarta acces auto cu sistem electric si poarta pentru accesul pietonal.

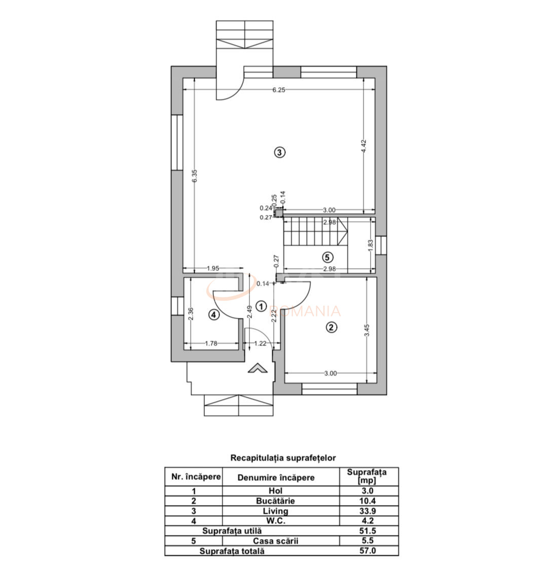
Parterul dispune de un living generos cu zona de dining 33,9 mp, plus bucatarie de 10,4 mp si un grup sanitar cu dus.

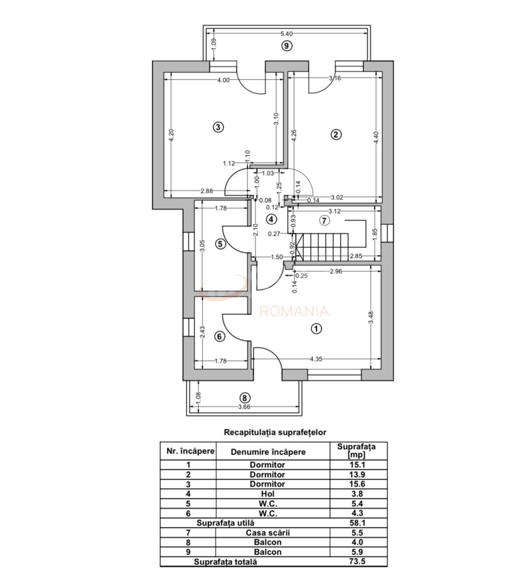
La etaj avem un hol cu cele 3 dormitoare spatioase din care dormitorul matrimonial cu baie proprie, inca o baie ce deserveste cele 2 dormitoare si 2 balcoane, unul la dormitorul matrimonial si unul se deserveste celelalte 2 dormitoare.

Arhitectura deosebita cu care casa a fost proiectata si decorata, eficient compartimentata ofera confort si liniste in imediata apropiere a Bucurestiului.

Vila dispune de incalzire in pardoseala, 16 trasee in total cu motor indivual, marmura pe casa scarii, centrala individuala pe gaze, 3 grupuri sanitare, camerele sunt amenajate cu tapet si corpuri de iluminat, intre etaje exista plansee de beton, pod cu scara retractabila izolat cu spuma si camere de supraveghere video instalate.

Cladirea dispune de curent trifazic de 12 kw putere, exista instalatie separata pentru pompa de caldura si panouri fotovoltaice.

Vila a fost construita pe plansee de beton, compartimentata cu caramida, izolatie de 12, parchet laminat, gresie, faianta, baile sunt utilate si mobilate complet. In acest moment vila, este legata la fosa septica, canalizarea este trasa la strada, anul acesta se va bransa.

Contactul meu va sta la dispozitie pentru stabilirea unei vizionari sau pentru mai multe informatii!

An constructie 2024

Suprafata construita 150.7 mp

Suprafata utila 130.5 mp

Regim Inaltime P + 1

Etaj P + 1

Nr. camere 4 camere

Nr. bai 3

Nr. balcoane 2 balcoane

Tip constructie Vila

Status constructie Finalizat

Amprenta la sol 60

Teren suprafata 434 mp

Deschidere stradala 41.23

Curte Individuala Da

Disponibila incepand cu 2024-04-04

Judet Ilfov

Oras/ Sector Nord

Zona Otopeni

Gps lat 44.536980

Gps lng 26.058514

Geamuri termopan

Acoperis tigla

Parchet

Apa

Gresie

Gaz

Faianta

Incalzire prin pardoseala

Plansee beton

Parcare in curte

Incalzire centrala termica

Fosa septica

Termoizolatie

Curent electric

Supraveghere video

Gradina

Pod

Vila Individuala 4 camere I Otopeni I De vanzare

Proprietate vanduta

Ai o proprietate similara? Vinde-o cu noi.
Vinde apartament

Cod: REV2003783

Proprietati similare

Ilfov, Nord, Otopeni

Casa, 4 camere

135 mp P + 1 2024

274.900 EUR

Detalii

Ilfov, Nord, Otopeni

Casa, 4 camere

135 mp P + 1 2024

274.500 EUR

Detalii

Ilfov, Nord, Otopeni

Casa, 4 camere

219 mp P + 1 2022

280.000 EUR

Detalii

Ilfov, Nord, Otopeni

Casa, 4 camere

120 mp P + 1 2023

260.000 EUR

Detalii

Ilfov, Nord, Otopeni

Casa, 4 camere

120 mp P + 1 + M 2022

299.000 EUR

Detalii

Ilfov, Nord, Corbeanca

Casa, 4 camere

139.07 mp P 2021

269.000 EUR

Detalii

Ilfov, Nord, Corbeanca

Casa, 4 camere

139.07 mp P 2023

269.000 EUR

Detalii

Ilfov, Nord, Tunari

Casa, 4 camere

208 mp P + 1 + M 2026

270.000 EUR

Detalii
Case 4 camere vandute in Nord, Ilfov Case 4 camere de vanzare in Nord, Ilfov

Afla primul de cele mai bune oferte
inainte sa ajunga pe piata

Aboneaza-te la newsletter

Aboneaza-te la notificari